
Сифон под раковиной – это не просто элемент сантехнической конструкции, а важный компонент, обеспечивающий правильную работу системы водоснабжения. Основная задача сифона – это предотвращение запахов из канализации, а также обеспечение нормального стока воды. Без сифона на кухне или в ванной комната будет наполняться неприятным запахом, который может существенно ухудшить комфорт в помещении.
При выборе сифона необходимо учитывать несколько важных факторов. Во-первых, это тип раковины, для которой предназначено устройство. Для моек с одним, двумя или тремя чашами существуют разные модели сифонов, что позволяет добиться оптимального результата. Во-вторых, стоит обратить внимание на материал изготовления. Наибольшее распространение получили сифоны из пластика, но для некоторых типов раковин лучше подходят металлические сифоны, которые отличаются повышенной прочностью и долговечностью.
Одним из критических факторов является форма сифона. На рынке присутствуют несколько типов конструкций: трубный, гофрированный и баночный. Трубный сифон удобен для стандартных установок, гофрированный – для сложных и нестандартных ситуаций, когда требуется большая гибкость. Баночные сифоны хороши для кухонь, так как имеют меньший размер и могут быть легко установлены даже в ограниченных пространствах.
Также следует учитывать такие параметры, как диаметр сливного отверстия и пропускная способность. Чтобы избежать засоров и повысить эффективность работы, важно выбирать сифон с оптимальным диаметром для вашего трубопровода. Неправильный выбор может привести к быстрому засорению и необходимости частой чистки системы.
Наконец, стоит помнить, что регулярный уход за сифоном и его своевременная замена продлевают срок службы всего сантехнического оборудования, предотвращая появление неприятных последствий, таких как запахи или утечка воды.
Почему сифон важен для предотвращения запахов в ванной и кухне

Конструкция сифона обеспечивает сбор воды в нижней части, которая образует барьер. Это препятствует проникновению газов и других загрязняющих веществ в воздух. Важно, чтобы вода в сифоне всегда оставалась, так как при её отсутствии канализационные запахи легко могут проникать обратно. В некоторых моделях сифонов предусмотрены дополнительные системы, которые помогают поддерживать постоянный уровень воды и улучшать герметичность.
Правильный выбор сифона напрямую влияет на эффективность защиты от запахов. Для этого важно учитывать материал, из которого он изготовлен. Например, пластиковые сифоны менее подвержены коррозии и проще в уходе. Металлические модели, хоть и прочные, могут быть склонны к образованию ржавчины, что снижает их герметичность.
Немаловажную роль играет и форма сифона. Угловые сифоны занимают меньше места, но они могут быть менее эффективны в долгосрочной перспективе, так как их сложная форма может привести к накоплению грязи и водных отложений. Прямые сифоны с широким изгибом обеспечивают лучший водяной затвор и легче очищаются.
Для предотвращения запахов также важно регулярно проверять и чистить сифон, особенно если в доме стоит старое оборудование. Влага и остатки пищи или косметических средств, попадающие в слив, могут способствовать накоплению загрязнений, что в свою очередь ослабляет защиту сифона от запахов.
Какие типы сифонов существуют и чем они отличаются
Сифоны бывают разных типов, каждый из которых имеет свои особенности, преимущества и недостатки. Выбор зависит от конструкции раковины, пространства под ней и специфики использования. Рассмотрим основные виды сифонов.
1. Сифон трубный
Это классическая и самая распространённая конструкция. Сифон представляет собой изогнутую трубу, которая образует водяной затвор, предотвращающий проникновение запахов из канализации.
- Преимущества: Простота в установке, доступная цена.
- Недостатки: Требует много места для установки.
2. Сифон гофрированный
Гофрированный сифон состоит из гибкой трубки с согнутыми участками, что позволяет легко адаптировать его под нестандартные условия.
- Преимущества: Удобство монтажа, возможность регулировки длины.
- Недостатки: Меньшая долговечность, склонность к повреждениям при сильных изгибах.
3. Сифон бутылочный

Бутылочный сифон имеет форму сосуда, который собирает воду и создаёт необходимый водяной затвор. Он идеально подходит для мест с ограниченным пространством.
- Преимущества: Компактность, высокая эффективность при маленьких раковинах.
- Недостатки: Может собираться грязь и налёт в нижней части.
4. Сифон с отводом

Этот тип сифона оснащён дополнительным отводом для подключения стиральной или посудомоечной машины. Он имеет дополнительные элементы для подключения нескольких приборов к одной системе слива.
- Преимущества: Возможность подключения дополнительных сантехнических приборов.
- Недостатки: Более сложная установка, необходимость в дополнительных креплениях.
5. Сифон с водяным затвором и переливом
Сифоны с водяным затвором и переливом используются в раковинах, которые оснащены системой перелива для предотвращения переполнения. Такие сифоны идеально подходят для кухонных и ванных раковин, где важно обеспечить быстрое удаление воды.
- Преимущества: Защита от переполнения, идеален для установки в ванных и кухнях.
- Недостатки: Требует точности при монтаже, дороже обычных моделей.
При выборе сифона важно учитывать не только тип раковины, но и возможные особенности монтажа. В зависимости от того, какой тип сифона используется, могут потребоваться дополнительные детали или особенности установки.
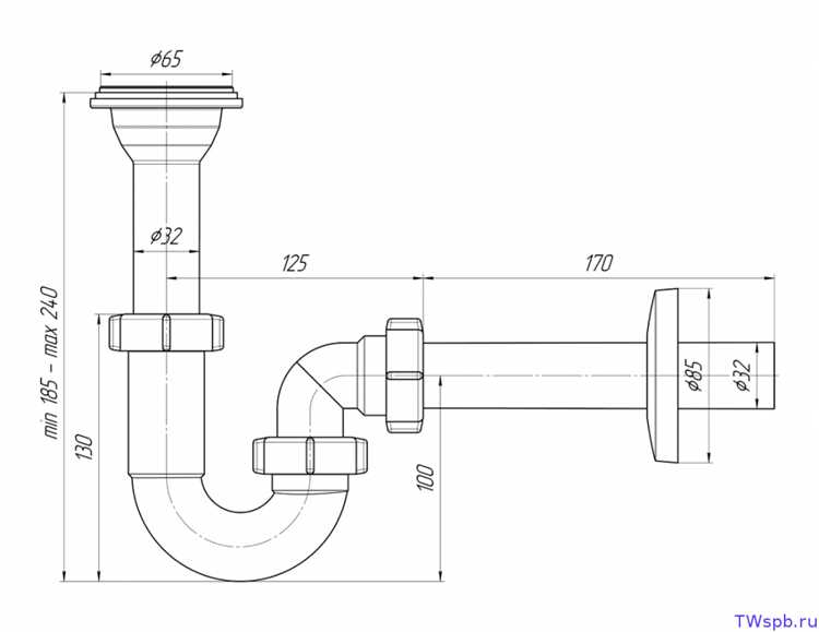
Как правильно выбрать размер сифона для вашей раковины

Первое, на что стоит обратить внимание – это диаметр сливного отверстия раковины. Стандартные размеры варьируются от 32 мм до 40 мм. Для большинства современных кухонных раковин и умывальников диаметр сифона обычно составляет 40 мм, но перед покупкой следует обязательно измерить размер отверстия, чтобы избежать несовместимости.
Высота сифона также имеет значение, особенно если под раковиной ограниченное пространство. Сифоны бывают с регулируемой или фиксированной высотой. Регулируемая модель позволяет настроить нужный уровень, что удобно при установке на различную высоту, а фиксированный – более стабилен и долговечен в эксплуатации.
Важным аспектом является тип сифона. Сифоны могут быть бутылочными, трубчатыми и гофрированными. Для стандартной раковины лучший выбор – это бутылочный сифон, который занимает меньше места, легко монтируется и имеет хорошую герметичность.
Обратите внимание и на материал изготовления. Пластиковые сифоны дешевле, но менее долговечны в случае частых температурных перепадов. Металлические сифоны, такие как из нержавеющей стали, предпочтительнее для долговечности, но и стоят дороже.
Не забывайте о запасных частях и системе отводов. Некоторые сифоны имеют встроенную систему для подключения стиральной или посудомоечной машины, что расширяет их функциональность, но также требует учета дополнительных размеров и типов подключения.
Материалы для сифонов: что выбрать для долговечности и надежности

Выбор материала сифона напрямую влияет на его долговечность и устойчивость к различным внешним воздействиям. На рынке представлены сифоны из нескольких основных материалов: пластика, нержавеющей стали и латунь. Каждый из них имеет свои особенности, которые важно учитывать при выборе.
Пластик – самый популярный и доступный материал для сифонов. Он устойчив к химическим воздействиям, не подвержен коррозии, легко монтируется и имеет небольшой вес. Однако, пластиковые сифоны могут деформироваться при высоких температурах, что сокращает их срок службы. Для долговечности рекомендуется выбирать модели из высококачественного пластика, например, из полипропилена или полиэтилена, которые обладают повышенной прочностью и устойчивостью к ударам.
Нержавеющая сталь – более долговечный и прочный материал. Сифоны из нержавейки не подвержены коррозии, выдерживают высокие температуры и имеют привлекательный внешний вид. Они идеально подходят для установки в условиях, где могут быть резкие перепады температуры или воздействие агрессивных химических веществ. Однако, нержавеющая сталь требует более внимательного монтажа, поскольку может быть подвержена механическим повреждениям.
Латунь – еще один прочный и долговечный материал, который отличается высокой стойкостью к коррозии. Латунные сифоны обладают хорошими антикоррозийными свойствами, что делает их идеальными для установки в ванных комнатах с высокой влажностью. Латунь, как и нержавеющая сталь, выдерживает высокие температуры, но в отличие от стали, латунь более подвержена механическим повреждениям и требует более тщательной защиты от химических воздействий.
При выборе материала сифона важно учитывать особенности эксплуатации: если сифоны используются в условиях высокой температуры и агрессивных химических веществ, лучше отдавать предпочтение нержавеющей стали или латуни. Для стандартных условий установки пластиковые модели будут оптимальным выбором с точки зрения стоимости и долговечности.
Как установить сифон под раковиной своими руками
Для установки сифона под раковиной понадобится минимальный набор инструментов: разводной ключ, трубный герметик и плоская отвертка. Прежде чем приступить, убедитесь, что водопровод и канализация отключены.
Первым шагом является снятие старого сифона. Для этого открутите соединительные гайки и аккуратно извлеките детали. Очистите место установки от грязи и старых уплотнителей. Если раковина новая, подготовьте место для монтажа сифона.
Теперь можно переходить к установке нового устройства. Начните с соединения гибкой трубки или основного трубопровода сифона с выпуском раковины. Убедитесь, что соединение выполнено без перекосов, иначе возможны утечки.
После того как трубка будет закреплена, установите сам корпус сифона. Важно, чтобы все детали плотно соединялись друг с другом, а резьбовые соединения не имели перекосов. Если с комплектом идет резиновый уплотнитель, поместите его в соответствующие места для предотвращения протечек.
При соединении сифона с канализационной трубой используйте герметик. Нанесите его на резьбовые части перед их соединением. После этого закрутите гайки вручную, но не перенапрягайте их, чтобы не повредить материал.
После завершения монтажа откройте воду и проверьте соединения на наличие протечек. Если все сухо, работа выполнена корректно.
Какие проблемы могут возникнуть при неправильном монтаже сифона
Также, если сифон установлен с нарушением углов наклона, вода не будет эффективно уходить в канализацию. Это приводит к накоплению сточных вод в системе, что в свою очередь может вызвать засоры, неприятные запахи и даже рост плесени. Оптимальный угол наклона трубы для нормального оттока жидкости составляет примерно 45 градусов.
Неправильный выбор материала сифона или использование дешевых комплектующих также может стать причиной поломки. Например, пластиковые сифоны низкого качества под воздействием горячей воды могут деформироваться, что приведет к их разрушению или утечке. Желательно выбирать модели с армированными соединениями, которые обеспечивают большую прочность.
Наконец, несоблюдение инструкции по установке может привести к плохому герметизирующему эффекту. Это может вызвать не только утечку воды, но и появление неприятных запахов из канализации. Важно использовать резинки или уплотнители, рекомендованные производителем, чтобы избежать таких проблем.
Как ухаживать за сифон и продлить срок его службы

Чтобы продлить срок службы сифона, важно регулярно проверять его на предмет засоров и повреждений. Необходимо избегать попадания в слив посторонних предметов, таких как волосы, крупные частицы пищи и жир. Эти вещества могут привести к образованию засоров и сокращению срока службы сифона.
Для профилактики засоров рекомендуется периодически промывать сифон горячей водой. Это поможет удалить накопившийся жир и мелкие частицы, которые могут вызвать затор. Промывание должно проводиться не реже одного раза в месяц, особенно если в доме часто используются кухонные раковины.
Для удаления запахов и предотвращения их возникновения можно использовать смесь соды и уксуса. Эти вещества эффективно очищают трубы и нейтрализуют неприятные запахи. Для этого нужно насыпать 2-3 столовые ложки соды в сливное отверстие, а затем залить уксусом. Через 10-15 минут промойте слив горячей водой.
Важно проверять герметичность соединений сифона. В случае появления утечек, необходимо сразу же подтянуть соединения или заменить прокладки. Это поможет избежать попадания воды под раковину, что может привести к образованию плесени или повреждению мебели.
Если сливы начинают плохо работать, рекомендуется разбирать и очищать сифон. Для этого нужно снять его с труб, удалить накопившиеся остатки пищи и жира, а затем собрать обратно. При необходимости замените старые прокладки на новые, чтобы предотвратить утечку воды.
Кроме того, стоит помнить, что некоторые химические средства для очистки труб могут повредить материал сифона, особенно если он пластиковый. Используйте средства, специально предназначенные для очистки труб, или выбирайте более щадящие варианты, такие как средства на основе природных ингредиентов.
Вопрос-ответ:
Что такое сифон под раковиной и зачем он нужен?
Сифон под раковиной — это сантехническое устройство, которое соединяет раковину с канализационной трубой. Его основная функция — предотвращать попадание неприятных запахов из канализации в помещение. Это достигается благодаря воде, которая находится в изгибе сифона и служит барьером для запахов.
Как выбрать сифон для раковины?
При выборе сифона важно учитывать несколько факторов. Во-первых, нужно смотреть на материал, из которого он изготовлен. Металлические сифоны обычно более долговечны, но пластик дешевле и легче в установке. Во-вторых, стоит выбрать сифон с системой «антираскол» или «антизасор», что поможет предотвратить накопление грязи. Также нужно обратить внимание на размер сифона и его совместимость с вашим типом раковины и трубопроводом.
Можно ли установить сифон самостоятельно?
Да, установить сифон под раковиной можно самостоятельно, если у вас есть базовые навыки работы с сантехникой. Основные этапы — это снятие старого сифона (если он был), установка нового и подключение его к канализационной системе. Важно, чтобы все соединения были герметичными, чтобы избежать протечек.
Как часто нужно чистить сифон под раковиной?
Чистить сифон нужно регулярно, хотя бы раз в полгода. Это поможет избежать засоров и неприятных запахов. Если в сифоне собирается много мусора (например, волосы или остатки пищи), его можно промыть более часто. Для чистки можно использовать уксус или специальное средство для сантехники.
Что делать, если из сифона идет неприятный запах?
Если из сифона идет запах, это может свидетельствовать о засоре или нарушении герметичности. Для начала нужно проверить, не образовался ли засор в самом сифоне или в трубах, соединяющих его с канализацией. Если все в порядке, возможно, нужно заменить резинки или проверить герметичность соединений. Также запах может появляться, если в сифоне нет воды — в таком случае достаточно немного налить воды в раковину, чтобы барьер из воды снова заработал.
Зачем нужен сифон под раковиной и как он работает?
Сифон под раковиной необходим для предотвращения попадания запахов из канализации в помещение. Он работает по принципу воды, которая задерживается в изгибе сифона, создавая своего рода «водяной затвор», который блокирует выход неприятных запахов. Также сифон помогает избежать попадания мусора и других частиц из канализационной трубы в раковину.
Как правильно выбрать сифон для раковины и на что обратить внимание при покупке?
При выборе сифона для раковины нужно учитывать несколько факторов. Во-первых, важно проверить его совместимость с вашей раковиной, так как разные модели могут иметь разные диаметры сливных отверстий. Во-вторых, необходимо выбрать материал сифона: наиболее популярны пластиковые и металлические модели. Пластиковые сифоны проще в установке и дешевле, но металлические более долговечные. Также стоит обратить внимание на конструкцию сифона: модели с регулировкой высоты позволяют лучше адаптироваться к различным условиям установки. Если раковина часто используется, лучше выбрать сифон с более простым и удобным обслуживанием.
