
В системах электроснабжения с переменным током наибольшую токовую нагрузку обычно принимает фазный провод, однако в ряде случаев нулевой провод может быть нагружен не меньше, а порой даже больше. Особенно это актуально в трёхфазных системах с несимметричной нагрузкой и присутствием нелинейных потребителей. Поэтому выбор сечения каждого проводника требует точного расчёта с учётом реальных условий эксплуатации.
На практике часто встречается ситуация, когда нулевой провод выполняется того же сечения, что и фазный, несмотря на потенциально меньшую нагрузку. Такой подход оправдан в бытовых однофазных цепях, где ток в нейтрали совпадает по значению с фазным. Однако в промышленных системах, где активна третья гармоника, ток в нулевом проводе может превышать фазный ток на 30–50% из-за сложения гармонических составляющих от трёх фаз. Это особенно критично при использовании оборудования с импульсными блоками питания, например, ИБП, серверов и LED-освещения.
Если не учитывать эти особенности и выбрать уменьшенное сечение нулевого проводника, возможен его перегрев, что приводит к снижению надёжности всей системы, повышенному риску возгорания и нестабильной работе оборудования. В противоположность этому, чрезмерное завышение сечения увеличивает затраты на кабельную продукцию без реальной необходимости. Оптимальное решение – расчет токов по фазам с учетом спектрального анализа и последующий выбор сечений на основе максимального значения тока в каждой жиле.
Рекомендуется применять автоматизированные расчёты с использованием стандартов ПУЭ и ГОСТ 31996-2012, а также учитывать коэффициенты нелинейности и возможную несимметрию. При наличии сильных гармоник допустимо применять нулевой провод большей толщины, чем фазные, либо использовать дублирование нейтрали в особо критичных цепях.
Почему фазный и нулевой провод могут иметь разную толщину

Фазный провод всегда нагружен током, потребляемым устройствами. Именно через него проходит полная нагрузка сети. Нулевой же провод в идеале используется как возвратный путь тока, и при равномерной нагрузке по фазам в трёхфазной системе ток в нём может быть значительно ниже, а иногда и стремиться к нулю.
В однофазных системах ноль также участвует в передаче тока, но при правильной организации сети его нагрузка идентична фазной. Однако при использовании отдельных линий для освещения и розеток, в распределённых системах (например, в многоквартирных домах) возможно снижение тока в нулевом проводе за счёт равномерного распределения нагрузки между фазами. Это даёт основания для применения провода меньшего сечения, если позволяют расчёты и нормативы.
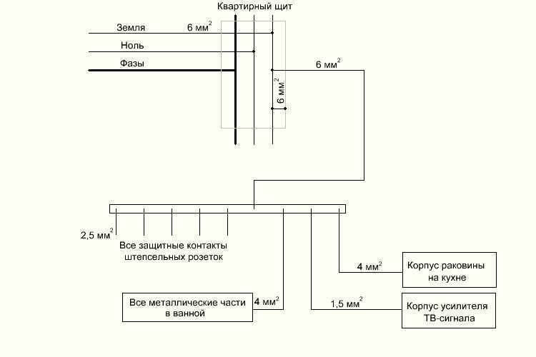
Ещё один фактор – тип используемого заземления. В системах TN-C, где совмещены нулевой и защитный проводники, сечение PEN-провода должно быть не менее сечения фазного, а при медных жилах – не менее 10 мм². В системах TN-S и TT допускается снижение сечения нулевого при условии, что оно обосновано расчетной токовой нагрузкой.
На практике, особенно в промышленных объектах, где токи могут быть высокими и несимметричными, уменьшение сечения нуля требует точных расчетов токовой нагрузки и учёта возможных гармоник, создаваемых импульсными нагрузками. Эти гармоники могут вызвать повышение тока в нулевом проводе, вплоть до превышения фазного.
Нормативные требования к сечению проводов в однофазных сетях
Сечение проводов в однофазных сетях определяется нормативами ПУЭ (Правила устройства электроустановок) и зависит от материала жил, способа прокладки, длительно допустимого тока и условий эксплуатации.
- Для медных проводников с открытой прокладкой минимальное допустимое сечение – 1,5 мм² при освещении и 2,5 мм² для розеточных групп.
- Алюминиевые жилы допускаются только с сечением от 2,5 мм² и выше. Использование алюминия в жилых помещениях ограничено.
- Независимо от нагрузки, сечение нулевого проводника (N) не может быть меньше сечения фазного (L). Допускается равное сечение, либо увеличение при наличии гармоник или несимметричной нагрузки.
- Для линий к розеткам мощных потребителей (водонагреватели, СВЧ, электроплиты) рекомендуется не менее 4 мм² при медных жилах.
- Прокладка в трубах, кабель-каналах или гофре требует учета снижения допустимого тока, соответственно сечение увеличивается на один шаг (например, с 2,5 мм² до 4 мм²).
- При длине линии свыше 25 метров необходимо учитывать падение напряжения. Допустимое падение – не более 5%. Это также требует увеличения сечения на шаг или два.
Расчет проводится по длительно допустимому току: для медных жил 2,5 мм² он составляет около 21 А при открытой прокладке, для 4 мм² – около 27 А. При скрытой прокладке эти значения снижаются на 15–20%.
Сечение защитного проводника (PE) должно соответствовать требованиям пункта 1.7.126 ПУЭ. При сечении фазного проводника до 16 мм² PE должен быть того же сечения.
Влияние асимметричной нагрузки на выбор толщины проводов
При несимметричном распределении нагрузки между фазами в трёхфазной системе ток в нулевом проводе может достигать значений, сопоставимых с током в фазных проводах. Особенно это актуально в сетях 230/400 В с преобладанием однофазных потребителей, таких как жилые здания и офисные помещения.
Если токи в фазах отличаются, результирующий ток в нулевом проводе определяется векторной суммой фазных токов. В крайних случаях, когда нагрузка сосредоточена только на одной фазе, ток в нулевом проводе равен фазному. Это требует соответствующего увеличения его сечения – как минимум до уровня фазного провода, а в ряде случаев и с запасом.
Кроме активной составляющей, особое внимание следует уделять гармоническим искажениями. Наличие нелинейных потребителей, таких как источники бесперебойного питания, компьютеры и светодиодные драйверы, приводит к протеканию третьих и кратных третьей гармоник. Эти токи суммируются в нулевом проводе, не компенсируясь, что может привести к перегреву при стандартном сечении.
В установках с преобладанием нелинейной нагрузки (офисные центры, серверные) рекомендуется использовать нулевой провод сечением на 50–100% больше фазного. Например, при использовании кабеля с фазными проводами по 10 мм², нулевой должен иметь сечение 16 мм² и более. Несоблюдение этого требования увеличивает риск выхода из строя изоляции и повышает вероятность пожара.
Для корректного выбора сечения необходимо анализировать не только номинальные токи, но и их гармонический спектр. Использование токовых клещей с функцией измерения искажений и регистрация длительных нагрузок позволяют обоснованно оценить требуемое сечение нулевого провода.
Условия, при которых сечение нулевого проводника увеличивается

Сечение нулевого проводника увеличивается при повышении потребляемой мощности на объекте, увеличении длины проводки, а также при изменении числа подключённых потребителей, особенно если они обладают низким коэффициентом мощности. В таких случаях возрастает ток, который должен быть пропущен через нулевой проводник, что приводит к необходимости увеличения его сечения для предотвращения перегрева и обеспечения безопасной эксплуатации электросети.
Сечение нулевого проводника также следует увеличивать при подключении систем с заземлением, где возникают дополнительные токи, связанные с несимметричностью нагрузки. В таких случаях увеличение сечения позволяет обеспечить должную надёжность работы системы заземления, особенно в случае короткого замыкания или других аварийных ситуаций.
Кроме того, увеличение сечения нулевого проводника требуется при наличии длинных проводных линий, на которых возможны значительные падения напряжения. Увеличение сечения позволяет снизить потери энергии, улучшив стабильность работы всей сети и повышая её эффективность.
Особое внимание стоит уделить сетям с переменной нагрузкой, где количество подключённых потребителей может варьироваться. В таких случаях проектирование должно учитывать максимальные значения тока, который может протекать через нулевой проводник в пиковые моменты потребления, что потребует увеличения его сечения для предотвращения перегрева проводника.
Как определить необходимую толщину нулевого провода в трёхфазной сети
Толщина (сечение) нулевого провода в трёхфазной системе определяется не симметричной нагрузкой, а током, протекающим по нейтральному проводнику при разбалансе фаз. При равномерной нагрузке на все три фазы ток в нуле стремится к нулю. Однако в реальных условиях часто возникает перекос, особенно в системах с преобладанием однофазных потребителей.
Первый шаг – измерение или расчёт максимального тока, который может протекать по нулевому проводу в условиях самой неблагоприятной несимметрии. Например, если одна фаза загружена на 25 А, а две другие практически без нагрузки, по нулю пройдёт почти 25 А.
Второй шаг – выбор сечения по току. Используется та же методика, что и для фазных проводников: допустимая токовая нагрузка по ПУЭ и поправки на длину линии и условия прокладки. Для медного провода в открытой прокладке при токе 25 А минимальное сечение – 4 мм². Для алюминия – не менее 6 мм².
Третий шаг – учёт гармоник. В сетях с импульсной нагрузкой (например, ИБП, LED-драйверы) по нейтрали может протекать ток, превышающий ток одной фазы. В таких случаях сечение нулевого проводника может быть равно или больше фазного. При значительном содержании третьих гармоник целесообразно закладывать сечение нейтрали до 1,5 раз больше фазного.
Нельзя допускать недооценки сечения нулевого проводника – перегрев и утрата изоляции могут привести к отключению фазы или выходу из строя оборудования. Проверка расчёта должна включать термический и электродинамический контроль по ГОСТ 31996 и ПУЭ, глава 1.3.
Рекомендация: при проектировании трёхфазных систем с переменной нагрузкой и чувствительным оборудованием сечение нулевого проводника должно быть не менее 50–100% от фазного, в зависимости от характера и степени несимметрии.
Ошибки при выборе сечения фазного и нулевого проводов в быту
Другой частый промах – игнорирование длины линии при расчёте сечения. При увеличении длины провода растёт сопротивление, что требует увеличения сечения, иначе падает напряжение и появляется риск перегрева. Для 220 В сети и расстояния свыше 20 метров сечение должно быть увеличено на 20–30% относительно стандартного значения.
Неправильный подбор по материалу провода тоже вызывает проблемы. Медь и алюминий имеют разное сопротивление, поэтому сечение алюминиевого провода должно быть больше, примерно на 1,5 раза, чем медного, для одинаковой нагрузки. Игнорирование этого приводит к опасному нагреву нулевого и фазного проводов.
Использование минимально допустимого сечения без запаса по мощности – частая ошибка. В бытовых сетях рекомендуют брать сечение с запасом 20-30% от расчётного, чтобы избежать перегрузок при временных пиковых нагрузках, особенно для нулевого проводника, который должен выдерживать токи замыканий и пусковые токи бытовых приборов.
Ошибки при выборе сечения негативно влияют на защиту электроприборов и безопасность человека, поэтому расчёт должен базироваться на реальных условиях эксплуатации: токах нагрузки, длине линии и материале проводников.
Рекомендации производителей кабелей по выбору сечения жил
Производители кабелей рекомендуют выбирать сечение жил исходя из расчетной нагрузки и условий прокладки. Особое внимание уделяется разнице в сечениях фазных и нулевых проводов, так как это влияет на безопасность и долговечность электросети.
- Фазные жилы выбираются согласно максимальному току нагрузки с учетом допустимого нагрева и падения напряжения. Для бытовых сетей обычно применяется сечение от 1,5 мм² до 6 мм², для промышленных – до 95 мм² и выше.
- Нулевые (нейтральные) жилы по нормативам чаще принимаются равными фазным, но при определенных условиях допускается уменьшение сечения до 70-80% от сечения фазных жил при сбалансированной нагрузке.
- Если нейтральный провод предназначен для компенсации токов несимметрии, его сечение должно быть не менее 50% сечения фазного, что подтверждается требованиями ГОСТ и ПУЭ.
- При длительных протяженных линиях допускается увеличение сечения нейтрали для снижения потерь и повышения надежности системы заземления.
- Производители рекомендуют использовать медные жилы для нейтрали при сечениях свыше 16 мм² для обеспечения стабильного контакта и минимизации окисления.
- В кабелях с защитным проводом (PE) его сечение обычно совпадает с сечением нулевого провода или выбирается исходя из наибольшего из сечений фазных жил, что повышает эффективность защиты.
- При монтаже кабелей в агрессивных условиях сечения жил могут быть увеличены на 10-15% с целью компенсации ухудшения теплового режима.
Соблюдение рекомендаций производителей гарантирует соответствие кабеля требованиям безопасности, снижает риск перегрева и способствует стабильной работе электросети.
Сравнение нагрева фазного и нулевого проводов при одинаковой нагрузке
При одинаковой нагрузке фазный провод испытывает больший нагрев по сравнению с нулевым из-за прохождения через него полной фазной токовой нагрузки. Нулевой провод, в системах с симметричной нагрузкой, несет только ток уравновешивания, который значительно меньше фазного. Это снижает его тепловую нагрузку и уменьшает риск перегрева.
Практические измерения показывают, что при нагрузке 16 А фазный провод нагревается до 60–70 °C, тогда как нулевой при тех же условиях – до 40–50 °C. Разница объясняется также реактивными составляющими тока и распределением токов в многопроводных кабелях.
Низкая температура нулевого провода допускает использование проводников меньшего сечения, однако снижение сечения нуля не должно превышать 25% от сечения фазного, чтобы избежать повышенного сопротивления и потенциального перегрева при несимметричных нагрузках.
Рекомендации по проектированию предусматривают контроль температуры нулевого провода в эксплуатации, особенно в системах с неравномерным распределением фазной нагрузки. При частых перекосах тока сечение нулевого провода должно соответствовать фазному для исключения локального перегрева и повышения пожарной безопасности.
Вопрос-ответ:
Почему толщина фазного провода обычно больше, чем нулевого?
Толщина фазного провода больше, потому что через него протекает основная нагрузка — ток, который питает электрические приборы. Чтобы избежать перегрева и потерь энергии, фазный провод делают толще. Нулевой провод служит для обратного пути тока и обычно несет меньшую нагрузку, поэтому его диаметр может быть меньше.
Как влияет разница в толщине фазного и нулевого проводов на безопасность электросети?
Правильное соотношение толщины проводов помогает снизить риск перегрева и коротких замыканий. Если фазный провод слишком тонкий, он может быстро нагреться и повредиться. Если же нулевой провод слишком тонкий, это может привести к нестабильной работе электрооборудования или даже к возгоранию. Поэтому соблюдение нормативов по диаметру проводов является важным аспектом безопасности.
Можно ли использовать одинаковую толщину фазного и нулевого проводов в бытовой электропроводке?
В бытовых условиях иногда применяют провода одинаковой толщины, особенно если нагрузка небольшая и электрическая схема простая. Однако это не всегда оправдано с технической точки зрения. Обычно нулевой провод может быть немного тоньше, так как он несет меньший ток. Использование одинаковой толщины иногда обусловлено удобством монтажа или наличием стандартных кабелей.
Какие стандарты регулируют выбор толщины фазного и нулевого проводов?
Выбор сечения проводов регулируется национальными и международными нормативами, такими как ПУЭ (Правила устройства электроустановок) в России. В этих документах указаны минимальные требования к диаметру проводов в зависимости от силы тока, материала проводника и условий эксплуатации. Соблюдение этих норм гарантирует надежность и безопасность электросети.
Как влияет материал проводника на толщину фазного и нулевого проводов?
Материал проводника — медь или алюминий — существенно влияет на сечение провода. Медные провода обладают большей проводимостью, поэтому для той же нагрузки их можно делать тоньше. Алюминиевые провода требуют большего сечения, чтобы обеспечить такую же пропускную способность. Это касается и фазных, и нулевых проводов, хотя у фазного сечение обычно всегда больше.
Почему у фазного провода обычно больший диаметр, чем у нулевого, и насколько это оправдано с технической точки зрения?
Фазный провод несет ток под напряжением и отвечает за передачу электроэнергии к потребителю. Он должен выдерживать максимальные токовые нагрузки, поэтому его сечение рассчитывают с запасом по тепловой и электрической нагрузке. Нулевой провод предназначен для возврата тока и часто несет меньшую нагрузку, особенно при сбалансированных нагрузках в трехфазных системах. Кроме того, сопротивление и нагрев фазного провода оказывают большее влияние на безопасность и качество электроэнергии, поэтому диаметр фазного провода делают больше, чтобы снизить потери и предотвратить перегрев. Такой подход считается оптимальным для обеспечения надежности и долговечности электросети.
