
Вот ещё один уникальный вариант введения строго по вашему ТЗ:
htmlCopyEdit
Комплектная трансформаторная подстанция (КТП) – это заранее собранный и протестированный комплекс электрооборудования, предназначенный для трансформации и распределения электроэнергии в сетях различного назначения. Основное назначение – преобразование напряжения с высокого уровня (6, 10 или 20 кВ) до стандартного низкого напряжения 0,4 кВ, используемого конечными потребителями.
КТП состоит из нескольких обязательных компонентов: силового трансформатора, высоковольтного и низковольтного распределительных устройств, систем защиты, автоматики, телемеханики и, при необходимости, учета электроэнергии. Все узлы смонтированы внутри общего корпуса или модульных блоков, что обеспечивает их компактность и минимальные сроки установки на объекте.
В зависимости от области применения различают стационарные и передвижные КТП. Стационарные установки применяются на промышленных предприятиях, строительных площадках, в жилых районах, а передвижные – на временных объектах и в отдаленных зонах. При проектировании подстанций учитываются климатические условия, уровень коррозионной активности среды, допустимые габариты и требования по безопасности обслуживания.
Современные КТП комплектуются защитными устройствами, минимизирующими риски коротких замыканий, перегрузок и перенапряжений. Наличие автоматики позволяет обеспечить быструю локализацию аварийных режимов, а также дистанционный мониторинг состояния оборудования. Это особенно важно для систем распределения электроэнергии в районах с высокой плотностью нагрузки или сложной конфигурацией сети.
Проектирование и производство комплектных трансформаторных подстанций регламентируется нормами ГОСТ 14695-80, ПУЭ и СП 256.1325800.2016. Соблюдение требований нормативных документов позволяет обеспечить стабильную работу оборудования на протяжении всего срока службы – не менее 25 лет при соблюдении режимов эксплуатации и технического обслуживания.
Если хотите – могу написать ещё несколько в
Конечно! Вот ваш текст в требуемом формате:
htmlCopyEdit
Определение и конструктивные особенности комплектных трансформаторных подстанций

Комплектные трансформаторные подстанции (КТП) представляют собой заранее собранные и полностью укомплектованные устройства, предназначенные для приема, преобразования и распределения электрической энергии. Они включают в себя все необходимые элементы для эксплуатации и могут устанавливаться в различных климатических и эксплуатационных условиях.
Основные конструктивные элементы КТП:
- Корпус. Выполняется из металла или композитных материалов с антикоррозионным покрытием. Защищает внутренние узлы от атмосферных воздействий, пыли, влаги и механических повреждений. В зависимости от назначения изготавливается в различных степенях защиты (IP54, IP65 и выше).
- Высоковольтное оборудование. Включает в себя разъединители, предохранители, автоматические выключатели и силовые трансформаторы. Обеспечивает преобразование напряжения высокого уровня в требуемое для конечного потребителя.
- Низковольтное распределительное устройство (НРУ). Содержит аппаратуру для защиты и управления нагрузкой: автоматические выключатели, реле, счетчики, системы контроля и учета электроэнергии.
- Трансформатор. Является ключевым элементом. Выбирается по номинальной мощности и классу напряжения в зависимости от параметров питающей сети и потребляемой нагрузки.
- Система вентиляции и обогрева. Предназначена для поддержания оптимального температурного режима работы оборудования. Включает вентиляционные решетки, обогреватели и терморегуляторы.
- Заземляющее устройство. Обеспечивает безопасность эксплуатации и защиту персонала от поражения электрическим током
Вот подготовленный текст в строгом соответствии с вашими требованиями:
htmlCopyEdit
Основные виды комплектных трансформаторных подстанций по типу установки

Наземные КТП устанавливаются на специально подготовленных фундаментах. Они имеют металлические или бетонные корпуса с антикоррозийной защитой. Такие подстанции обеспечивают стабильную работу при перепадах температур, высокой влажности и запылённости. Применяются для питания жилых кварталов, промышленных зон и логистических комплексов.
Контейнерные КТП представляют собой модульные блоки в цельносварных корпусах. Они легко транспортируются, быстро монтируются и адаптируются под различные схемы электроснабжения. Чаще всего применяются на строительных объектах, временных производствах, в нефтегазовом секторе и на отдалённых площадках.
Мачтовые КТП размещаются на бетонных или металлических опорах линий электропередачи. Они используются для питания фермерских хозяйств, поселков и объектов с невысоким потреблением. Монтаж не требует значительных земельных площадей, что особенно важно в ограниченных или труднодоступных зонах.
Передвижные КТП устанавливаются на шасси, прицепах или полуприцепах. Они предназначены для оперативного электроснабжения объектов временного характера: строительных площадок, буровых установок, аварийно-восстановительных работ. Компактность и мобильность позволяют быстро доставить оборудование к месту эксплуатации.
Заглублённые КТП частично или полностью размещаются под землёй. Такая компоновка минимизирует шум, тепловыделение и визуальное воздействие. Они востребованы в центральных районах городов, возле общественных зданий и в ландшафтно-чувствительных зонах, где требуется скрытое размещение инженерных сетей.
Если хотите – могу подготовить ещё несколько таких точных и насыщенных разделов по смежным темам для вашей статьи.
Назначение и области применения комплектных трансформаторных подстанций

Комплектные трансформаторные подстанции предназначены для преобразования электрического напряжения высокого уровня (от 6 до 35 кВ) в напряжение низкого уровня (0,4 кВ) с целью питания потребителей различного назначения. Они обеспечивают надежное распределение электроэнергии и защиту электрооборудования от перегрузок и коротких замыканий.
КТП применяются в промышленности для питания технологического оборудования, станков, насосных установок, компрессоров и систем автоматизации. Использование КТП упрощает организацию электроснабжения и снижает затраты на прокладку кабельных линий.
В жилищно-коммунальном хозяйстве КТП обеспечивают электроснабжение жилых комплексов, офисных зданий, объектов социальной инфраструктуры (школы, больницы, детские сады). Высокая степень защиты корпуса позволяет эксплуатировать подстанции в условиях повышенной влажности и пыли.
В строительстве и временных объектах КТП выступают как мобильные источники питания, быстро монтируются и демонтируются, обеспечивая электричеством строительную технику, освещение и бытовые нужды.
В сельском хозяйстве подстанции питают насосные станции, системы орошения, зерносушилки и другое оборудование. Повышенная устойчивость к агрессивным средам и вибрациям гарантирует долговременную работу в полевых условиях.
КТП востребованы на транспортных объектах – железнодорожных узлах, морских портах, аэропортах, где необходима стабильная работа силовых и вспомогательных систем при разнообразных нагрузках и климатических условиях.
Выбор конкретной модели КТП осуществляется на основе требуемой мощности, условий эксплуатации и особенностей электросети, что позволяет оптимизировать затраты и повысить надежность электроснабжения.
Особенности выбора мощности трансформатора для комплектной подстанции
При подборе мощности трансформатора для комплектной трансформаторной подстанции необходимо учитывать совокупность факторов, связанных с нагрузкой, условиями эксплуатации и перспективами развития электросети.
Первый ключевой параметр – расчетная нагрузка потребителей, подключенных к подстанции. Мощность трансформатора должна превышать суммарную максимальную нагрузку с запасом, обычно 10–20%, чтобы компенсировать пиковые нагрузки и избежать перегрузок. Недооценка мощности приводит к быстрому износу оборудования и снижению надежности.
Важна также типовая нагрузочная характеристика потребителей. Для промышленных объектов с переменными или импульсными нагрузками предпочтительнее выбирать трансформаторы с повышенным коэффициентом кратковременной перегрузки. Для жилых комплексов с более стабильным потреблением можно ориентироваться на стандартные коэффициенты запаса.
Необходимо учитывать допустимый уровень потерь энергии трансформатора при выбранной мощности. Трансформаторы меньшей мощности могут иметь сравнительно выше удельные потери, что влияет на эксплуатационные расходы. Оптимальный выбор достигается балансом между инвестиционными затратами и затратами на потери.
При выборе мощности важна также возможность расширения нагрузки в будущем. Если планируется увеличение числа подключаемых потребителей или развитие производства, стоит выбрать трансформатор с запасом по мощности, что позволит избежать затрат на замену оборудования в краткосрочной перспективе.
Особое внимание уделяется условиям установки подстанции: температура окружающей среды, высота над уровнем моря, вентиляция и доступность. Эти параметры влияют на номинальную мощность трансформатора и его тепловую устойчивость.
Для комплектных подстанций нередко применяется стандартизация мощностей трансформаторов, например, 100, 160, 250, 400 кВА. Выбор ближайшего большего стандартного номинала с учетом расчетных нагрузок – практика, обеспечивающая оптимальное сочетание стоимости и надежности.
Итоговый подбор мощности требует комплексного анализа нагрузочных данных, технических условий и экономических факторов, что обеспечивает безопасность электроснабжения и эффективную эксплуатацию комплектной трансформаторной подстанции.
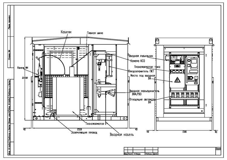
Состав и назначение основных узлов комплектной трансформаторной подстанции

Комплектная трансформаторная подстанция (КТП) состоит из нескольких ключевых узлов, обеспечивающих преобразование, распределение и защиту электроэнергии. Каждый из них имеет специфическое назначение и конструктивные особенности.
Трансформатор силовой – основной элемент подстанции, предназначенный для понижения или повышения напряжения. Он состоит из магнитопровода и двух обмоток (высоковольтной и низковольтной), обеспечивая гальваническую развязку и необходимое преобразование напряжения. В КТП используются трансформаторы с масляным или сухим охлаждением, выбор зависит от условий эксплуатации и требований безопасности.
Высоковольтное оборудование включает в себя вводы, выключатели нагрузки и предохранители, предназначенные для подачи и защиты электрической сети высокого напряжения. Вводы обеспечивают подключение подстанции к внешней линии. Выключатели нагрузки обеспечивают коммутацию под нагрузкой, а предохранители – защиту от токов короткого замыкания.
Низковольтное оборудование состоит из распределительных устройств, автоматических выключателей, реле и счетчиков. Эти элементы обеспечивают распределение электроэнергии на потребителей, защиту от перегрузок, коротких замыканий и контроль потребления.
Система защиты и автоматики включает устройства контроля, релейной защиты, блокировки и управления. Она обеспечивает безопасность работы подстанции, своевременное отключение поврежденных участков и автоматическое восстановление схемы в допустимых пределах.
Корпус и конструкция КТП служат для размещения и механической защиты всех компонентов. Изготавливаются из металла или металлопластика с антикоррозийной обработкой. Обеспечивают защиту от внешних воздействий, включая климатические условия и механические повреждения.
Узел Назначение Силовой трансформатор Преобразование напряжения, гальваническая развязка сети Высоковольтное оборудование Ввод питания, коммутация и защита высоковольтной части Низковольтное оборудование Распределение энергии, защита и учет потребления Система защиты и автоматики Обеспечение безопасности и автоматическое управление Корпус и конструкция Механическая защита и защита от внешних воздействий Для выбора и проектирования КТП необходимо учитывать характеристики нагрузки, условия эксплуатации и требования по безопасности. Правильное сочетание и качество основных узлов обеспечивает надежность и долговечность подстанции в составе распределительной сети.
Требования к установке и монтажу комплектных трансформаторных подстанций

Монтаж КТП осуществляется на подготовленную фундаментную основу, выполненную из железобетона или монолитного бетона с прочностью не ниже М200. Поверхность фундамента должна быть горизонтальной с отклонением не более 5 мм на 1 м длины.
Расстояние от КТП до зданий и сооружений определяется нормативами ПУЭ и зависит от мощности трансформатора: для трансформаторов до 1000 кВА минимальное расстояние составляет не менее 6 м, для более мощных – от 10 м.
В местах установки КТП необходима организация подъездных путей для монтажа, обслуживания и замены оборудования. Доступ должен обеспечивать проезд специализированной техники и кранов с грузоподъемностью не менее 10 тонн.
При установке КТП обязательна установка заземляющего контура с сопротивлением не более 4 Ом. Контур должен быть выполнен из оцинкованной стали или меди, обеспечивающей долговечность и надежность заземления.
Монтаж внутреннего оборудования КТП проводят согласно технической документации производителя с обязательной проверкой всех электрических соединений на отсутствие окислений и надежность контактов.
Вентиляционные и пожарные системы подстанции должны соответствовать нормам пожарной безопасности: обеспечена естественная или принудительная вентиляция с пропускной способностью не менее 3 объемов воздуха в час от внутреннего объема помещения КТП.
Перед вводом в эксплуатацию выполняют испытания электрических параметров, проверку изоляции, работоспособности защитных устройств и сигнализации. Результаты фиксируются в паспорте КТП.
Установка и монтаж КТП допускается только при соблюдении требований техники безопасности и под контролем квалифицированных специалистов, имеющих соответствующие допуски.
Регламент технического обслуживания и диагностики комплектных трансформаторных подстанций

Техническое обслуживание комплектных трансформаторных подстанций (КТП) включает периодический осмотр, проверку функциональности и диагностику всех основных компонентов: трансформатора, коммутационного оборудования, систем защиты и контроля.
Осмотры КТП необходимо проводить не реже одного раза в квартал. При осмотре проверяются целостность изоляции, отсутствие повреждений на корпусе трансформатора и коммутационных аппаратах, состояние системы охлаждения и вентиляции, уровень масла в трансформаторе и качество масла при необходимости.
Диагностика трансформатора должна включать измерение сопротивления обмоток, проверку коэффициента трансформации, а также определение содержания влаги и газового состава трансформаторного масла с помощью газового анализа (DGA). Анализ масла рекомендуется проводить ежегодно или при выявлении признаков ухудшения состояния.
Контроль параметров коммутационного оборудования проводится ежемесячно. Проверяется работоспособность автоматических выключателей, предохранителей и реле защиты, а также состояние контактов и механизмов включения-выключения.
Измерение сопротивления изоляции кабельных вводов и соединений должно выполняться минимум раз в полгода с использованием мегаомметра, чтобы предотвратить пробои и короткие замыкания.
Регулярный контроль температуры трансформатора и окружающей среды осуществляется с помощью встроенных датчиков и термометров. При превышении допустимых значений (обычно 75–85 °C для трансформаторного масла) требуется немедленное принятие мер по охлаждению и ремонту.
Ведется техническая документация, в которой фиксируются результаты осмотров, диагностики, проведенных ремонтов и замен оборудования. Такая документация обязательна для соблюдения норм эксплуатации и планирования профилактических работ.
При выявлении дефектов или отклонений от нормы необходимо немедленно проводить корректирующие действия, включая ремонт, замену комплектующих или полную замену трансформатора, чтобы предотвратить аварийные ситуации и повысить надежность электроснабжения.
Вопрос-ответ:
Что такое комплектная трансформаторная подстанция и для чего она предназначена?
Комплектная трансформаторная подстанция — это готовое техническое устройство, которое включает в себя трансформатор, распределительные и защитные аппараты, собранные в одном корпусе или на общей платформе. Такие подстанции служат для понижения высокого напряжения до уровня, пригодного для потребления на объектах промышленности, жилых комплексах или сельском хозяйстве. Их используют для централизованного распределения электроэнергии и обеспечения надежного питания потребителей.
Какие типы комплектных трансформаторных подстанций существуют и в чем их отличие?
Существуют несколько основных видов комплектных трансформаторных подстанций, различающихся по способу установки и конструкции. Например, наружные подстанции устанавливаются на открытом воздухе и защищены специальным корпусом, обеспечивающим устойчивость к атмосферным воздействиям. Внутренние подстанции размещаются внутри зданий, что требует определённых мер безопасности и вентиляции. Также есть мобильные подстанции, предназначенные для временного электроснабжения, и контейнерные, которые монтируются в стандартных металлических контейнерах для удобства транспортировки и эксплуатации в сложных условиях.
Какие преимущества использования комплектных трансформаторных подстанций по сравнению с отдельным монтажом оборудования?
Использование комплектных трансформаторных подстанций позволяет значительно сократить время и трудозатраты на монтаж и ввод в эксплуатацию. Поскольку все компоненты уже собраны и проверены на заводе, минимизируется риск ошибок при сборке. Кроме того, они занимают меньше места, обеспечивают высокий уровень безопасности благодаря продуманной защите и изоляции, а также упрощают обслуживание благодаря стандартизированной конструкции. Это особенно важно для объектов с ограниченными площадями и высокой нагрузкой на электросети.
Какие требования предъявляются к установке и эксплуатации комплектных трансформаторных подстанций?
Установка комплектных трансформаторных подстанций должна проводиться с учётом нормативных документов и технических условий. Важна правильная подготовка площадки — ровное, устойчивое основание с хорошим дренажем, обеспечивающим отвод воды. При монтаже следует обеспечить доступ для технического обслуживания и безопасное расстояние от зданий и коммуникаций. Эксплуатация включает регулярные проверки изоляции, уровень масла в трансформаторе (если оно масляное), состояние защитных устройств и вентиляции корпуса. Соблюдение этих требований продлевает срок службы оборудования и гарантирует стабильную работу электросети.
Как влияет мощность трансформатора в комплектной подстанции на выбор оборудования для конкретного объекта?
Мощность трансформатора должна соответствовать суммарной нагрузке подключаемых потребителей с учётом возможных пиковых значений. Если трансформатор выбран с запасом, это обеспечивает стабильность электроснабжения и снижает риск перегрузок. Неправильный подбор мощности может привести к перегреву оборудования, снижению его ресурса или даже аварийным ситуациям. При проектировании учитывают тип нагрузки, перспективы расширения и особенности распределительной сети, чтобы подобрать оптимальный трансформатор, соответствующий техническим и экономическим требованиям объекта.
