
Выбор направления открывания двери в санузле напрямую влияет на комфорт и безопасность использования помещения. Важным фактором является сохранение свободного пространства, особенно в ограниченных по площади ванных комнатах. Правильное открывание предотвращает блокировку прохода и обеспечивает удобство доступа к сантехнике.
Рекомендуется устанавливать дверь так, чтобы она открывалась внутрь при площади санузла более 3 кв. метров и наружу – при меньших размерах или в случаях, когда внутрь установить дверь невозможно из-за расположения сантехники. При этом наружное открывание должно быть тщательно продумано, чтобы не создавать препятствий в коридоре или других смежных помещениях.
Обратите внимание на требования пожарной безопасности: дверь должна открываться в сторону выхода, что облегчает эвакуацию при экстренных ситуациях. Дополнительно стоит учитывать особенности монтажа дверной коробки и наличие вентиляционных отверстий, чтобы обеспечить нормальный воздухообмен и предотвратить образование неприятных запахов.
Как выбрать сторону открывания двери с учетом размеров помещения

Правильный выбор стороны открывания двери в санузле напрямую зависит от габаритов помещения и расположения сантехники. В узких или малогабаритных санузлах критично учитывать свободное пространство для комфортного входа и выхода.
Основные параметры, которые влияют на выбор:
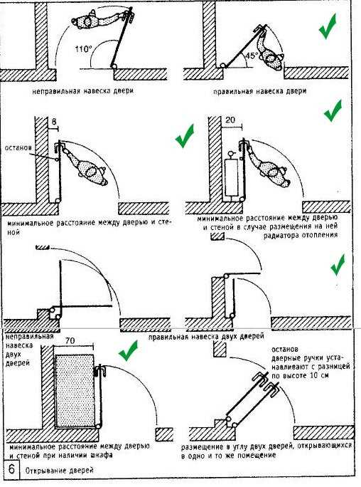
- Ширина прохода: Минимальное расстояние между дверным проемом и противоположной стеной должно быть не менее 60 см, чтобы дверь не мешала свободному передвижению.
- Расстояние до сантехники: Дверь не должна открываться на унитаз, раковину или душевую кабину, чтобы избежать повреждений и неудобств.
- Возможность полного открывания двери: Для стандартных дверей шириной 60-70 см необходим радиус открывания около 80 см, который должен быть свободен.
Рекомендуется учитывать следующие правила:
- Если пространство с одной стороны двери шире и свободнее – дверь должна открываться именно в эту сторону.
- При узких помещениях предпочтительно открывать дверь внутрь, если площадь санузла от 1,5 м² и выше, при условии, что внутренняя зона открывания не блокирует доступ к сантехнике.
- Если санузел очень маленький (менее 1,5 м²), оптимально рассмотреть вариант открывания двери наружу, чтобы сохранить внутреннее пространство.
- При планировке с расположением сантехники у стены рядом с дверным проемом стоит направить открывание в противоположную сторону.
Дополнительно стоит учитывать направление движения в коридоре или соседнем помещении. Дверь не должна перекрывать проход или создавать неудобства для пользователей.
При сомнениях точные замеры и моделирование открывания двери на месте помогут определить оптимальное направление и предотвратить функциональные ошибки.
Влияние направления открывания двери на удобство пользования санузлом

Направление открывания двери напрямую влияет на эргономику пространства санузла. При открывании внутрь важно учитывать, чтобы дверь не блокировала доступ к унитазу, раковине или другим элементам. В маленьких помещениях дверь, открывающаяся внутрь, может ограничивать свободное перемещение и создавать неудобства при использовании санитарной техники.
Открывание двери наружу позволяет освободить внутреннее пространство, облегчая маневры и обеспечивая более комфортное использование. Однако нужно проверить, не создает ли такая дверь препятствий в коридоре или другой смежной зоне.
Оптимальное направление выбирается с учетом габаритов помещения и расположения коммуникаций. Если санузел малогабаритный (до 2 кв.м), рекомендуется дверь открывать наружу для увеличения полезной площади внутри. В просторных санузлах можно выбрать открывание внутрь, но с учетом минимального перекрытия ключевых зон.
Важно также учитывать безопасность: дверь, открывающаяся наружу, облегчает эвакуацию в экстренных ситуациях и позволяет избежать травм при резком открывании. Кроме того, для пользователей с ограниченной подвижностью наружное открывание значительно повышает удобство.
Резюмируя, направление открывания должно исключать перекрытие важных элементов и обеспечивать свободный проход, что критично для функциональности и комфорта санузла.
Безопасность и правила открывания дверей в санузлах жилых помещений

Направление открывания двери в санузле должно обеспечивать быстрый и беспрепятственный доступ в помещение при чрезвычайных ситуациях. В жилых домах оптимально, чтобы дверь открывалась наружу, так как это позволяет избежать блокировки входа в случае падения человека внутри санузла.
Важно соблюдать минимальные нормы свободного пространства перед дверью – при открытии должно оставаться не менее 60 см для безопасного прохода и маневра. Узкие коридоры и близость сантехники требуют дополнительного контроля, чтобы дверь не задевала предметы и не создавалась опасность травмирования.
Для многоквартирных домов рекомендуется установка дверей с системой аварийного открывания или с внутренним замком, позволяющим открыть дверь снаружи без ключа при необходимости оказания помощи.
Противопожарные и санитарные нормы предусматривают, что двери должны быть влагостойкими и оснащены надежными уплотнителями, препятствующими распространению запахов и влаги в жилые помещения. Ручки и замки должны располагаться на высоте не менее 90 см и быть удобны для быстрого использования.
Необходимо избегать установки дверей, открывающихся внутрь при маленьких размерах санузла – это ограничивает свободное пространство и повышает риск травм. В случае ограниченной площади целесообразно использовать раздвижные или складные конструкции.
| Параметр | Рекомендация |
|---|---|
| Направление открывания | Открывание наружу |
| Минимальная ширина прохода при открытой двери | 60 см |
| Высота установки ручек и замков | От 90 см |
| Тип двери для малых санузлов | Раздвижная или складная |
| Система аварийного открывания | Рекомендуется для безопасности |
Как избежать конфликтов с мебелью и сантехникой при открывании двери

Для предотвращения препятствий двери при открывании необходимо учитывать расстояния между дверным проёмом и ближайшими элементами интерьера. Минимальное свободное пространство перед дверью должно быть не менее 60 см, чтобы дверь могла свободно открываться без контакта с сантехникой или мебелью.
При планировании расположения сантехнических приборов следует учитывать направление открывания двери. Например, если дверь открывается внутрь санузла, расположение раковины или унитаза должно находиться на противоположной стороне от петлевой стороны двери, чтобы исключить столкновение.
В узких помещениях предпочтительно выбирать дверь с открыванием наружу, чтобы сохранить свободное пространство внутри. В случае невозможности установки наружного открывания, рекомендуется использовать раздвижные двери или двери с функцией складывания, которые не требуют дополнительного пространства для качания.
Расположение мебели (шкафчиков, полок) должно быть спроектировано с учётом радиуса открывания двери. Необходимо выдерживать зазор не менее 10 см от края дверного полотна до ближайшего предмета мебели, чтобы предотвратить заедания и повреждения поверхностей.
Использование узких и компактных моделей сантехники, например, подвесных унитазов или раковин, помогает увеличить полезное пространство и минимизировать риск блокировки двери. Важно предварительно сделать точные замеры с учётом толщины дверного полотна и фурнитуры.
При монтаже дверных ручек выбирайте конструкции, не выступающие за пределы полотна более чем на 5 см, чтобы они не зацеплялись за соседние предметы при открывании.
Особенности открывания дверей в общественных и коммерческих санузлах

В общественных и коммерческих санузлах оптимальным считается открывание двери наружу помещения. Это позволяет ускорить эвакуацию и предотвращает блокировку прохода при скоплении людей. Согласно нормам пожарной безопасности, двери должны открываться в сторону выхода, чтобы избежать затруднений при экстренных ситуациях.
При выборе направления открывания учитывается пространство коридоров и прилегающих зон. Дверь, открывающаяся наружу, не создает помех для оборудования и сантехники внутри кабинок, что снижает риск повреждений и упрощает обслуживание. Кроме того, наружное открывание снижает вероятность столкновений между посетителями, выходящими из кабинки, и теми, кто ожидает.
В узких помещениях допускается установка раздвижных дверей или дверей с поворотом под углом более 90°, что экономит полезную площадь и улучшает эргономику. Важно предусмотреть достаточный зазор для маневра инвалидных колясок и обеспечить легкость открытия с минимальными усилиями – требования регламентируют использование дверных механизмов с усилием не более 30 Н.
Для обеспечения гигиены и безопасности дверные ручки и замки должны быть устойчивы к интенсивной эксплуатации и легко дезинфицироваться. В ряде случаев целесообразно использовать автоматические или бесконтактные механизмы, которые исключают необходимость касания поверхности, снижая риск распространения бактерий.
Особое внимание уделяется звукоизоляции и герметичности дверей, чтобы минимизировать проникновение запахов и шума. Использование уплотнительных профилей и специальных материалов в конструкции двери улучшает комфорт пользователей и соответствует санитарным требованиям.
Технические требования к направлению открывания дверей согласно строительным нормам

Согласно СНиП 21-01-97 и СП 54.13330.2016, двери в санузлах должны открываться таким образом, чтобы обеспечивать свободный и безопасный выход из помещения при экстренных ситуациях. Для жилых помещений предпочтительно внутреннее открывание двери с учётом минимального конфликта с сантехникой и мебелью.
Минимальная ширина проёма двери в санузле должна быть не менее 600 мм, а свободное пространство при открывании – не создавать препятствий для прохода. Запрещается направление открывания двери наружу в узких коридорах и там, где это может перекрывать эвакуационные пути.
Для общественных и коммерческих зданий нормы предусматривают обязательное открывание дверей в сторону выхода из помещения. Это снижает риск блокировки при большом потоке людей и ускоряет эвакуацию. В случаях установки противопожарных дверей направление открывания регулируется отдельными требованиями ГОСТ Р 53307-2009.
Запирающие устройства на дверях санузлов должны обеспечивать лёгкое открывание изнутри без ключа или специальных приспособлений, что является обязательным условием безопасности. Направление открывания не должно создавать риск травм при внезапном открытии, особенно в условиях ограниченного пространства.
При проектировании дверей в санузлах также учитывается наличие порогов и уровень пола, чтобы избежать препятствий и обеспечить доступность для лиц с ограниченными возможностями, согласно ГОСТ Р 52875-2007.
Вопрос-ответ:
Почему направление открывания двери в санузле влияет на безопасность в помещении?
Правильно выбранное направление открывания двери предотвращает блокировку прохода и облегчает доступ при чрезвычайных ситуациях. Например, дверь, открывающаяся внутрь, может затруднить выход, если человек упадёт рядом с дверью или возникнет необходимость экстренной эвакуации. В небольших санузлах дверь, открывающаяся наружу, уменьшает риск травм и облегчает помощь посторонним.
Какие строительные нормы регулируют направление открывания дверей в санузлах жилых домов?
В российских строительных нормах, таких как СНиП и СП, предусмотрены требования, касающиеся направления открывания дверей в помещениях с ограниченным пространством. В санузлах допускается открывание двери внутрь, если площадь помещения позволяет обеспечить беспрепятственное движение. При маленькой площади рекомендуют дверь открывать наружу для удобства и безопасности. Для общественных зданий часто используются двери с открыванием наружу или раздвижные конструкции.
Как выбрать сторону открывания двери, чтобы не мешать сантехнике и мебели в санузле?
При выборе стороны открывания учитывают расположение раковины, унитаза и других элементов. Дверь должна открываться в сторону, где нет препятствий, чтобы не создавать помех и не повредить оборудование. Например, если унитаз установлен справа, дверь лучше открыть налево. Это обеспечит свободный проход и исключит риск ударов дверью по сантехнике.
Можно ли в небольшом санузле установить дверь, открывающуюся внутрь, и при каких условиях это допустимо?
Да, установка двери с открыванием внутрь возможна, если площадь помещения достаточна для того, чтобы дверь не мешала свободному перемещению и не ограничивала доступ к сантехнике. Минимальное свободное пространство перед дверью должно позволять полностью открыть дверь без препятствий. Если санузел очень тесный, предпочтительнее использовать двери с открыванием наружу или раздвижные конструкции.
