
Сборка шкафа своими руками – процесс, требующий определенных навыков и правильных инструментов. Подготовка играет ключевую роль: даже если у вас есть инструкция, без нужных материалов и оборудования работать будет сложно. Прежде чем начать, убедитесь, что у вас есть все необходимое для выполнения этой задачи.
Для начала, инструменты – это основа успешной сборки. Обязательно подготовьте отвертку (или шуруповерт), так как без нее не обойтись при скручивании деталей. Также потребуется молоток для забивания шкантов и плоскогубцы для работы с фурнитурой. Не забудьте уровень и измерительную ленту, чтобы собрать конструкцию ровно и точно. Для некоторых моделей шкафов может понадобиться дрель для предварительных отверстий.
При сборке важно учитывать не только инструменты, но и материалы. Основной элемент – это панели, которые могут быть выполнены из МДФ, ДСП или фанеры. Для разных материалов подбираются разные типы крепежей: если у вас ДСП, то лучше использовать шурупы с потайной головкой и запорные элементы. Важен правильный выбор фурнитуры – петли, ручки, направляющие для ящиков, которые должны соответствовать размерам и нагрузке на шкаф.
Не менее важна точность сборки. Для этого стоит использовать инструкцию по сборке, которая прилагается к комплекту. Прочитайте её внимательно, даже если вам кажется, что процесс прост. Пропустив хотя бы один шаг, вы можете столкнуться с проблемами в будущем, например, с невозможностью установки дверей или неустойчивостью конструкции.
Выбор материалов для сборки шкафа
ДСП (Деревянно-Стружечная Плита) – самый распространённый материал для сборки шкафов. Он обладает хорошими эксплуатационными характеристиками при относительно невысокой цене. ДСП легко обрабатывается, имеет разнообразие фактур и цветов, но чувствительно к влаге и может деформироваться при длительном воздействии воды. Для предотвращения этих проблем стоит выбирать плиты с ламинированным покрытием.
МДФ (Медиум Дензити Файберборд) – более дорогой и прочный материал, который отличается гладкой поверхностью и устойчивостью к повреждениям. МДФ не подвержен растрескиванию и короблению, как ДСП, но требует более тщательного ухода, особенно в условиях высокой влажности. МДФ лучше подходит для изготовления дверей шкафа и декоративных элементов, поскольку легко обрабатывается и не имеет характерной «шероховатости» поверхности.
Массив дерева – это наиболее премиальный материал, который используется для изготовления мебели. Дерево отличается прочностью, долговечностью и эстетическими качествами. Оно идеально подходит для тех, кто хочет получить уникальный и долговечный шкаф с природной текстурой. Однако массив дерева требует более сложной обработки и ухода, а также значительно дороже, чем другие материалы. Важно помнить, что дерево чувствительно к изменениям влажности и температуры, что может повлиять на его форму.
Шпонированные материалы – это плиты, покрытые слоем натурального дерева или декоративного шпона. Этот вариант комбинирует внешний вид натурального дерева с более доступной ценой. Шпон не так устойчив к механическим повреждениям, как массив, но выглядит более привлекательно, чем ламинированное ДСП.
Металлические элементы часто используются для каркаса, фурнитуры и других конструктивных частей шкафа. Металл повышает прочность конструкции, улучшает её устойчивость к нагрузкам и помогает обеспечить долгий срок службы мебели. Однако, важно правильно подобрать металл, чтобы он не подвергался коррозии, особенно в условиях повышенной влажности.
Выбирая материал, важно учитывать предполагаемую нагрузку на шкаф, его расположение в интерьере и ожидаемые условия эксплуатации. Например, для ванных комнат и кухонь лучше выбирать влагостойкие материалы, такие как ламинированное ДСП с влагозащитной пленкой или МДФ, покрытый специальными защитными средствами.
Необходимые инструменты для работы

Для самостоятельной сборки шкафа потребуется набор инструментов, который обеспечит точность и скорость работы. Вот список инструментов, которые помогут вам выполнить задачу без лишних сложностей.
- Отвертки – крестовая и плоская. Это базовый инструмент для скручивания винтов. Качество отвертки важно, чтобы избежать повреждения головок шурупов.
- Электрическая дрель – необходима для сверления отверстий и ускорения процесса. Важно выбрать модель с регулировкой скорости для работы с различными материалами.
- Набор сверл – для работы с различными материалами (дерево, металл, пластик) понадобятся сверла соответствующих диаметров. Удостоверьтесь, что они подходят для используемого вами материала.
- Молоток – потребуется для легких ударных операций, например, при вбивании гвоздей или регулировке деталей в процессе сборки.
- Рулетка – точность измерений крайне важна, поэтому рулетка должна быть не менее 5 метров в длину для удобства работы.
- Уровень – для контроля горизонтальности и вертикальности конструкций. Электронные уровни удобнее, но и обычный пузырьковый уровень будет работать вполне эффективно.
- Карандаш или маркер – для пометок на деталях. Лучше использовать маркер с водорастворимым чернилом, чтобы легко стирать следы.
- Шуруповерт – если предполагается использование большого числа винтов и саморезов, этот инструмент значительно ускорит процесс и снизит нагрузку на руки.
- Ключи – для затяжки гаек и болтов. Лучше иметь набор с несколькими размерами.
- Плоскогубцы – помогут зафиксировать элементы или аккуратно извлечь детали, например, при работе с небольшими крепежами.
Перед тем как приступить к сборке, убедитесь, что все инструменты находятся под рукой и в рабочем состоянии. Это ускорит процесс и минимизирует вероятность ошибок.
Как правильно подготовить пространство для сборки

Для успешной сборки шкафа важно создать оптимальные условия, чтобы процесс прошел без лишних трудностей. Начните с выбора подходящего места для работы. Площадь должна быть достаточно просторной, чтобы все детали были рядом, а инструменты и комплектующие легко доступны. Убедитесь, что поверхность, на которой будете собирать, ровная и чистая. Это предотвратит повреждения деталей и поможет избежать неудобств при монтаже.
Рекомендуется освободить пространство не менее 2-3 метров в длину и 1 метр в ширину, чтобы не ограничивать себя в движениях. Это особенно важно, если шкаф имеет крупные элементы, требующие маневрирования. Если у вас нет такого пространства, используйте защитные покрытия для пола, чтобы избежать царапин и повреждений.
Также важно обеспечить хорошее освещение. Местное освещение, например, настольные лампы, поможет точнее видеть мелкие детали и отверстия для крепежа. Если вы работаете в помещении с низким освещением, используйте дополнительные источники света, чтобы не нарушать точность сборки.
Подготовьте все необходимые инструменты и комплектующие заранее. Важно, чтобы в процессе сборки не пришлось искать детали, ведь это увеличивает время работы и может привести к повреждению элементов. Разложите винты, шурупы и другие мелкие детали по контейнерам или лоткам, чтобы они не потерялись и не перепутались.
Если в процессе сборки шкафа вам нужно будет использовать электрические инструменты, такие как дрель или шуруповерт, убедитесь в наличии свободных розеток поблизости. Также стоит позаботиться о безопасности: использованию инструментов должны предшествовать проверка их исправности и наличие необходимых средств защиты, таких как перчатки и защитные очки.
Перед началом сборки стоит тщательно ознакомиться с инструкцией. Это поможет вам заранее понять, какие этапы потребуют особого внимания, и подготовить все необходимые инструменты и аксессуары. Подготовьте место для временного хранения собранных частей, чтобы они не мешали остальной работе.
Помимо этого, убедитесь, что в помещении нет источников лишней влажности или перепадов температуры, так как это может повлиять на материалы, из которых изготовлен шкаф. И, наконец, в процессе работы избегайте суеты и спешки. Четкая подготовка и внимание к деталям позволят собрать шкаф качественно и с минимальными усилиями.
Составление пошаговой инструкции по сборке

Для успешной сборки шкафа важно подготовить четкую и детализированную инструкцию, которая обеспечит правильное выполнение всех этапов. Начните с разбивки всего процесса на логические шаги. Прежде чем приступить к сборке, убедитесь, что у вас есть все необходимые инструменты и комплектующие.
1. Подготовка деталей. Прежде чем начать, выложите все элементы шкафа на ровную поверхность. Проверьте наличие всех компонентов по списку. Это поможет избежать пропуска деталей в процессе работы.
2. Сборка основания. Начните с соединения боковых панелей с нижней и верхней частями. Используйте винты или эксцентрики для фиксации. Убедитесь, что все элементы выровнены по углам. Для этого используйте угольник или уровень.
3. Установка задней панели. Заднюю панель лучше прикреплять после того, как будет собрана основная конструкция. Это предотвратит ее повреждение в процессе работы. Используйте маленькие гвозди или саморезы, чтобы зафиксировать панель по периметру.
4. Установка полок. Полки должны фиксироваться в заранее подготовленные отверстия или направляющие. Прежде чем закрепить полку, убедитесь, что она находится в правильном положении относительно остальных частей шкафа.
5. Установка дверей. После сборки корпуса и установки полок переходите к креплению дверей. Закрепите петли, предварительно отметив места их установки на дверях и на корпусе. Важно проверить, чтобы двери открывались плавно и без перекосов.
6. Финальная проверка. После завершения сборки тщательно проверьте все соединения на прочность и стабильность. Убедитесь, что шкаф стоит ровно, а двери и полки не имеют люфта. При необходимости проведите дополнительные регулировки.
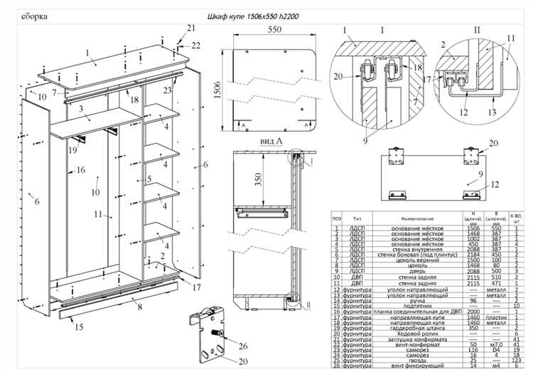
Как разобраться в деталях и комплектующих шкафа

Правильная сборка шкафа начинается с понимания каждого компонента. На первый взгляд комплектующие могут показаться простыми, но каждая деталь играет свою роль. Чтобы избежать ошибок, важно точно знать, как использовать все элементы.
Вот основные типы деталей, с которыми вы столкнетесь при сборке шкафа:
- Корпусные панели – основа шкафа, обычно из древесно-стружечных плит (ДСП) или МДФ. Они могут быть покрыты пленкой или ламинированными с разных сторон.
- Кронштейны и уголки – металлические или пластиковые элементы, которые фиксируют детали корпуса между собой. Они обеспечивают стабильность конструкции.
- Двери – могут быть распашными или раздвижными. Важно убедиться, что крепления дверей соответствуют типу каркаса.
- Фурнитура – включает в себя ручки, петли, направляющие для дверей, в том числе для раздвижных систем.
- Полки и перегородки – обычно регулируемые по высоте для удобства хранения. Они могут быть крепкими или съемными в зависимости от модели шкафа.
- Задняя стенка – тонкая панель, которая придает жесткость конструкции и служит для крепления других элементов.
- Ножки – устанавливаются для устойчивости и предотвращения повреждения пола. В некоторых моделях их можно регулировать по высоте.
- Шурупы, болты и гвозди – крепежные элементы, которые служат для соединения частей шкафа. Важно не перепутать типы, так как они могут различаться по длине и диаметру.
Перед началом сборки убедитесь, что у вас есть все элементы комплекта. Чаще всего комплектующие перечислены в инструкции. Обратите внимание на качество и количество крепежных элементов, так как использование неподходящих может привести к нестабильности конструкции.
Особое внимание стоит уделить петлям и направляющим, особенно если вы планируете устанавливать двери или выдвижные ящики. От их правильной установки зависит плавность работы механизма. Проверяйте, чтобы петли были одинаковыми по размеру и типу.
Для повышения надежности сборки рекомендуется использовать дополнительные усилители, такие как угловые и центральные соединительные элементы. Эти детали обеспечивают большую жесткость конструкции, особенно если шкаф будет подвергаться большой нагрузке.
Кроме того, важно следить за уровнем установки всех элементов. Даже небольшие отклонения могут привести к неравномерному распределению веса и поломке шкафа. Используйте уровень для контроля вертикальности и горизонтальности элементов.
Установка дверей и фурнитуры: советы по сборке
Для корректной установки дверей в шкафе необходимо заранее определиться с их типом и размерами. Наиболее распространены два типа дверей: распашные и раздвижные. В зависимости от выбора, крепеж и фурнитура будут различаться.
При установке распашных дверей важно точно вымерить расстояния между верхней и нижней петлями, чтобы дверь открывалась плавно. Для этого используйте уровень и рулетку. Не забудьте оставить зазор между дверью и корпусом шкафа для нормальной работы петель и предотвращения их заклинивания.
Для раздвижных дверей ключевым моментом является установка направляющих. Их нужно фиксировать с точностью, так как даже малейшие отклонения приведут к заеданию дверей. Направляющие устанавливаются на пол и потолок шкафа, причем верхняя должна быть на уровне, который обеспечит минимальное сопротивление при движении дверей.
Петли распашных дверей следует выбирать в зависимости от веса дверного полотна. Для легких дверей достаточно стандартных петель, но для массивных конструкций стоит использовать усиленные модели. Качество петель также влияет на срок эксплуатации дверей. Используйте петли с регулировкой, чтобы при необходимости подстроить дверь под нужный угол.
При установке фурнитуры, такой как ручки и замки, учтите, что их расположение должно быть удобным для ежедневного использования. Ручки лучше крепить на высоте 90-100 см от пола, а замки – не ниже 20 см от верхнего края двери для оптимального доступа. Если в комплект входит замок с ключом, убедитесь в точности его монтажа, чтобы механизм не заедал.
После установки дверей и фурнитуры обязательно проверяйте работу всех элементов. Двери должны открываться и закрываться без усилий, а петли и направляющие не должны издавать посторонних звуков. Если требуется, проведите дополнительные регулировки.
Ошибки при сборке и способы их избегания

1. Неверное использование инструмента
Одна из главных ошибок – использование неподходящего инструмента. Например, использование отвертки с неподходящими насадками или слабого шуруповерта может привести к повреждению деталей или разрушению крепежных элементов. Для сборки шкафа выбирайте качественные инструменты, соответствующие материалу и типу крепежа. Проверьте, что насадки на отвертке точно соответствуют шлицам шурупов.
2. Игнорирование инструкции
Многие начинают сборку без предварительного изучения инструкции. Это приводит к ошибкам на разных этапах, например, к неправильной сборке деталей или несоответствию отверстий для крепежа. Не торопитесь: каждый шаг имеет значение, и нарушение порядка может вызвать необходимость разбирать и собирать заново. Потратьте 5-10 минут на внимательное ознакомление с инструкцией.
3. Пропуск проверок деталей перед сборкой
Перед тем как начать сборку, обязательно проверьте все детали на наличие повреждений, дефектов или недостающих элементов. Пропуск этого этапа может привести к тому, что вам придется искать замену или сталкиваться с проблемами при сборке. Особое внимание стоит уделить правильности комплектации, особенно если комплект поставки большой.
4. Неправильная установка крепежных элементов
Ошибки при установке крепежных элементов, такие как недокручивание болтов или использование слишком длинных шурупов, могут привести к ослаблению конструкции. Все крепежи должны быть надежно зафиксированы, но при этом не следует их сильно затягивать, чтобы не повредить материал. Используйте подходящий инструмент и следите за моментом затяжки.
5. Неправильная ориентация деталей
Некоторые детали имеют четко выраженную сторону для установки, например, панели с декоративной отделкой или отверстия под крепеж. Если детали установлены неправильно, шкаф может выглядеть некрасиво или не собираться должным образом. Внимательно проверяйте, как каждая деталь должна быть расположена, особенно если это не очевидно.
6. Отсутствие горизонтальности при сборке
Если при сборке шкафа не обеспечена горизонтальность, особенно при установке полок и дверей, это приведет к перекосу и плохому закрытию дверей. Используйте уровень на всех этапах сборки, чтобы избежать таких ошибок. Также проверяйте, чтобы корпус был собран на ровной поверхности.
7. Пренебрежение технологическими отверстиями
Некоторые детали могут не иметь отверстий для крепежа, или они могут быть частично скрыты за декоративной отделкой. Это может стать проблемой, если вы решите установить дополнительные полки или крепления позже. Перед началом работы проверьте все отверстия, их расположение и доступность, чтобы избежать непредвиденных проблем в процессе сборки.
8. Неправильный выбор места для сборки
Выбор места для сборки влияет на конечный результат. Если это не достаточно просторное или ровное место, вам будет сложно работать. Убедитесь, что вокруг достаточно пространства для маневра и что поверхность, на которой вы будете собирать, ровная и не повредит материал.
9. Игнорирование уровня дверей
Ошибки при установке дверей – частая проблема. При установке дверей шкафа важно правильно регулировать петли, чтобы двери закрывались плавно и без заеданий. Используйте регулировочные винты и постоянно проверяйте, чтобы дверцы располагались на одном уровне, без перекосов и щелей.
10. Слишком быстрое завершение работы
Не спешите завершать сборку, даже если кажется, что все детали на месте. Пройдитесь по всему шкафу, убедитесь, что все крепежи правильно зафиксированы, а конструкция устойчиво стоит. Иногда малейшие недочеты, такие как плохо закрепленные элементы, могут повлиять на долговечность мебели.
Как правильно закрепить шкаф для безопасности
Первое, на что стоит обратить внимание, – это выбор крепежных деталей. Для бетонных и кирпичных стен лучше всего подойдут дюбеля и анкеры, которые обеспечат прочное сцепление. В деревянных стенах можно использовать шурупы по дереву, но важно заранее убедиться, что материал стены способен выдержать вес шкафа.
Закрепление шкафа начинается с размечивания мест под крепежные элементы. Используйте уровень, чтобы убедиться, что шкаф будет стоять ровно. Наклейте на стену шаблон, который поможет правильно расположить отверстия для сверления. Размеченные места должны быть точно по вертикали для предотвращения перекоса.
При сверлении убедитесь, что используете сверло, подходящее для типа стены. Для бетонных и кирпичных стен используйте ударное сверло с подходящим диаметром, для деревянных – обычное сверло по дереву. Важно не делать отверстия слишком большими, чтобы крепежные элементы плотно входили в стену.
После того как дюбели или анкеры вставлены в отверстия, можно прикрепить шкаф к стене с помощью саморезов. Прокачайте крепежные элементы до конца, но не переусердствуйте, чтобы не повредить материал. Закрепите шкаф так, чтобы он плотно прилегал к стене, но при этом не перекручивался или не наклонялся в сторону.
Если шкаф имеет верхние и боковые панели, необходимо закрепить не только нижнюю часть, но и боковые элементы. Это повысит стабильность конструкции и предотвратит случайные перекосы. В случае, если шкаф высокий или тяжелый, стоит использовать дополнительные крепежи, чтобы распределить нагрузку равномерно.
После установки шкафа проверьте его устойчивость. Если он колеблется или ощущается неустойчиво, следует снова проверить крепежные элементы и дополнительно укрепить соединения. Всегда проверяйте и фиксируйте мебель на стене, особенно если у вас есть маленькие дети или животные, чтобы избежать случайных травм или повреждений.
Вопрос-ответ:
Что нужно для сборки шкафа своими руками?
Для самостоятельной сборки шкафа вам понадобятся базовые инструменты, такие как отвертка, молоток, шурупы, мебельные крепления и, возможно, дрель. Важно заранее проверить, что все детали шкафа присутствуют и в хорошем состоянии. Лучше всего использовать инструкции от производителя, чтобы избежать ошибок в сборке.
Какие инструменты необходимы для сборки шкафа?
Для сборки шкафа обычно требуется отвертка, молоток, уровень, и, в некоторых случаях, дрель или шуруповерт. Также понадобятся мебельные шурупы и крепления, которые обычно идут в комплекте с мебелью. Некоторые модели шкафов требуют дополнительных инструментов для установки полок или дверей, таких как ключи для регулировки петель.
Как понять, все ли детали есть для сборки шкафа?
Для того чтобы убедиться, что все детали есть, внимательно ознакомьтесь с инструкцией по сборке, где указано количество и тип каждой детали. Обычно комплект включает элементы корпуса, полки, дверцы и различные крепежи. Если что-то отсутствует, лучше сразу связаться с продавцом или производителем для получения недостающих частей.
Как собрать шкаф без инструкций?
Если у вас нет инструкции, можно попробовать собрать шкаф, ориентируясь на фотографии или схемы на упаковке, если они есть. Главное — не спешить и собирать поэтапно, начиная с основания и постепенно добавляя остальные части. Также можно найти видеоуроки или пошаговые инструкции в интернете, которые помогут разобраться в процессе сборки.
Что делать, если сборка шкафа не получается?
Если сборка шкафа вызывает трудности, не стоит паниковать. Попробуйте пересмотреть шаги в инструкции, чтобы убедиться, что вы не пропустили важную деталь. Возможно, вам стоит сделать перерыв и вернуться к работе с свежими силами. Если проблема все-таки остается, можно обратиться за помощью к профессионалам или воспользоваться дополнительными видеоуроками для уточнения последовательности действий.
