
Автоматический выключатель дифференциального тока (АВДТ) совмещает в себе функции устройства защитного отключения (УЗО) и автоматического выключателя. Он не только отключает питание при утечке тока, но и защищает проводку от короткого замыкания и перегрузки. Это делает АВДТ универсальным решением для повышения безопасности электрических сетей в жилых и коммерческих зданиях.
Основной принцип работы АВДТ основан на сравнении токов, проходящих по фазному и нулевому проводникам. При возникновении утечки – например, через тело человека на землю – возникает разница, которую фиксирует дифференциальный трансформатор. Если превышен порог утечки (обычно 30 мА для бытовых сетей), срабатывает расцепляющий механизм. Одновременно с этим устройство отслеживает токовую нагрузку, и при превышении номинального значения или коротком замыкании также выполняет мгновенное отключение.
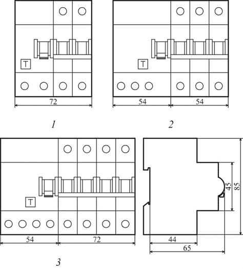
Конструктивно АВДТ включает в себя дифференциальный трансформатор, исполнительный механизм с электромагнитным и тепловым расцепителями, а также тестовую кнопку для проверки исправности. Корпус устройства выполнен из негорючих материалов с высокой стойкостью к термическим и механическим воздействиям. Установка выполняется на стандартную DIN-рейку, что упрощает монтаж и замену.
При выборе АВДТ необходимо учитывать параметры: номинальный ток (обычно от 6 до 63 А), ток срабатывания по утечке (10, 30 или 100 мА), тип дифференциальной защиты (AC, A, B), количество полюсов. Для бытового применения оптимальным является тип A, способный распознавать как переменные, так и пульсирующие постоянные токи утечки.
Для чего устанавливают АВДТ в квартире или доме
Автоматический выключатель дифференциального тока (АВДТ) обеспечивает комплексную защиту электропроводки от перегрузки, короткого замыкания и утечки тока. Его установка оправдана в жилых помещениях, где совмещаются требования к безопасности людей и сохранности имущества.
АВДТ реагирует на ток утечки от 10 до 30 мА – это позволяет выявить повреждение изоляции до возникновения пожара или поражения человека электрическим током. Например, при повреждении изоляции в стиральной машине устройство отключит питание до того, как ток утечки достигнет опасного уровня.
В отличие от связки УЗО и автомата, АВДТ занимает меньше места в щите и исключает ошибки в подборе совместимых устройств. Это критично при ограниченном пространстве распределительного шкафа, особенно в квартирах старого жилфонда.
Рекомендуется устанавливать АВДТ на отдельные группы потребителей с повышенным риском: розетки в санузлах, кухни, линии, подключающие бойлеры, посудомоечные и стиральные машины. Также устройство актуально в домах с электроплитами, где мощность потребителей достигает 5–7 кВт.
При выборе АВДТ необходимо учитывать номинальный ток и ток утечки, соответствующие защищаемой линии. Ошибка в подборе параметров может привести к ложным срабатываниям или, наоборот, отсутствию отключения при аварии.
| Сценарий установки | Рекомендованный ток утечки | Номинальный ток АВДТ |
|---|---|---|
| Розетки санузла | 10 мА | 16 А |
| Стиральная машина | 30 мА | 16–25 А |
| Электроплита | 30 мА | 32–40 А |
Установка АВДТ особенно важна в домах со скрытой проводкой: повреждения внутри стен остаются незаметными, и только контроль тока утечки позволяет выявить проблему до её развития.
Как работает АВДТ: взаимодействие УЗО и автомата
Автоматический выключатель дифференциального тока (АВДТ) сочетает в себе функции УЗО и автоматического выключателя, обеспечивая защиту как от утечек тока, так и от перегрузок и коротких замыканий.
- Механизм УЗО в составе АВДТ основан на измерении тока в фазном и нулевом проводниках. При симметричной нагрузке сумма токов равна нулю. Если появляется утечка (например, через повреждённую изоляцию), возникает дифференциальный ток, и срабатывает расцепитель.
- Чувствительность УЗО измеряется в миллиамперах. Для бытовых цепей характерны значения 10 мА и 30 мА. Уровень срабатывания подбирается в зависимости от назначения цепи и требований безопасности.
- Автоматический выключатель в АВДТ реагирует на перегрузку (тепловой расцепитель) и короткое замыкание (электромагнитный расцепитель). Эти элементы идентичны тем, что используются в стандартных автоматах.
Взаимодействие элементов осуществляется последовательно:
- Нагрузка подключается через встроенные в АВДТ токовые датчики.
- При перегрузке или КЗ срабатывает соответствующий расцепитель автомата, отключая питание мгновенно или с задержкой.
- Если возникает ток утечки, который превышает заданный порог, срабатывает УЗО-механизм, отключая цепь независимо от состояния автомата.
Важно учитывать:
- АВДТ не фиксирует направление тока утечки – защита сработает вне зависимости от того, куда уходит ток (на корпус, землю, другой проводник).
- При установке обязательно соблюдать фазировку и направление подключения, особенно в устройствах с маркировкой «Line/Load».
- Для корректной работы необходимо периодически проверять срабатывание с помощью встроенной кнопки «Тест».
Что отключает АВДТ при коротком замыкании и утечке тока

Автоматический выключатель дифференциального тока (АВДТ) отключает цепь двумя независимыми механизмами. При коротком замыкании срабатывает электромагнитный расцепитель. Он реагирует на резкий скачок тока, превышающий номинальное значение в 3–5 раз. В момент контакта фазного провода с нулевым или заземлённым проводником катушка расцепителя мгновенно размыкает силовые контакты, прекращая подачу напряжения.
При утечке тока активируется дифференциальный трансформатор внутри АВДТ. Он фиксирует разницу между токами в фазном и нулевом проводниках. Если разница превышает уставку (обычно 10, 30 или 100 мА), срабатывает исполнительный механизм. Катушка в блоке утечки подаёт импульс на отключающий элемент, независимо от силы тока в цепи.
Важно использовать АВДТ с параметрами, соответствующими нагрузке и характеристикам сети. Для жилых помещений рекомендуется ток утечки 30 мА, а ток отсечки по короткому замыканию – не менее 4500 А для однофазных сетей 220 В. Подключение нейтрали обязательно, иначе блок утечки не сможет корректно определить дисбаланс токов.
АВДТ необходимо устанавливать строго вертикально, исключая попадание влаги. Нарушение заземления или неправильное подключение нуля приводит к ложным срабатываниям или полной неработоспособности защиты.
Чем АВДТ отличается от связки УЗО и автомата

АВДТ (автоматический выключатель дифференциального тока) совмещает функции защиты от перегрузки, короткого замыкания и утечки тока в одном устройстве. В связке УЗО и автомата эти функции разделены: УЗО реагирует только на утечку, а автомат – на токи короткого замыкания и перегрузку.
Главное отличие – конструкционная интеграция. АВДТ экономит место в щите: занимает один модуль на полюс меньше по сравнению с отдельными устройствами. При стандартной двухполюсной установке АВДТ требует 2 модуля, а связка – 3 (1 модуль автомат + 2 модуля УЗО).
По надёжности и скорости срабатывания АВДТ не уступает связке, но требует точного подбора по характеристикам тока утечки и номиналу. В случае неисправности заменить АВДТ дороже, чем автомат или УЗО по отдельности, так как они не взаимозаменяемы.
Связка более гибка в конфигурации: позволяет легко менять номиналы автоматов и УЗО в зависимости от нагрузки. АВДТ – решение для типовых цепей без сложных условий подключения, где важна компактность.
В электропроводке с ограниченным пространством и фиксированной нагрузкой АВДТ предпочтительнее. Если необходимо разделение нагрузки или индивидуальная защита нескольких линий, практичнее использовать связку УЗО и автоматов.
Как выбрать номинал АВДТ под конкретную нагрузку
Номинал автоматического выключателя дифференциального тока (АВДТ) должен соответствовать максимальному току нагрузки с учетом кратковременных пусковых токов и типа подключённого оборудования. Превышение допустимого тока приведёт к ложным отключениям или перегреву проводки.
Шаг 1: Определите ток нагрузки. Сложите мощности всех электроприборов, подключаемых к защищаемой линии, и разделите полученное значение в ваттах на напряжение сети (обычно 220 В). Например, для суммарной мощности 4 400 Вт: 4400 ÷ 220 = 20 А.
Шаг 2: Выберите ближайшее стандартное значение номинала. В приведённом примере подойдет АВДТ на 25 А. Всегда выбирайте номинал с запасом, но не выше допустимого для сечения провода.
Шаг 3: Проверьте сечение кабеля. Для меди провод сечением 2,5 мм² допускает ток до 25 А, 4 мм² – до 32 А. Если номинал АВДТ превышает допустимый ток проводника, возможен перегрев и пожар.
Шаг 4: Учитывайте тип нагрузки. Для линий с мощными двигателями или насосами используйте АВДТ с характеристикой C или D, выдерживающей кратковременные пусковые токи. Для бытовых нагрузок достаточно характеристики B.
Шаг 5: Учитывайте количество фаз. Для однофазной сети используйте однополюсные или двухполюсные АВДТ. В трёхфазной – четырёхполюсные с номиналом, соответствующим нагрузке на каждую фазу.
Итог: номинал АВДТ выбирается по току нагрузки с учётом запаса, характеристик проводки и типа нагрузки. Превышение допустимых значений может привести к неработоспособности защиты или повреждению сети.
Куда правильно устанавливать АВДТ в щитке
АВДТ необходимо устанавливать сразу после главного вводного автомата, до распределительных групповых автоматов. Это позволяет обеспечить защиту не только всей линии, но и всех ответвлений, подключенных к данному щитку.
Расположение АВДТ должно обеспечивать удобный доступ для тестирования и отключения. Оптимально размещать устройство в верхней части щитка, чтобы избежать перегрева и обеспечить нормальную вентиляцию.
Если в щитке несколько линий, каждая из них должна иметь собственный АВДТ, установленный непосредственно перед соответствующим групповым автоматом. При отсутствии такой возможности допустимо ставить один общий АВДТ на ввод, но при этом увеличивается риск отключения всей системы при срабатывании на одной линии.
При монтаже АВДТ важно соблюдать ориентацию клемм – входные клеммы подключаются к питающей линии, выходные – к нагрузке. Нарушение полярности приведёт к некорректной работе устройства.
Установка АВДТ должна проводиться на DIN-рейку с использованием заводских креплений, без дополнительных монтажных адаптеров, чтобы исключить люфт и обеспечить надёжный контакт.
Какие ошибки делают при подключении АВДТ

Правильное подключение автоматического выключателя дифференциального тока (АВДТ) критично для безопасности и работоспособности системы. Основные ошибки при монтаже, которые снижают эффективность защиты и могут привести к авариям:
- Перепутывание фаз и нуля. Часто подключают нейтральный провод к клемме фазы и наоборот. Это приводит к некорректной работе АВДТ или его полной неработоспособности.
- Отсутствие отдельного нулевого проводника на входе. АВДТ требует подведения нуля и фазы с отдельными проводниками. Использование общего нуля для нескольких линий снижает чувствительность и может вызвать ложные срабатывания.
- Неправильное подключение проводов к клеммам нагрузки. Нагрузка должна быть подключена строго к выходным клеммам АВДТ. Подключение напрямую минует устройство защиты.
- Использование повреждённых или неподходящих по сечению проводов. Провода с недостаточным сечением вызывают нагрев и нарушение контакта, что приводит к нестабильной работе АВДТ.
- Отсутствие проверки исправности после монтажа. Не выполняют тестовые испытания кнопкой «Т» или мультиметром, что не позволяет выявить заводские или монтажные дефекты.
- Неправильный выбор номинала АВДТ. Использование слишком высокого номинального тока отключения снижает защитные функции, слишком низкого – приводит к частым ложным отключениям.
- Подключение нескольких АВДТ последовательно. Это приводит к конфликту работы и может вызвать неправильное срабатывание устройств.
- Игнорирование заземления. АВДТ не заменяет заземляющий контур. Отсутствие эффективного заземления снижает общую безопасность электросистемы.
Рекомендации:
- Проверяйте маркировку и расположение клемм, ориентируясь на паспорт и схему подключения.
- Используйте отдельные провода для фазы и нуля с соответствующим сечением, не менее рекомендованного производителем.
- Обязательно выполняйте тестовую проверку устройства сразу после установки и периодически в процессе эксплуатации.
- Подбирайте АВДТ с учетом реальной нагрузки и параметров электросети, избегая запасов свыше 25% по току отключения.
- Не допускайте совместного подключения нескольких линий на одном АВДТ без соответствующей схемы и расчетов.
Как проверить работоспособность АВДТ вручную

Для проверки АВДТ необходимо сначала отключить нагрузку, чтобы исключить ложные срабатывания. Затем нажмите кнопку тестирования «Тест» на корпусе устройства. Это имитирует утечку тока, вызывая срабатывание АВДТ.
Если устройство исправно, оно мгновенно отключит питание, разрывая цепь. Время срабатывания не должно превышать 0,3 секунды при номинальном токе утечки, обычно от 10 до 30 мА.
После срабатывания вручную выключатель необходимо вернуть во включённое положение. Если при нажатии кнопки теста устройство не отключается, АВДТ неисправен и требует замены.
Проверку следует выполнять регулярно – не реже одного раза в месяц – чтобы гарантировать защиту от токов утечки и избежать пожароопасных ситуаций.
Вопрос-ответ:
Для чего нужен АВДТ в электропроводке?
Автоматический выключатель дифференциального тока (АВДТ) предназначен для защиты людей и оборудования от поражения электрическим током и предотвращения пожаров, которые могут возникнуть из-за утечки тока. Он быстро отключает питание, если обнаруживает ток утечки на землю.
Как устроен АВДТ и какие основные компоненты входят в его состав?
АВДТ состоит из электромагнитного выключателя, дифференциального трансформатора тока и системы управления. Дифференциальный трансформатор следит за балансом токов в фазном и нулевом проводах. При появлении разницы, вызванной утечкой, срабатывает механизм отключения, который разрывает цепь питания.
Почему обычный автоматический выключатель не может заменить АВДТ?
Обычный автоматический выключатель защищает лишь от перегрузок и коротких замыканий, но не реагирует на утечку тока на корпус или землю. АВДТ, в отличие от него, фиксирует именно такие утечки, которые могут быть опасны для жизни человека и вызывать возгорания, и быстро отключает питание.
Какие параметры АВДТ следует учитывать при выборе для домашней электропроводки?
При подборе АВДТ важно обращать внимание на ток срабатывания по утечке, который обычно составляет 10, 30 или 100 мА, а также на номинальный ток, соответствующий нагрузке цепи. Неправильно выбранный прибор может либо не сработать вовремя, либо часто отключаться без необходимости.
Как проверить правильную работу АВДТ после установки?
Для проверки функционирования АВДТ следует нажать на кнопку теста, встроенную в корпус устройства. При нажатии искусственно создаётся ток утечки, и прибор должен отключить питание. Если этого не происходит, устройство нуждается в замене или ремонте.
