
Правильная укладка блоков на клей – это не только залог прочности и долговечности конструкции, но и экономия времени и средств. От соблюдения технологии зависит, насколько качественно будет выполнена работа и как долго она прослужит. Важно понимать, что клей для кладки блоков имеет свои особенности, которые нужно учитывать на каждом этапе работы.
Первое правило – выбор клея. Для кладки газобетонных или пенобетонных блоков предпочтительны клеевые смеси с высокой адгезией, специально предназначенные для этих материалов. Они обеспечивают крепление без использования раствора, что значительно снижает теплопотери и улучшает звукоизоляцию. Клей должен быть устойчив к воздействию влаги и перепадам температуры.
Второе – подготовка основания. Поверхность блока должна быть чистой и ровной. Если на блоках есть остатки пыли, грязи или старого клея, их нужно удалить, чтобы обеспечить максимальную сцепку. Перед нанесением клея блоки можно слегка смочить водой, чтобы предотвратить излишнюю влагопоглощаемость клеевой смесью.
Третье – правильная укладка. Наносить клей следует ровным слоем на одну из сторон блока, не допускайте образования воздушных пузырей. Толщина слоя не должна превышать 5 мм. После нанесения клея блок нужно быстро и аккуратно установить на место, поддавливая его для равномерного распределения клея.
Следуя этим рекомендациям, можно обеспечить не только прочность и надежность кладки, но и минимизировать расходы на материалы, улучшая характеристики тепло- и звукоизоляции.
Выбор клея для кладки блоков: какие характеристики важны

При выборе клея для кладки блоков важно учитывать несколько ключевых характеристик, которые напрямую влияют на прочность и долговечность конструкции.
Состав клеевого раствора. Основным компонентом клея является цемент, который обеспечивает сцепление блоков. Дополнительные компоненты, такие как песок, известь и добавки, влияют на прочность и устойчивость к внешним воздействиям. Важно выбирать клей с оптимальным составом для конкретных условий эксплуатации.
Адгезия. Способность клея эффективно сцепляться с различными поверхностями – одна из главных характеристик. Чем выше адгезия, тем прочнее будет соединение блоков, что предотвращает их смещение или разрушение. Клей для кладки блоков должен обладать хорошей адгезией как к пористым, так и к гладким поверхностям.
Время схватывания и работы. Важно учитывать, насколько быстро клей схватывается, и сколько времени у вас будет для корректировки положения блоков. Клей с длительным временем работы позволяет более точно выравнивать блоки, но может увеличить продолжительность кладки. Для быстросохнущих клеевых растворов необходимо учитывать их ограничение по времени работы.
Устойчивость к температурным колебаниям. Для использования в условиях низких или высоких температур требуется клей, который будет сохранять свои характеристики при значительных перепадах температуры. Это особенно важно при кладке наружных стен и фундаментов, где клей должен выдерживать воздействие холода и жары.
Морозостойкость. Клей для кладки блоков должен быть морозостойким, особенно при строительстве в холодных климатических зонах. Высокий уровень морозостойкости предотвращает разрушение клеевого слоя в условиях многократных циклов замерзания и оттаивания.
Экологичность и безопасность. Некоторые клеевые составы могут выделять вредные вещества, что важно учитывать при использовании в закрытых помещениях. Выбирайте экологически чистые и безопасные составы, если работы проводятся внутри зданий.
Стоимость и экономичность. Простой и дешевый клей может оказаться менее эффективным, что приведет к дополнительным расходам на исправление ошибок. Важно найти баланс между ценой и качеством, чтобы избежать переплат без потери надежности кладки.
Подготовка основания перед укладкой блоков на клей

Перед началом укладки блоков на клей необходимо тщательно подготовить основание. Некачественная подготовка может привести к снижению прочности соединения и увеличению риска трещин или деформаций в будущем.
1. Очистка поверхности – Основание должно быть очищено от пыли, грязи, масляных пятен и остатков старых материалов. Для этого используйте строительную щетку, пылесос или промышленный воздух. В случае сильных загрязнений применяйте моющие средства, не содержащие масел или жиров.
2. Выравнивание основания – Поверхность должна быть ровной, без резких перепадов высот. Для этого можно использовать строительный уровень. Если имеются значительные неровности, их необходимо устранить с помощью выравнивающей смеси или штукатурки. Для достижения оптимального результата толщину слоя выравнивающего материала не следует превышать 5 мм.
3. Увлажнение основания – Если поверхность слишком сухая, ее необходимо увлажнить. Влага помогает улучшить сцепление клея с основанием, но избегайте избыточной влаги, чтобы не вызвать замедление схватывания клеевого состава. Для увлажнения используйте распылитель воды.
4. Проверка прочности основания – Важно, чтобы основание было прочным и стабильным. Если оно подвержено разрушению (например, старый бетон или оштукатуренная поверхность), выполните дополнительное укрепление с помощью грунтовки или укрепляющих составов. Для этого подойдут специальные грунтовки для слабых и пористых поверхностей.
5. Грунтование – На подготовленное основание нужно нанести грунтовку. Она улучшает адгезию клея и повышает его прочность. Для разных типов оснований существуют различные грунтовки. Например, для бетонных или кирпичных поверхностей подойдет акриловая грунтовка, а для гипсокартонных – универсальная.
6. Ожидание высыхания – После нанесения грунтовки важно дать ей полностью высохнуть, что обычно занимает от 1 до 4 часов, в зависимости от условий. Укладка клея на мокрую грунтовку может нарушить сцепление.
Правильная подготовка основания – это залог долговечности и надежности конструкции. Следуя этим рекомендациям, можно добиться отличных результатов при укладке блоков на клей.
Как правильно наносить клей на блоки для прочной связи

При нанесении клея на строительные блоки важна не только равномерность распределения, но и соблюдение правильных техник, чтобы обеспечить прочную и долговечную связь. Неправильно нанесённый клей может привести к ослаблению сцепления и трещинам в стенах.
Прежде всего, убедитесь, что блоки чистые и сухие. На поверхности не должно быть пыли, грязи или влаги, так как это ухудшает сцепление клея с материалом. Перед нанесением клея рекомендуется пройтись по поверхности блоков щеткой или влажной тряпкой, чтобы удалить загрязнения.
Клей наносится с использованием зубчатого шпателя. Оптимальный размер зубьев зависит от типа клея и величины блоков. Для стандартных блоков рекомендуется использовать шпатель с зубьями высотой 8-10 мм. Наносите клей на одну из поверхностей блока равномерным слоем, начиная с центра и двигаясь к краям. Это обеспечит хороший захват клея по всей площади.
Обратите внимание на «гладкость» клея. Он не должен быть слишком жидким, чтобы не растекаться, но и не слишком густым, чтобы не образовывались пустоты. Правильная консистенция клея обеспечит его прочное сцепление с блоком.
Клей следует наносить не только на блоки, но и на швы между ними. Для этого можно использовать дополнительный слой клея, который обеспечит прочную связь между соседними блоками. Важно помнить, что клей не должен выступать за пределы швов, так как это может привести к его вытеканию на внешние поверхности.
После нанесения клея блок необходимо установить на место в течение 10-15 минут, чтобы избежать его высыхания до начала укладки. Для улучшения сцепления, рекомендуется слегка прижать блок к поверхности, совершив легкие движения из стороны в сторону.
Особое внимание стоит уделить точности укладки. При установке блока важно не только тщательно выровнять его, но и контролировать толщину клеевого шва. Неровные швы могут ослабить конструкцию, увеличив вероятность образования трещин и деформаций.
Ошибки при укладке блоков на клей и как их избежать

Одна из частых ошибок при укладке блоков на клей – недостаточная подготовка основания. Поверхность должна быть ровной, чистой и сухой. Наличие пыли, грязи или остатков старой отделки приведет к плохому сцеплению с клеем. Для этого следует предварительно очистить поверхность и, при необходимости, выровнять её с помощью штукатурки или выравнивающей смеси.
Второй распространенной ошибкой является неправильное нанесение клея. Клей должен быть равномерно распределен по всей поверхности блока, но не чрезмерно. Слишком толстый слой клея может привести к его выдавливанию, а это нарушает прочность сцепления. Используйте зубчатый шпатель с подходящим размером зубцов, чтобы обеспечить нужную толщину слоя клея.
Не стоит забывать о времени работы с клеем. Клей теряет свои свойства через 10–15 минут после нанесения. При этом нельзя откладывать укладку блоков, иначе клей начнёт схватываться и не обеспечит нужной адгезии. Поэтому следует готовить клеевой раствор небольшими порциями, чтобы успеть использовать его до истечения времени работы.
Одна из самых критичных ошибок – укладка блоков с сильным перекосом. Это приводит к неравномерному распределению нагрузки и снижению прочности всей конструкции. Каждую партию блоков необходимо тщательно проверять на вертикальность и горизонтальность, используя уровень. Для точности можно использовать натянутую шнурку или лазерный уровень.
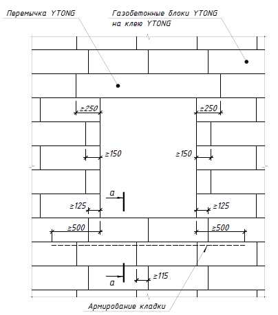
Также важно соблюдать правильное расстояние между блоками. Оставление слишком большого зазора между ними ухудшает тепло- и звукоизоляционные характеристики. Однако слишком маленькие зазоры могут привести к деформациям, если блоки «выталкивают» друг друга. Оптимальный зазор обычно составляет от 3 до 5 мм, в зависимости от характеристик используемого клея и типа блоков.
Некоторые мастера забывают о регулярной проверке вертикальности и горизонтальности стен в процессе работы. Особенно это касается больших площадей. Во время укладки следует постоянно контролировать, чтобы блоки не смещались. Ошибки на первых этапах часто приводят к перекосу всей стены, который будет трудно исправить на финальном этапе.
Наконец, при укладке блоков на клей важно учитывать температуру окружающей среды. На слишком холодной или слишком горячей поверхности клей может схватываться быстрее или наоборот – недостаточно прочно удерживать блоки. Температурный режим работы должен быть в пределах 5–25°C для оптимальных результатов.
Как контролировать толщину клеевого слоя при кладке

Толщина клеевого слоя играет ключевую роль в качестве кладки, обеспечивая необходимую прочность и долговечность конструкции. Чтобы правильно контролировать эту толщину, необходимо соблюдать несколько важных правил.
Первым шагом является правильный выбор шпателя. Для каждого типа блока существуют свои рекомендации по размеру зубьев шпателя. Например, для кладки крупноформатных блоков рекомендуется использовать шпатель с зубьями высотой 10-12 мм, а для мелких блоков достаточно шпателя с зубьями 6-8 мм. Это позволяет равномерно распределять клей по поверхности и контролировать его толщину.
Важно, чтобы поверхность блоков была чистой и сухой перед нанесением клея. Наличие грязи или влаги может нарушить адгезию и изменить толщину слоя. Клей нужно наносить быстро и равномерно, избегая толстых слоев, которые могут привести к неравномерному схватыванию.
Для точного контроля толщины слоя можно использовать специальные регулировочные приспособления – контроллеры толщины клея. Эти устройства позволяют точно измерять зазор между блоком и основанием, обеспечивая равномерность укладки.
Кроме того, стоит проверять клеевой слой после укладки нескольких рядов. Для этого используют правило или длинный уровень, чтобы убедиться, что поверхность блоков ровная, без излишков клея в отдельных местах. Если слой слишком толстый, лишний клей следует удалить до схватывания, чтобы избежать перекоса и неправильной осадки блоков.
Не стоит забывать и о температурных условиях. При слишком низкой температуре клей может затвердевать быстрее, а при высокой – не успеет схватиться должным образом, что также влияет на толщину слоя и качество соединений. Идеальная температура для работы с клеем – от +5°C до +25°C.
Советы по укладке блоков в условиях низких температур
При укладке блоков в условиях низких температур важно учитывать несколько факторов, чтобы избежать проблем с адгезией клея и обеспечить долговечность конструкции.
- Температура клея и блоков: Для нормального отверждения клеевого состава температура его не должна опускаться ниже +5°C. Используйте клей, предназначенный для холодных условий, или обогревайте смесь с помощью специальных устройств.
- Предварительный прогрев материалов: Прогрейте блоки перед укладкой. Температура их должна быть не ниже +5°C. Это можно сделать с помощью тепловых пушек или на солнечном свете.
- Использование термоковриков: При сильном морозе можно использовать термоковрики для поддержания необходимой температуры на блоках и клее в процессе работы.
- Выбор клея: Используйте клей, который подходит для работы при низких температурах. Такие составы имеют специальные добавки, которые позволяют клею не терять своих свойств при замораживании.
- Защита от замерзания: После укладки блоков следует защитить конструкцию от мороза. Для этого можно использовать укрывочные материалы, такие как термопленка, или организовать временное утепление.
- Температурный режим в процессе работы: При низких температурах работы стоит проводить в светлое время суток, чтобы максимально использовать естественное тепло.
Обеспечив соблюдение этих условий, можно значительно повысить прочность соединений и избежать трещин и дефектов в результате неправильной укладки.
Как ускорить процесс укладки блоков на клей без потери качества
Использование профессионального строительного клея, рекомендованного производителем для конкретного типа блоков, ускоряет работу. Он обладает хорошей адгезией и позволяет работать быстрее без риска ухудшения сцепления. Работу с клеем следует начинать сразу после его приготовления, поскольку со временем его свойства могут измениться.
Для экономии времени при укладке блоков рекомендуется использовать длинные уровни и рейки, которые позволят быстро контролировать горизонтальность и вертикальность кладки. К тому же, если укладывать блоки по несколько штук за раз, можно сократить время на выравнивание и корректировку каждого элемента.
Важно учитывать темп высыхания клеевого состава. Чтобы ускорить работу, можно использовать клей с увеличенной скоростью схватывания, но при этом необходимо следить, чтобы состав не начал схватываться раньше времени. Для этого потребуется точно соблюдать дозировку воды и клея при его приготовлении.
Использование специализированных инструментов, таких как автоматические клеевые аппликаторы, также поможет ускорить процесс. Они равномерно распределяют клей по поверхности блоков, что снижает время на нанесение и улучшает качество соединений. Для ускорения процесса также стоит отказаться от излишнего нанесения клея – оптимальный слой обеспечит надежное соединение без дополнительной трудоемкости.
Следующий шаг – эффективное распределение блоков по рабочей площади. Размещение материалов в непосредственной близости от рабочей зоны снижает время на их подачу и перемещение. Это важно при больших объемах работы, когда экономия времени на каждом блоке может существенно повлиять на общий результат.
Также стоит помнить, что плотность работы и отдых должны быть сбалансированы. Устранение усталости и регулярные перерывы повышают скорость и точность укладки, что в долгосрочной перспективе сэкономит время на исправление ошибок.
Вопрос-ответ:
Какой клей лучше использовать для укладки блоков?
Для укладки блоков на клей лучше всего выбирать специальный клеевой состав для кладки, который подходит для вашего типа блока (газобетон, кирпич, пеноблок и т. д.). Такой клей обладает высокой прочностью сцепления и хорошими адгезионными свойствами, что важно для долговечности конструкции. Важно учитывать климатические условия и влажность, так как от этого зависит выбор типа клея — для наружных работ обычно выбирают морозостойкий состав.
Как правильно подготовить поверхность перед укладкой блоков на клей?
Перед укладкой блоков на клей важно тщательно подготовить поверхность. Она должна быть очищена от грязи, пыли и старых строительных остатков. Поверхность должна быть ровной, без трещин и дефектов. Если это необходимо, можно использовать штукатурку для выравнивания. Важно, чтобы поверхность была достаточно влажной, но не мокрой, чтобы клей не высыхал слишком быстро и не терял свои адгезивные качества.
Как правильно наносить клей на блоки?
Клей на блоки обычно наносят зубчатым шпателем, равномерно распределяя его по всей поверхности. При этом важно соблюдать рекомендации производителя клея относительно толщины слоя. В большинстве случаев рекомендуется наносить слой клея толщиной 8–10 мм. Клей должен покрывать всю поверхность блока, за исключением его торцевых частей. Для этого шпатель нужно держать под углом, чтобы создать равномерную структуру клея.
Как избежать ошибок при укладке блоков на клей?
Чтобы избежать ошибок при укладке блоков, важно соблюдать несколько ключевых моментов. Во-первых, следите за тем, чтобы клей был правильно приготовлен и использован в пределах его срока годности. Во-вторых, не забывайте проверять уровень и ровность укладки блоков, используя строительный уровень и натянутую нить. Также не рекомендуется укладывать блоки слишком быстро: дайте клею время для схватывания, иначе блоки могут смещаться.
Можно ли использовать клей для укладки блоков в холодную погоду?
В холодную погоду укладку блоков на клей проводить можно, но с определёнными оговорками. Важно использовать клей, который предназначен для низких температур, так как стандартные клеевые составы могут не схватываться должным образом при минусовых температурах. Также необходимо утеплить рабочее место и защитить от мороза уже уложенные блоки, чтобы избежать повреждения материала. В таких условиях процесс укладки должен быть более осторожным и медленным.
Как правильно класть блоки на клей?
Для правильной укладки блоков на клей необходимо соблюдать несколько важных шагов. Во-первых, подготовьте поверхность: она должна быть ровной, чистой и сухой. Для этого можно использовать растворитель или щетку для удаления пыли и грязи. Далее, выберите качественный клей, подходящий для материала блоков (например, клей для пеноблоков или керамических блоков). Наносите клей на блок с помощью зубчатого шпателя, равномерно распределяя его по поверхности. Каждый блок укладывайте аккуратно, слегка поджимая его к предыдущему, чтобы избежать образования пустот. Следите за горизонтальностью и вертикальностью рядов с помощью уровня. После укладки не забывайте очистить излишки клея с поверхности блоков, чтобы избежать затруднений при дальнейшем строительстве.
