
Проектирование кухни требует точного расчёта рабочих зон и грамотного распределения техники. Для начала измерьте площадь и определите форму помещения – это поможет выбрать оптимальный тип планировки: линейную, угловую, островную или П-образную.
Уделите внимание эргономике: расстояние между мойкой, плитой и холодильником должно составлять от 1,2 до 2 метров, формируя удобный «рабочий треугольник». Высота рабочей поверхности стандартно варьируется от 85 до 95 см, учитывайте рост всех пользователей.
Выбирая материалы, ориентируйтесь на влагостойкость и прочность. Столешницы из искусственного камня или ламинированного ДСП выдерживают интенсивную эксплуатацию и легко очищаются. Встроенная техника должна быть подобрана по мощности и размерам, чтобы не нарушать баланс и не загромождать пространство.
Как правильно снять размеры кухни и учесть все особенности помещения

Для правильного проектирования кухни важно точно снять все размеры помещения. Ошибки на этом этапе могут привести к проблемам в процессе установки мебели и техники. Чтобы избежать этого, следуйте пошаговым рекомендациям.
1. Снимите общие размеры помещения. Начните с измерения длины и ширины кухни. Используйте рулетку или лазерный дальномер для точности. Измеряйте в нескольких точках, чтобы учесть возможные отклонения стен от прямых углов. Запишите эти данные для последующей работы с планом.
2. Учтите высоту стен и потолка. Измерьте высоту от пола до потолка в нескольких точках. Это важно для точного расчета размещения шкафов и верхних полок.
Как определить оптимальное расположение зон приготовления, хранения и мойки

Правильное расположение ключевых зон кухни влияет на удобство работы и экономит время. Важно учесть рабочие треугольники, комфортную зону движения и удобный доступ ко всем элементам. Рассмотрим, как грамотно организовать пространство для зон приготовления, хранения и мойки.
Главная цель – минимизировать расстояния между основными зонами: рабочей поверхностью, мойкой и плитой. Это сократит время на приготовление пищи и повысит эффективность работы.
- Зона приготовления (плита и рабочая поверхность): должна располагаться между мойкой и холодильником, с учётом того, что приготовление пищи начинается с
Как выбрать и рассчитать размеры кухонного гарнитура под конкретное пространство
Для того чтобы кухонный гарнитур гармонично вписался в пространство и был максимально удобным, необходимо учитывать несколько ключевых факторов: размер и форма помещения, функциональные зоны и эргономика. Вот шаги, которые помогут вам рассчитать размеры и выбрать подходящий гарнитур.
- Определите размеры помещения: начните с точных замеров кухни. Измерьте длину, ширину и высоту стен, а также расстояния между окнами, дверями и другими архитектурными элементами. Это поможет вам понять, сколько свободного пространства доступно для установки мебели.
- Выберите тип планировки:
- Прямая планировка – подходит для узких и небольших кухонь. В этом случае гарнитур размещается вдоль одной стены.
- Угловая планировка – идеальна для квадратных и прямоугольных помещений, где гарнитур размещается по двум с
Как учесть размещение бытовой техники при проектировании кухни
Правильное размещение бытовой техники – ключ к удобству и функциональности кухни. Для этого важно учитывать не только размеры техники, но и ее взаимодействие с другими элементами, такими как рабочие зоны и шкафы. Следует обратить внимание на три главные группы приборов: крупную технику (холодильник, плита, посудомойка), малую технику (микроволновка, кофеварка, блендер) и специализированные устройства (вытяжка, духовой шкаф). Каждый прибор должен быть размещен с учетом удобства в процессе использования и простоты доступа к нему.
При проектировании кухни следует соблюдать рабочие треугольники: холодильник, плита и мойка должны находиться на расстоянии, которое обеспечит удобство в процессе готовки. Например, холодильник желательно располагать рядом с рабочей зоной для быстрого доступа к продуктам, а мойку и плиту – на расстоянии около 1,5-2 м друг от друга.
Для размещения техники учитывайте следующие рекомендации:
- Холодильник должен быть установлен в таком месте, чтобы дверцы открывались в сторону, не перекрывая другие рабочие зоны.
Как спланировать систему освещения для разных участков кухни

Освещение в кухне должно учитывать функциональные зоны: рабочую поверхность, обеденную зону и зоны хранения. Для рабочей поверхности рекомендуются направленные светильники с яркостью 500–700 люкс, устанавливаемые под навесными шкафами или на потолке с углом освещения не более 60°. Используйте LED-светильники с нейтральным белым светом (4000–4500 К) для точной цветопередачи продуктов.
В обеденной зоне комфортнее мягкое, рассеянное освещение с цветовой температурой 2700–3000 К и уровнем яркости около 150–300 люкс. Подвесные светильники или встроенные светильники с диммерами позволят регулировать интенсивность света в зависимости от времени суток и настроения.
Для зоны хранения шкафов и холодильника применяйте локальное подсвечивание с датчиками движения или кнопочным включением. Это снижает энергопотребление и обеспечивает удобство при поиске продуктов. Внутри шкафов оптимальны узкие LED-полосы с теплым светом 3000 К.
Общее потолочное освещение должно равномерно покрывать кухню, не создавая теней. Рекомендуется использовать несколько точечных светильников с общим уровнем освещенности около 300–400 люкс. Располагайте их с шагом 1,2–1,5 метра для равномерного распределения света.
Для управления системой используйте отдельные выключатели или умные системы с возможностью поэтапного включения зон. Это повысит комфорт и позволит экономить электроэнергию.
Как выбрать материалы для фасадов, столешниц и фартука с учетом условий эксплуатации

Для фасадов кухни важно учитывать влажность и частоту контакта с механическими нагрузками. Оптимальный выбор – МДФ с покрытием из ПВХ-пленки или эмали, устойчивой к царапинам и воздействию влаги. Натуральное дерево требует регулярного ухода и подходит для сухих помещений.
Столешница должна выдерживать термические и механические воздействия. Ламинированный ДСП подходит для бюджетного варианта, но чувствителен к влаге и царапинам. Искусственный камень – прочный и влагостойкий материал, устойчив к химии и температуре до 180°C. Натуральный гранит долговечен, но требует периодической обработки маслами и герметиками для сохранения внешнего вида.
Фартук подвергается прямому воздействию воды, жира и высоких температур. Керамическая плитка – классический вариант с высокой стойкостью, но требует регулярной очистки швов. Закалённое стекло устойчиво к пятнам и легко моется, при этом отражает свет, визуально расширяя пространство. Вариант из пластика или ПВХ лучше выбирать с толщиной не менее 6 мм, чтобы избежать деформации при нагреве.
Выбирая материалы, учитывайте специфику использования: для кухни с интенсивным приготовлением выбирайте более прочные и влагостойкие покрытия, а в помещениях с умеренной влажностью и аккуратным использованием можно использовать более декоративные, но менее стойкие варианты.
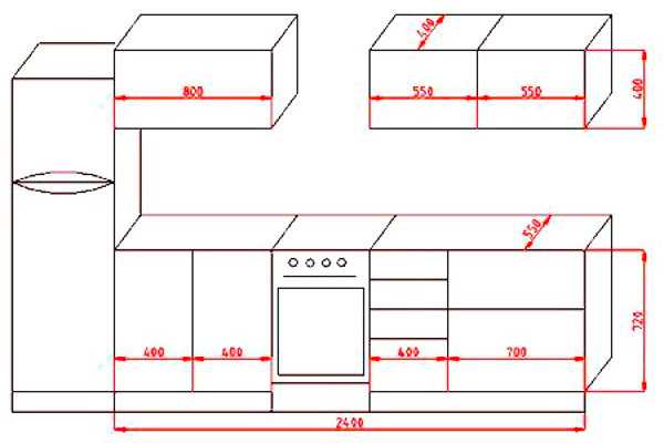
Как подготовить чертеж или схему будущей кухни для самостоятельной сборки или заказа

Начинайте с точного измерения помещения: зафиксируйте длину и ширину стен, высоту потолков, размеры дверных и оконных проёмов, а также расположение коммуникаций – водопровода, электрики и вентиляции. Запишите все данные с точностью до миллиметра, чтобы избежать ошибок при сборке или изготовлении мебели.
Создайте масштабный план кухни на миллиметровой бумаге или в специализированных программах (например, SketchUp, IKEA Home Planner или PRO100). Масштаб 1:20 оптимален для удобства работы и точности. На плане отметьте расположение сантехники, розеток, выключателей и вентиляционных каналов.
Продумайте эргономику: учтите правило рабочего треугольника между мойкой, плитой и холодильником. Оптимальное расстояние между этими точками – 1,2–2,7 метра. На схеме обозначьте шкафы, столешницы и бытовую технику, обеспечивая минимум 90 см свободного пространства для прохода.
Для каждого модуля укажите точные габариты: высоту, ширину и глубину. Особое внимание уделите верхним шкафам – их размещение должно быть удобным для доступа, обычно на высоте 50–60 см от столешницы. Внесите данные о толщине фасадов, материалов столешниц и задних стенок, чтобы учитывать реальный размер при сборке.
Вопрос-ответ:
С чего начать проектирование кухни самостоятельно?
Начинать следует с оценки помещения: его размеров, расположения окон, дверей и коммуникаций. Далее стоит определиться с основными зонами — рабочей, обеденной и зоной хранения. Нарисуйте план помещения и наметьте, где будет находиться плита, мойка и холодильник. Эти три элемента образуют так называемый рабочий треугольник. Расстояния между ними должны быть удобными для перемещения и не создавать лишней нагрузки. Также имеет смысл заранее продумать освещение и возможные варианты электропроводки.
С чего лучше начать планирование кухни своими руками, если нет опыта?
Для начала важно оценить доступное пространство и определить основные зоны: рабочую, для хранения и для приёма пищи. Затем стоит нарисовать схему, учитывая расположение окон, дверей и коммуникаций. Рекомендуется продумать удобное размещение основных элементов — плиты, мойки и холодильника — чтобы минимизировать перемещения между ними. Такой подход поможет избежать ошибок на следующем этапе.
Какие материалы лучше выбрать для кухонных шкафов, если хочется сделать всё самостоятельно?
Часто используют древесно-стружечные плиты с ламинированным покрытием, так как они доступны и легко обрабатываются. Можно также рассмотреть фанеру или МДФ, которые подходят для самостоятельной сборки и отделки. Важно учитывать влажность и нагрузку: лучше выбирать материалы с влагостойкими свойствами для зон около мойки и плиты. Фурнитура должна быть качественной, чтобы фасады открывались плавно и надёжно.
Как правильно спланировать освещение на кухне, чтобы было комфортно готовить и удобно использовать рабочие поверхности?
Освещение следует разделить на несколько уровней. Основной свет должен равномерно освещать всю комнату, лучше всего подойдут потолочные светильники с рассеянным светом. Для рабочих зон, таких как столешница и плита, стоит установить дополнительные источники — точечные или светодиодные полосы под навесными шкафами. Такой подход помогает избежать теней и создает комфортные условия при приготовлении пищи. Также важно продумать выключатели в удобных местах.
