
Точная разметка направляющих – ключевой этап при установке выдвижных ящиков. Ошибка в 1–2 миллиметра может привести к перекосу, заеданию или самопроизвольному выезжанию ящика. Для начала определяют тип направляющих: шариковые телескопические, роликовые или скрытые. От этого зависит метод крепления и допустимые зазоры.
При разметке шариковых направляющих критично учитывать толщину корпуса и фасада. Стандартная установка предполагает зазор в 12,7 мм от боковой стенки ящика до внутренней поверхности корпуса. На боковой панели корпуса размечают нижнюю линию установки направляющей строго горизонтально, ориентируясь на уровень. Высота установки определяется в зависимости от количества ящиков и их назначений, но минимальное расстояние между соседними направляющими – не менее 30 мм.
Чтобы обеспечить синхронность движения ящиков, разметку проводят зеркально на обеих боковых стенках. Используют штангенциркуль или рейсмус для переноса точек, особенно при серийной установке. Перед сверлением обязательно проверяют соответствие отверстий монтажным проушинам направляющей – даже у одного производителя возможны отличия между сериями. Рекомендуется предварительная фиксация направляющих саморезами без полного затяжения, чтобы скорректировать положение после пробной установки ящика.
Как определить высоту установки направляющих на боковинах корпуса

Высота установки направляющих напрямую зависит от высоты фасада, внутреннего полезного пространства и типа используемых направляющих. Начинать следует с измерения высоты выдвижного ящика, включая фасад, и определения его положения относительно других элементов мебели.
Для стандартных шариковых направляющих рекомендуемый отступ от нижнего края боковины корпуса до центра крепёжного отверстия направляющей – примерно 40–60 мм. Это позволяет обеспечить стабильность ящика при нагрузке и сохранить запас под дно.
Если используются скрытые направляющие с доводчиком, точка крепления обычно находится на 1/3 высоты ящика снизу. Например, для ящика высотой 180 мм оптимально разместить направляющую на высоте 60 мм от дна боковины корпуса.
При установке нескольких ящиков важно учитывать зазоры между фасадами: обычно закладывается по 2 мм сверху и снизу каждого фасада. Вычислите общую высоту корпуса, вычтите сумму зазоров, разделите оставшееся пространство между ящиками – это позволит точно определить вертикальные точки крепления направляющих.
При отсутствии шаблона используйте штангенциркуль или рулетку для переноса размеров с точностью до миллиметра. Отметки делайте строго горизонтально при помощи уровня, чтобы исключить перекосы при установке.
Не ориентируйтесь на края корпуса – всегда отмеряйте от низа внутренней боковины. Это исключит ошибки при асимметричной конструкции или при наличии декоративных элементов снизу.
Расчет отступов от передней и задней стенки ящика

Для корректной установки направляющих необходимо точно определить отступы от передней и задней стенки ящика, чтобы обеспечить полный ход и исключить заедания при открывании и закрывании.
- Передняя стенка ящика не должна мешать работе направляющей. Минимальный отступ от лицевой панели до начала направляющей – 2 мм. Это позволяет фасаду не упираться в корпус при полном закрытии.
- При использовании направляющих полного выдвижения длиной 450 мм, длина самого ящика должна быть на 3–5 мм меньше, то есть около 445–447 мм. Этот зазор необходим для свободного хода механизма.
- Задняя стенка ящика должна располагаться не вплотную к концу направляющей. Рекомендуемый отступ – 2–3 мм, чтобы обеспечить свободное движение и учесть незначительные погрешности в сборке.
- Если используются скрытые направляющие с доводчиком, необходимо предусмотреть дополнительное пространство под механизм, чаще всего около 10 мм от задней стенки корпуса до конца направляющей.
Все замеры следует выполнять с точностью до миллиметра, используя металлическую рулетку или штангенциркуль. Небрежность при расчёте отступов приводит к перекосу направляющих и быстрой поломке фурнитуры.
Определение позиции направляющих по глубине корпуса

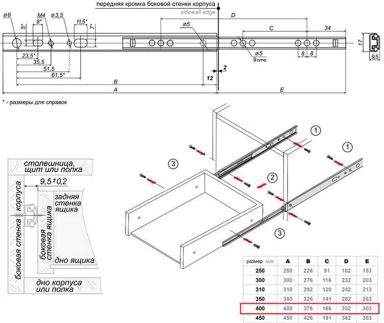
Точная установка направляющих по глубине корпуса критична для корректной работы выдвижного механизма. Перед началом разметки необходимо знать глубину корпуса и длину выбранных направляющих. Стандартные значения длины направляющих – 300, 350, 400, 450, 500 мм. Глубина корпуса должна превышать длину направляющих минимум на 10–15 мм для компенсации зазоров и задней стенки.
Исходная точка отсчёта – внутренняя плоскость лицевой части корпуса. От неё отмеряется расстояние, равное длине направляющей. Направляющие не должны упираться в заднюю стенку: оставляется зазор 2–5 мм, чтобы исключить перекосы при полном выдвижении.
Если используются скрытые направляющие, они крепятся к дну ящика, и глубина их посадки зависит от конструкции фурнитуры. В этом случае необходимо предварительно проверить длину ящика и допустимое положение крепёжных пазов относительно дна и задней стенки корпуса.
При установке шариковых направляющих задний крепёж должен располагаться строго на вертикальной стойке. Если её нет, требуется установка дополнительной опоры внутри корпуса. Крепление «в воздухе» недопустимо – это приведёт к деформации направляющей под нагрузкой.
Рекомендуется закрепить одну направляющую и протестировать ход ящика до окончательной установки второй. Это позволит оперативно скорректировать положение по глубине без демонтажа.
Особенности разметки для шариковых телескопических направляющих
При разметке под шариковые телескопические направляющие критично учитывать их длину, тип выдвижения и положение относительно корпуса и фасада. Ошибка в 1–2 мм может привести к перекосу или заеданию при работе.
- Перед началом измерений убедитесь, что корпус строго прямоугольный, а боковины – параллельны. Диагонали должны совпадать с точностью до 1 мм.
- Измерьте внутреннюю глубину корпуса и выберите направляющие, длина которых составляет 80–90% от этой величины. Например, при глубине 500 мм оптимально использовать направляющие 400–450 мм.
- Установите направляющие строго горизонтально, отступив от нижнего края боковины 30–50 мм, чтобы обеспечить зазор для цоколя и нормальное открывание.
- Разметку второй направляющей делайте с помощью уровня или шаблона – малейшее отклонение вызовет перекос ящика при движении.
- Если направляющие с полным выдвижением, учитывайте вылет фасада: он не должен мешать соседним модулям или дверцам.
- Для тяжёлых ящиков (более 20 кг) рекомендуется размещать направляющие не по центру высоты ящика, а ближе к его нижней части – на расстоянии 1/3 от дна. Это уменьшит нагрузку на крепёж и исключит провисание.
- При креплении убедитесь, что саморезы не выступают за плоскость направляющей. Даже незначительный выступ приведёт к заеданию подвижного механизма.
Для точности разметки используйте металлическую линейку и штангенциркуль. Отверстия размечайте через направляющую, приложив её в нужное положение. После крепления проверьте параллельность обеих сторон, выдвигая и задвигая механизм без установленного ящика.
Разметка направляющих для скрытого монтажа
Для скрытого монтажа направляющих важна точная разметка, так как направляющие устанавливаются под днищем ящика и не видны снаружи. Ошибка в 1–2 мм может привести к перекосу или заеданию.
Начинают с определения центра направляющей на боковой стенке корпуса. Измеряется расстояние от нижнего края до оси направляющей. Для стандартных систем (например, Blum Tandem или Hettich Quadro) это расстояние составляет 37 мм. При других моделях ориентируются на техническую документацию производителя.
На внутренней стороне боковины корпуса проводится горизонтальная линия – ось крепления направляющей. От задней стенки отмеряют длину направляющей и ставят ограничительную метку. Она обозначает задний край направляющей.
На ящике направляющая фиксируется к боковинам или к дну, в зависимости от конструкции. Для стандартного монтажа на дно ось крепления находится на 15 мм выше нижнего края боковины. Глубина посадки заднего крепежа – не менее 12 мм. Все отверстия сверлят строго перпендикулярно, диаметр – 2,5–3 мм.
Важно выдерживать параллельность направляющих. После разметки рекомендуется проверить диагонали мест установки с точностью до 0,5 мм. Используется штангенциркуль или шаблон с проставками. Несоблюдение геометрии приведёт к перекосу при установке.
При использовании систем с доводчиком нужно учесть рабочий ход механизма. У большинства моделей он составляет 2–3 мм, это влияет на конечную глубину посадки ящика.
В завершение разметку проверяют с помощью направляющей и самого ящика без крепежа. Он должен входить в проём свободно, без люфта и усилий. Только после этого выполняется окончательная фиксация.
Как учитывать толщину дна и стенок ящика при разметке
При разметке направляющих для выдвижных ящиков необходимо точно учитывать толщину дна и стенок, так как ошибка даже в 1 мм может привести к неправильной посадке и затрудненному движению. Толщина стенок обычно варьируется от 12 до 18 мм, а дна – от 6 до 10 мм. Эти параметры напрямую влияют на внутренние размеры ящика и расположение креплений направляющих.
Для боковых направляющих отметьте внутреннюю сторону боковины с учетом толщины дна. Если дно вставляется в пазы, его толщина уменьшает полезную высоту ящика, что требует смещения точек крепления направляющих вверх или вниз соответственно. При толщине дна 8 мм и стенок 16 мм внутренняя ширина ящика уменьшается на 32 мм (2 × 16 мм), а высота – на 8 мм.
Для нижних направляющих учитывайте толщину дна при разметке крепежных отверстий. Крепление должно происходить ниже уровня верхней кромки дна на величину, обеспечивающую свободное движение ящика без заеданий. Рекомендуется отступать от внутреннего края боковины на толщину дна плюс 1–2 мм зазора.
Пример: если толщина дна 8 мм, а стенок 16 мм, то горизонтальная точка крепления направляющих должна находиться на 9–10 мм от внутреннего края боковины.
Перед сверлением необходимо проверить выбранные размеры на реальном образце или деталях, чтобы избежать накопления погрешностей. В проектах с нестандартной толщиной материала все расчеты нужно производить индивидуально, не полагаясь на стандартные шаблоны.
Инструменты и приспособления для точной разметки отверстий
Для разметки отверстий под направляющие выдвижных ящиков необходимы инструменты с высокой точностью позиционирования. Основной инструмент – рейсмус с регулируемой глубиной реза, позволяющий наносить ровные линии с точностью до 0,1 мм. Его используют для нанесения базовых линий разметки по кромке детали.
Шаблоны для сверления – специализированные металлические пластины с заранее выполненными отверстиями, соответствующими стандартным размерам направляющих. Использование шаблона исключает смещение сверла и гарантирует правильное расположение крепежных отверстий.
Центровочные сверла с ограничителем глубины обеспечивают точное начало отверстия и предотвращают его углубление сверх необходимого. Это важно для сохранения геометрии крепежных элементов и исключения повреждения корпуса ящика.
Угломеры с магнитным основанием применяют для контроля перпендикулярности разметки относительно плоскости детали, что особенно критично при установке направляющих на вертикальные стенки.
Маркер с тонким наконечником или гравер позволяют наносить разметку на темные или ламинированные поверхности без риска растекания линии, обеспечивая четкий контур для сверления.
Для повышения точности и повторяемости при массовом изготовлении полезно использовать струбцины с направляющими упорами, фиксирующими шаблон относительно детали без смещений.
Проверка параллельности и симметрии разметки с обеих сторон

Для точной установки направляющих важно убедиться, что разметка на левой и правой стороне корпуса выдвижного ящика строго параллельна и симметрична. Начните с измерения расстояния от передней кромки корпуса до линии разметки на каждой стороне. Это расстояние должно совпадать с точностью не более ±0,5 мм.
Далее проверьте высоту линий разметки относительно основания корпуса. Используйте надежный угольник или уровень, чтобы линии были горизонтальны и на одинаковом уровне с обеих сторон. Несовпадение более 1 мм уже приведет к перекосу ящика при движении.
Рекомендуется применять штангенциркуль для измерения толщины и точности линий. После разметки проведите визуальный контроль с помощью длинной линейки или рейсмуса, приложив их к нанесённым меткам с обеих сторон. Линейка должна касаться обеих линий одновременно без зазоров.
Для подтверждения симметрии используйте метод зеркального сравнения: измерьте от задней стенки корпуса до каждой линии и сравните полученные значения. Разница свыше 0,7 мм потребует коррекции разметки. При обнаружении несоответствий исправьте отметки до достижения точности в пределах указанных допусков.
Точный контроль параллельности и симметрии снижает риск деформаций при установке направляющих и обеспечивает плавное движение выдвижных ящиков.
Вопрос-ответ:
Как правильно разметить направляющие для выдвижных ящиков, чтобы они работали без заеданий?
Для точной разметки направляющих сначала определите высоту установки на боковой стенке шкафа и на ящике. Важно измерять от одной базовой точки — например, от нижней кромки шкафа или дна ящика. Отметьте линии мелом или карандашом, соблюдая одинаковый уровень с обеих сторон. Проверьте параллельность линий и используйте уровень, чтобы избежать перекоса. Если направляющие смещены, ящик будет двигаться с затруднением или клинить.
Какие инструменты понадобятся для разметки и установки направляющих на выдвижных ящиках?
Для разметки потребуются линейка или рулетка, строительный уровень, карандаш или мел для маркировки, а также угольник для проверки прямых углов. При монтаже пригодится дрель с соответствующими сверлами, шуруповерт для вкручивания крепежа, а также отвертка. Использование этих инструментов поможет добиться точности и упростит процесс установки направляющих.
Как избежать ошибок при установке направляющих, которые могут привести к перекосу ящика?
Чаще всего ошибки связаны с неправильной разметкой и неравномерным креплением направляющих. Чтобы избежать перекоса, измеряйте расстояния с обеих сторон несколько раз, ориентируясь на фиксированные точки. При закреплении направляющих не затягивайте винты слишком сильно сразу, лучше сначала закрепить их чуть свободнее, выровнять детали, и только потом окончательно затянуть. После установки проверьте ход ящика, чтобы убедиться в отсутствии заеданий.
Как влияет выбор типа направляющих на процесс разметки и монтажа?
Разные виды направляющих требуют различных подходов к разметке. Например, шариковые телескопические направляющие часто монтируются внутри боковых стенок, и для них важна точность по высоте и глубине. Роликовые направляющие могут иметь другие места крепления и размеры. Перед началом работы нужно изучить рекомендации производителя конкретного типа направляющих, чтобы корректно выполнить разметку и обеспечить плавное движение ящика.
Можно ли самостоятельно разметить направляющие для ящиков нестандартных размеров, и что учесть в таком случае?
Да, самостоятельная разметка возможна, однако требует аккуратности и внимания к деталям. Важно точно измерить внутренние размеры шкафа и высоту ящика, учесть толщину стенок и зазоры для свободного движения. При нестандартных размерах рекомендуется делать разметку по шаблонам или использовать универсальные инструкции с поправками на размеры. Также стоит проверить совпадение всех точек крепления и возможность монтажа без деформаций.
Как правильно разметить направляющие для выдвижных ящиков, чтобы избежать перекоса и обеспечить плавное движение?
Для точной разметки направляющих важно сначала определить уровень установки на боковых стенках корпуса шкафа. Обычно направляющие крепят на одинаковой высоте с обеих сторон, соблюдая рекомендуемые производителем расстояния. Лучше всего использовать строительный уровень и линейку для нанесения меток, чтобы избежать перекоса. Перед сверлением отверстий проверьте параллельность линий и убедитесь, что разметка одинаковая по всей длине. Это позволит ящику двигаться плавно и без заеданий.
