
Окна Veka и Rehau занимают лидирующие позиции на рынке пластиковых окон благодаря надежности и инновационным технологиям производства. Профили Veka имеют многокамерную структуру с количеством камер от 5 до 7, что обеспечивает повышенную теплоизоляцию и звукоизоляцию. Толщина наружной стенки профиля Veka соответствует классу А по европейским стандартам, что гарантирует долговечность и устойчивость к деформации.
Rehau предлагает профили с оптимальным сочетанием прочности и энергоэффективности. В их линейке часто встречаются трех- и пятикамерные системы с толщиной профиля от 70 до 80 мм, обеспечивающие коэффициент сопротивления теплопередаче до 0,85 м²·°C/Вт. Кроме того, Rehau активно внедряет технологии, направленные на экологичность материалов и безопасность для здоровья.
Выбор между Veka и Rehau зависит от конкретных задач: для объектов с повышенными требованиями к утеплению лучше подойдут окна Veka с максимальным количеством камер и усиленными стенками. Rehau предлагает широкий модельный ряд с привлекательным дизайном и гибкими решениями для городской и загородной застройки. Оба производителя сертифицированы по международным стандартам качества, что гарантирует соответствие заявленных характеристик фактическим.
Сравнение окон Veka и Rehau: их характеристики и преимущества

Профили Veka изготавливаются из высококачественного немецкого ПВХ с толщиной стенки до 3 мм, что обеспечивает надежную теплоизоляцию и долговечность. Их системы имеют до 7 камер, что позволяет добиться коэффициента сопротивления теплопередаче до 1,1 м²·°C/Вт. Veka предлагает усиленные армирующие элементы из оцинкованной стали, которые повышают устойчивость конструкции к деформациям.
Окна Rehau
Преимущество Veka
Преимущества Rehau
Рекомендация: Для объектов с высокими требованиями к теплоизоляции и устойчивости к деформациям лучше подходит Veka, особенно в суровом климате. Если важен современный дизайн и долговечность покрытия при высокой устойчивости к внешним воздействиям, стоит рассмотреть Rehau.
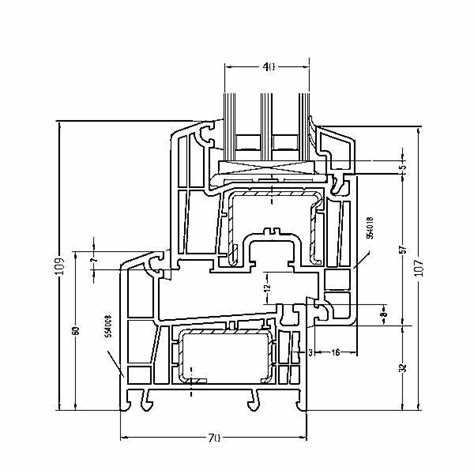
Особенности профиля и конструкции окон Veka и Rehau

Профили Veka изготавливаются из ПВХ высокого качества с повышенной толщиной стенок – минимум 3 мм по европейским стандартам. Конструкция профиля включает 5-7 камер в зависимости от серии, что обеспечивает высокие показатели тепло- и звукоизоляции. Усиление металлом обязательно для сохранения жесткости конструкции, а специальные уплотнители из эластомера гарантируют надежную герметичность.
Rehau применяет собственную технологию производства профилей с толщиной стенок также не менее 3 мм, но в некоторых моделях встречается до 6 камер. Особенность – интегрированная армирующая система с усовершенствованной формой металлопрофиля для равномерного распределения нагрузки и предотвращения деформаций. Уплотнители Rehau выполнены из синтетических каучуков с высокой стойкостью к ультрафиолету и температурным колебаниям.
В конструкции Veka профили обладают глубиной установки от 70 до 82 мм, что позволяет подобрать оптимальный вариант для энергоэффективных зданий. Rehau предлагает профили с глубиной до 86 мм, что увеличивает теплоизоляционные характеристики, особенно в моделях серии Geneo с усиленными камерами.
Окна Veka оснащены усиленными стеклопакетами с толщиной от 24 до 48 мм, что совместимо с широким спектром фурнитуры и дополнительных опций (москитные сетки, противовзломные элементы). Rehau также поддерживает стеклопакеты толщиной до 52 мм и ориентируется на инновационные решения с низкоэмиссионным и мультифункциональным стеклом, улучшая энергосбережение и шумоизоляцию.
Рекомендации при выборе: для регионов с суровыми зимами предпочтительнее профили с большей камерностью и глубиной установки (Rehau Geneo или Veka Softline 82). Для стандартных условий оба производителя обеспечивают высокую надежность, но конструктивные особенности Rehau обеспечивают дополнительную устойчивость к механическим нагрузкам и перепадам температуры.
Теплоизоляционные свойства окон Veka и Rehau
Окна Veka и Rehau разработаны с учетом современных требований к теплоизоляции, но имеют различия в конструктивных решениях и показателях эффективности.
Профили Veka характеризуются использованием пяти- и шестикамерных систем с толщиной стенок от 2,8 до 3 мм, что обеспечивает коэффициент сопротивления теплопередаче (R) на уровне 0,8–1,0 м²·°C/Вт. Многокамерная структура снижает теплопотери за счет создания нескольких воздушных барьеров внутри профиля.
Rehau использует шестикамерные профили с улучшенной геометрией камер и увеличенной толщиной наружных стенок до 3,5 мм, что повышает теплоизоляционные свойства до показателя R около 1,1 м²·°C/Вт. Важным элементом является интеграция инновационных уплотнительных контуров, которые минимизируют проникновение холодного воздуха.
- Обе марки предлагают стеклопакеты с энергосберегающим покрытием Low-E, которое отражает тепловое излучение обратно в помещение.
- Veka применяет двух- и трехкамерные стеклопакеты с шириной до 48 мм, что увеличивает сопротивление теплопередаче и снижает конвекционные потери.
- Rehau также предлагает варианты с трехкамерным стеклопакетом до 44 мм и специальным газом аргон или криптон между стеклами для улучшения теплоизоляции.
Для повышения энергоэффективности рекомендуется выбирать окна с профилем не менее шестикамерного класса и стеклопакетом с шириной от 40 мм, заполненным аргоном, а также с многоконтурными уплотнителями.
В климатических условиях с сильными морозами Rehau демонстрирует преимущество за счет большей толщины и оптимизированной конструкции уплотнений. Veka подойдет для регионов с умеренным климатом, обеспечивая надежную теплоизоляцию при меньшей стоимости.
Уровень шумоизоляции в моделях Veka и Rehau
Окна Veka обеспечивают шумоизоляцию до 44 дБ благодаря многокамерным профилям с толщиной до 70 мм и стеклопакетам с повышенной звукоизоляцией. Применение специальных уплотнителей и возможность установки триплекса значительно снижают проникновение уличного шума.
Rehau использует профили с глубиной до 80 мм и конструкцию из пяти камер, что повышает звукоизоляцию до 46 дБ. В моделях Rehau часто применяется стеклопакет с комбинированными функциями – шумоизоляция и защита от ультрафиолета. Уплотнители выполнены из износостойкого материала, обеспечивающего длительную сохранность звукоизоляционных свойств.
Для городской среды с высоким уровнем шума оба производителя рекомендуют использовать многокамерные профили с минимальной толщиной 70 мм и стеклопакеты не менее двух камер с разной толщиной стекол. Rehau предлагает решения с улучшенной шумоизоляцией за счет увеличенного количества камер и опционального триплекса. Veka выделяется технологией усиленного уплотнения и применением материалов, снижающих резонанс.
Долговечность и устойчивость к внешним факторам
Профили Veka изготавливаются из высококачественного ПВХ с повышенной степенью стабилизации, что обеспечивает устойчивость к ультрафиолетовому излучению и предотвращает пожелтение поверхности более 50 лет. Толщина наружной стенки профиля Veka соответствует классу А (минимум 2,8 мм), что повышает механическую прочность и сопротивляемость деформациям при перепадах температуры.
Rehau применяет уникальную технологию RAU-PVC с добавлением специальных стабилизаторов, обеспечивающих стойкость к агрессивным погодным условиям и коррозии. Толщина наружной стенки профилей Rehau также соответствует классу А, что гарантирует сохранение геометрии и прочности на протяжении минимум 40 лет эксплуатации.
Устойчивость к влаге у обеих систем обеспечивается многокамерной конструкцией, которая снижает риск проникновения конденсата внутрь конструкции. Дополнительно Veka использует инновационные уплотнители с повышенной эластичностью, что уменьшает износ при многократных циклах открывания и закрывания.
Коррозионная стойкость металлических армирующих вставок в обеих марках обеспечивается антикоррозионной обработкой, что предотвращает образование ржавчины и сохраняет жесткость конструкции в условиях повышенной влажности и агрессивной городской среды.
Для эксплуатации в регионах с резкими климатическими изменениями предпочтительнее выбирать профиль Veka благодаря повышенной толщине стенок и устойчивости к ультрафиолету, тогда как Rehau демонстрирует высокие показатели в условиях повышенной влажности и химической нагрузки.
Варианты фурнитуры и безопасность окон Veka и Rehau

Обе марки применяют качественные системы фурнитуры с акцентом на долговечность и защиту. Veka использует преимущественно фурнитуру Maco и Roto, тогда как Rehau сотрудничает с Gretsch-Unitas (GU) и Roto. Все они обеспечивают высокий уровень функциональности и безопасности.
Основные варианты фурнитуры включают:
- Многоступенчатые запорные механизмы, усиливающие сопротивление взлому;
- Тросовые и цапфовые элементы для равномерного прижима створки;
- Блокираторы открывания от детей с возможностью отключения;
- Фурнитура с защитой от провисания створок и защелок;
- Петли с усиленной несущей способностью и антикоррозийным покрытием.
Безопасность окон повышается за счёт следующих технических решений:
- Установка противовзломных цапф класса RC1 и RC2 в базовой комплектации;
- Опция интеграции противовзломных запоров и доп. блокираторов на заказ;
- Использование скрытой фурнитуры в моделях Rehau для снижения риска взлома;
- Петли с микролифтом, предотвращающие самопроизвольное закрытие и повреждения;
- Надежные уплотнители и усиленные профили, создающие дополнительный барьер для проникновения.
Для повышения безопасности рекомендуется выбирать комплектации с противовзломными элементами и дополнительными ограничителями открывания. Veka предлагает модификации с усиленной фурнитурой для объектов с повышенными требованиями к безопасности, Rehau – с системами скрытого монтажа и легким обслуживанием.
Вариативность дизайна и цветовых решений у Veka и Rehau

Профили Veka предлагают более 30 вариантов ламинации, включая матовые и глянцевые текстуры, с эффектом под дерево и металлик. Цветовая палитра включает классические белые оттенки, а также насыщенные тона RAL, позволяющие адаптировать окна под фасад любого стиля.
Rehau выделяется расширенными возможностями индивидуализации: система предлагает более 50 оттенков с двухсторонней ламинацией, что дает свободу комбинировать цвета внутренней и наружной стороны окна. Кроме стандартных вариантов доступны эксклюзивные структуры поверхности, имитирующие натуральные материалы.
Veka применяет технологию «Softline», обеспечивающую плавные линии профиля и минималистичный внешний вид, подходящий для современных интерьеров. Rehau ориентируется на более угловатые формы, которые выгодно смотрятся в классическом и хай-тек дизайне.
Варианты остекления у обеих марок допускают использование витражей, матового стекла и декоративных элементов, но у Rehau выбор текстур шире благодаря сотрудничеству с европейскими производителями стекла.
Рекомендуется учитывать архитектурный стиль и интерьер при выборе системы: Veka лучше подходит для проектов с акцентом на строгую эстетику и долговечность покрытия, Rehau – для уникальных дизайнерских решений с акцентом на цветовые контрасты и отделку.
Сравнение цен и гарантийных условий на окна Veka и Rehau

Средняя стоимость стандартного окна Veka начинается от 9 000 рублей за м², в то время как окна Rehau – от 10 500 рублей за м². Разница обусловлена применением более дорогих материалов и технологий в профилях Rehau, что влияет на итоговую цену.
Для нестандартных размеров и дополнительных опций, таких как ламинация или усиленная фурнитура, цена у обоих брендов увеличивается примерно на 15–25%. Veka предлагает более широкий выбор бюджетных решений без значительной потери качества.
Гарантийный срок на окна Veka составляет от 5 до 7 лет, включая профиль, фурнитуру и стеклопакеты. Rehau предоставляет гарантию до 10 лет, что отражает уверенность производителя в долговечности своей продукции и дополнительных технологиях защиты от деформаций и выцветания.
При покупке через официальных дилеров оба бренда обеспечивают сервисное обслуживание и техническую поддержку в течение гарантийного срока. Важно учитывать, что длительная гарантия Rehau часто требует соблюдения строгих условий эксплуатации и регулярного обслуживания, что стоит уточнять заранее.
Рекомендовано сравнивать не только базовую цену, но и включённые условия гарантии, а также перечень сервисных услуг, чтобы выбрать оптимальное соотношение стоимости и надежности.
Вопрос-ответ:
Какие основные отличия профилей окон Veka и Rehau по конструкции и материалам?
Профили Veka обычно изготавливаются из высококачественного ПВХ с толщиной стенок, соответствующей европейским стандартам, что обеспечивает долговечность и устойчивость к деформации. Rehau выделяется использованием инновационных технологий в производстве, что повышает тепло- и звукоизоляцию. Конструктивно обе системы имеют многокамерную структуру, но количество камер и их геометрия могут различаться, влияя на теплоэффективность и жесткость окон.
Как окна Veka и Rehau показывают себя в плане теплоизоляции и энергосбережения?
Обе марки предлагают окна с хорошими показателями теплоизоляции, что позволяет значительно снизить теплопотери в помещении. Veka применяет многокамерные профили с шириной от 70 до 90 мм, которые эффективно удерживают тепло. Rehau также использует многокамерные конструкции, иногда с улучшенными уплотнителями и стеклопакетами с повышенными энергосберегающими характеристиками. При правильном монтаже оба варианта позволяют повысить комфорт и снизить затраты на отопление.
Какие варианты фурнитуры доступны для окон Veka и Rehau, и как это влияет на безопасность?
Фурнитура у Veka и Rehau поставляется от проверенных производителей, что гарантирует надежность и долговечность. Оба бренда поддерживают установку противовзломных механизмов, таких как запорные цапфы, дополнительные блокираторы и усиленные ручки. Rehau часто предлагает расширенный ассортимент элементов безопасности, включая специальные конструкции для защиты от взлома, что повышает уровень защиты жилья. Важно учитывать, что качество установки напрямую влияет на безопасность конструкции.
Как выбрать между окнами Veka и Rehau с точки зрения дизайна и цветовых решений?
Обе компании предоставляют широкий выбор цветов и текстур, включая имитацию дерева, металлик и стандартные белые профили. Veka выделяется разнообразием ламинаций и возможностью комбинировать цвета с двух сторон окна. Rehau предлагает также современные матовые и глянцевые покрытия, а некоторые серии имеют более тонкий и изящный дизайн створок. Выбор зависит от стилистики интерьера и экстерьера, а также предпочтений по уходу и долговечности покрытия.
В чем заключаются особенности гарантийных условий на окна Veka и Rehau?
Гарантийные сроки на продукцию обоих производителей обычно составляют от 5 до 10 лет, но условия могут различаться в зависимости от региона и дилера. Veka часто предоставляет расширенную гарантию на профиль и уплотнители, при условии правильного монтажа и эксплуатации. Rehau также предлагает гарантию на профиль и комплектующие, иногда с возможностью продления при участии официальных сервисных центров. Важно внимательно изучать договор, чтобы понимать, какие случаи и дефекты покрываются гарантией.
