
Правильная высота монтажа смесителя в ванной напрямую влияет на удобство эксплуатации и эффективность использования воды. В среднем, оптимальная высота от пола до центра смесителя составляет 80–100 сантиметров, при этом учитываются особенности конструкции умывальника и рост пользователей.
Если смеситель устанавливается над раковиной, высота должна обеспечивать достаточный запас пространства для комфортного мытья рук и предотвращать разбрызгивание воды. Для стандартных умывальников рекомендуемая высота – примерно 15–20 сантиметров от борта раковины до выходного отверстия излива смесителя.
При монтаже смесителей на стену важно выдерживать уровень установки, соответствующий форме и глубине чаши, чтобы поток воды направлялся в центр раковины. При несоблюдении высоты возрастает риск попадания воды на края и пол, что ухудшает эксплуатационные характеристики ванной комнаты.
Для ванных с особенностями дизайна или нестандартной сантехникой рекомендуется индивидуальный расчет высоты установки с учетом параметров мебели и роста домочадцев, что повышает комфорт и снижает износ оборудования.
Рекомендованные нормативы высоты установки смесителей

Согласно строительным нормам и техническим регламентам, оптимальная высота установки смесителя в ванной комнате варьируется в зависимости от типа монтажа и функционального назначения. Для настенных смесителей высота от уровня пола должна составлять от 100 до 110 см при установке над раковиной.
Если смеситель монтируется над ванной, рекомендуемая высота – 80–90 см от пола, что обеспечивает удобство набора воды и предотвращает разбрызгивание.
При установке смесителя для душа его монтажная точка должна находиться на высоте от 110 до 120 см, учитывая средний рост взрослого человека и обеспечивая комфортное использование.
Для смесителей, встроенных в столешницу или тумбу, высота рассчитывается от уровня поверхности и обычно составляет 15–20 см над бортиком раковины, чтобы обеспечить достаточный зазор для размещения рук и посуды.
Все указанные нормативы согласованы с ГОСТами и СНиПами, которые учитывают эргономику, безопасность и технологические особенности монтажа. Отклонение от данных норм может привести к неудобствам эксплуатации и усложнению ремонта.
Влияние высоты смесителя на удобство использования

Оптимальная высота установки смесителя напрямую влияет на эргономику ванной комнаты. Для раковины стандартной высоты 80–85 см от пола рекомендуют размещать смеситель на уровне 10–15 см выше борта. Это обеспечивает удобный доступ к рычагу управления и достаточное пространство для мытья рук и предметов без касания смесителя.
Высота ниже 10 см ограничивает свободу движений и усложняет наполнение высоких емкостей, а превышение 20 см часто приводит к разбрызгиванию воды за пределы раковины. Для встраиваемых моделей с изливом до 20 см от поверхности борта смеситель размещают на высоте 15–20 см, что обеспечивает оптимальный баланс между комфортом и функциональностью.
При монтаже у ванны высота смесителя обычно составляет 50–60 см от пола, что облегчает регулировку воды, не наклоняясь. При слишком низком расположении управление становится неудобным, особенно при сидячем положении в ванне.
Для смесителей с длинным изливом важно учитывать расстояние до центра раковины – не менее 15 см, чтобы струя воды попадала в середину чаши, минимизируя брызги. Рекомендуется проверять высоту с учетом роста пользователей, особенно если ванная используется детьми или пожилыми людьми.
Высота смесителя для ванной с учетом размера самой ванны

Оптимальная высота установки смесителя напрямую зависит от габаритов ванны. Для стандартных ванн длиной 150–170 см рекомендуемая высота расположения излива составляет 70–80 см от пола. Это обеспечивает удобный доступ к воде и минимизирует разбрызгивание.
Для ванн большей длины (180–200 см и более) высоту смесителя можно увеличить до 85–90 см, чтобы обеспечить комфортное наполнение ванны и удобство управления. При этом необходимо учитывать высоту бортика ванны – обычно она варьируется от 50 до 60 см. Расстояние от верхнего края бортика до излива должно быть не менее 15–20 см для удобного наливания воды.
Если ванна глубже стандартной (более 45 см), рекомендуется устанавливать смеситель на высоте 80–90 см, чтобы вода свободно стекала, не создавая брызг на бортик и пол. Для мелких ванн с низкими бортиками оптимальная высота излива снижается до 65–70 см.
При выборе высоты учитывайте тип монтажа: настенный смеситель требует точного расчета с учетом толщины стен и выступающих элементов. Смесители с длинным изливом устанавливают немного выше – на 80–85 см, чтобы обеспечить достаточный запас пространства для наполнения.
Итоговый параметр высоты зависит от сочетания размеров ванны, высоты бортика и предпочтений по удобству, но ключевой ориентир – расстояние 15–20 см от бортика до излива, а также минимальная высота от пола 65 см для комфортного использования.
Особенности монтажа смесителей для душевой зоны
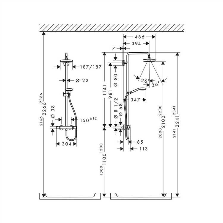
Высота установки смесителя для душа обычно составляет 100–120 см от пола, что обеспечивает удобный доступ к регуляторам и совместимость с душевой стойкой. При выборе точной высоты важно учитывать рост пользователей и высоту душевой лейки.
Для моделей с термостатом рекомендуемая высота фиксирована производителем и редко превышает 110 см. Монтаж смесителя должен обеспечивать надежное крепление к водопроводным коммуникациям с шагом между подводками 150 мм ± 20 мм.
Установка встроенных смесителей требует дополнительной подготовки ниши в стене с глубиной не менее 7–10 см для размещения корпуса. В таких случаях монтаж ведут до облицовки стен, что важно учитывать при планировании ремонта.
Расположение управляющих элементов смесителя должно исключать контакт с водой из душевой лейки для предотвращения преждевременного износа. Желательно устанавливать смеситель так, чтобы струя воды попадала непосредственно в ванну или поддон, минимизируя разбрызгивание.
Подключение гибких шлангов к смесителю должно выполняться с использованием уплотнительных материалов, устойчивых к температурным колебаниям. Рекомендуется применять сантехническую ленту ФУМ или специальные прокладки из резины.
При монтаже смесителя в душевой зоне стоит предусмотреть доступ для обслуживания и замены элементов без демонтажа облицовки, что особенно актуально для встроенных моделей.
Разница высот для настенных и встроенных смесителей
Настенные смесители обычно устанавливаются на высоте 100–110 см от уровня пола. Эта высота обусловлена необходимостью удобного доступа к рукояткам и правильного направления струи воды в ванну или раковину. При монтаже настенного смесителя важно учитывать габариты ванны и её борта: если бортик высокий (от 45 см), оптимальная высота смесителя – около 110 см, для низких ванн (до 40 см) – 100 см.
Встроенные смесители монтируются внутри стены или под плиткой, что требует точного соблюдения проектных размеров, поскольку регулировка после отделки затруднена. Для встроенных моделей рекомендованная высота составляет 90–105 см. Она ниже, чем у настенных, чтобы обеспечить правильное размещение внутренних узлов и сохранить эргономику. Высота также зависит от типа конструкции: для термостатов и скрытых модулей лучше ориентироваться на отметку 95 см.
Отличие в высотах связано с конструктивными особенностями и монтажом. Настенные смесители фиксируются снаружи и требуют свободного пространства над ванной, встроенные же требуют учёта толщины стен и доступа к элементам управления. Кроме того, встроенные модели часто совмещают с душевой стойкой, что влияет на выбор высоты установки – обычно монтируют на 5–10 см ниже, чтобы избежать помех и сохранить комфорт использования.
Важный фактор – расположение выпускного излива. Для настенных смесителей он должен располагаться на 20–25 см выше бортика ванны, для встроенных – 15–20 см, чтобы минимизировать разбрызгивание и обеспечить оптимальный поток воды. При установке следует также учитывать высоту пользователя и тип сантехнического оборудования, чтобы обеспечить максимальное удобство.
Как высота установки смесителя влияет на предотвращение брызг

Высота установки смесителя напрямую влияет на интенсивность и направление брызг при использовании ванной или раковины. Чем ниже расположен излив относительно борта ванны или раковины, тем меньше свободного пространства для падения воды, что уменьшает вероятность сильных брызг. Оптимальная высота для настенных смесителей над ванной – 15–20 см от борта, для встраиваемых – около 10–15 см.
Если смеситель установлен слишком высоко (более 25 см от края), поток воды падает с большой высоты, увеличивая скорость удара о поверхность и приводя к разбрызгиванию. В этом случае вода может попадать на окружающие поверхности и пол, создавая дискомфорт и дополнительные трудности в уборке.
При монтаже смесителя рекомендуется учитывать глубину и форму ванны или раковины. Глубокие ванны с высокими бортами допускают установку смесителя на высоте до 25 см без сильных брызг, тогда как мелкие раковины требуют смесителей, расположенных ниже 15 см.
Важным фактором является также диаметр и давление воды. При высоком давлении и широком изливе даже оптимальная высота не гарантирует полное отсутствие брызг, поэтому рекомендуется установка аэраторов или регуляторов потока для смягчения струи.
Суммируя, правильная высота смесителя – это баланс между удобством использования и контролем брызг. Для стандартных ванн оптимальным считается монтаж на уровне 15–20 см от борта, для раковин – 10–15 см. Эти параметры минимизируют разбрызгивание, сохраняя чистоту и комфорт.
| Высота установки | Риск брызг | Рекомендации |
|---|---|---|
| До 15 см | Низкий | Подходит для мелких раковин, минимизирует брызги |
| 15–20 см | Средний | Оптимально для ванн с бортиками средней высоты |
| Более 25 см | Высокий | Рекомендуется снижать давление и использовать аэраторы |
Практические советы по выбору высоты с учетом роста пользователей
Высота установки смесителя должна соответствовать среднему росту основных пользователей ванной комнаты. Для удобства использования рекомендуются следующие ориентиры:
- Для взрослых с ростом 160–170 см оптимальная высота смесителя над уровнем пола – 90–95 см.
- Пользователи выше 180 см комфортно ощущают высоту в диапазоне 100–110 см.
- Для детей и подростков до 150 см стоит предусмотреть отдельные решения: дополнительный смеситель или регулируемые модели, расположенные на высоте около 70–80 см.
При расчете учитывайте высоту ванной или раковины – расстояние от поверхности до точки установки смесителя должно позволять удобно подставлять руки и исключать брызги.
- Измерьте рост всех основных пользователей и определите среднее значение.
- Добавьте к этому значению 15–20 см для комфортного захвата ручки и подачи воды.
- Проверьте выбранную высоту на практике, имитируя использование смесителя.
Если ванная используется несколькими людьми с заметной разницей в росте, разумно выбирать среднюю высоту и дополнять аксессуарами, например, удлинителями для душа или дополнительными рукоятками.
Учтите, что установка смесителя слишком низко приведет к неудобствам и увеличит риск попадания воды на пол, а слишком высокая позиция усложнит управление и повысит расход воды.
Ошибки при выборе высоты и способы их устранения

На практике часто встречаются ошибки, связанные с неверным определением высоты установки смесителя. Это может повлиять на удобство пользования, привести к разбрызгиванию воды и даже к ускоренному износу отделки стен.
- Смеситель установлен слишком высоко над ванной. При установке выше 25 см от верхнего края ванны возрастает риск разбрызгивания воды при включении напора. Это особенно заметно при коротком изливе или сильном напоре. Решение: демонтировать устройство и установить его на высоте 15–20 см от борта ванны, учитывая длину излива.
- Слишком низкое размещение над умывальником. Если расстояние от излива до края раковины меньше 15 см, снижается комфорт при мытье рук и других процедурах. Это также ограничивает угол поворота гибкого шланга. Устранение – перенос смесителя на высоту 20–25 см от верхней кромки умывальника.
- Игнорирование особенностей встраиваемых моделей. При монтаже скрытых смесителей с неподвижным изливом часто не учитывается глубина чаши ванны или раковины. Итог – неудачный угол подачи воды и брызги за пределы сантехники. Выход – предварительное моделирование положения излива на стене с учётом геометрии сантехники.
- Установка на произвольной высоте без учёта стандартов. Распространённая ошибка при самостоятельной установке. Для настенных моделей рекомендовано: 80–100 см от пола – для душа, 100–120 см – для умывальника. При несоблюдении норм затрудняется подключение душевого шланга и использование смесителя. Исправить можно путём переустановки в пределах стандартных диапазонов.
- Неверный учёт толщины чистовой отделки. После чернового монтажа смеситель может оказаться утопленным или, наоборот, выступающим. Это приводит к проблемам с подключением эксцентриков и декоративных накладок. Решение – добавление монтажных переходников или повторная разметка с учётом будущей отделки.
Корректный подбор высоты монтажа возможен только при точном измерении параметров сантехники и учёте способа использования. Все изменения необходимо проводить до начала облицовки стен, иначе придётся вскрывать плитку или панели для переноса точек подключения.
Вопрос-ответ:
Как определить правильную высоту установки смесителя для ванны с душем?
При установке смесителя в ванне с душем ориентируются на удобство использования как самого крана, так и душевой лейки. Обычно смеситель монтируется на высоте 1000–1200 мм от пола. Это позволяет свободно подключать душевой шланг и удобно управлять подачей воды, не наклоняясь. Однако точная высота может меняться в зависимости от высоты ванны и предпочтений жильцов. Если ванна нестандартная по высоте, расстояние от её верхнего края до смесителя должно составлять примерно 150–200 мм.
Нужно ли учитывать рост жильцов при выборе высоты смесителя?
Да, особенно если в помещении планируется частое использование душа. Высота установки душевого штанги и держателя лейки зависит от роста пользователя, чтобы струя воды не била в лицо или не приходилась на грудь. Что касается самого смесителя, то его высота влияет скорее на удобство при наполнении ванны и переключении режимов. Если в семье есть пожилые люди или дети, иногда имеет смысл немного сместить смеситель вниз для более лёгкого доступа.
Какая высота установки подходит для встраиваемого смесителя?
При встраиваемом монтаже смеситель обычно располагается выше, чем при настенном — примерно на уровне 1100–1300 мм от пола. Это связано с необходимостью соблюдения технических зазоров в стене, а также с тем, что встраиваемые модели часто комбинируются с нишами, полками или держателями. При выборе высоты ориентируются на высоту ванны и планируемое расположение душевой лейки или тропического душа, если он предусмотрен.
Какие ошибки чаще всего встречаются при установке смесителя по высоте?
Одна из частых ошибок — установка слишком низко, что затрудняет пользование душем и создаёт риск постоянных брызг за пределы ванны. Также встречается установка вплотную к краю ванны, из-за чего неудобно мыть руки или включать воду. Иногда смеситель размещают слишком высоко, и тогда при наборе воды возможен сильный шум и разбрызгивание. Чтобы избежать этих проблем, перед монтажом стоит измерить ванну и разметить стену с учётом предполагаемого угла наклона шланга и длины носика смесителя.
