
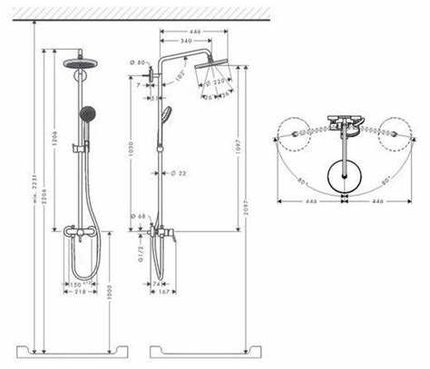
Высота установки душевой стойки напрямую влияет на удобство и безопасность пользования душем. При выборе конкретного уровня необходимо учитывать как рост пользователей, так и конструктивные особенности сантехники. Универсальной высотой считается диапазон от 190 до 210 см от уровня пола, однако это значение может изменяться в зависимости от ситуации.
Если душевая стойка фиксированная и не регулируется по высоте, её верхний край должен находиться на 20–30 см выше головы самого высокого пользователя. При этом важно обеспечить достаточный напор воды и угол падения струи, чтобы избежать разбрызгивания и необходимости наклоняться. Для семей с детьми или пожилыми людьми желательно предусмотреть дополнительные крепления на разных уровнях или выбрать модель с телескопической регулировкой.
Также следует учитывать высоту поддона или уровень чистового пола. Например, если поддон высокий (более 20 см), стойку следует устанавливать выше стандартного уровня, чтобы компенсировать разницу. В ванных с натяжными потолками может потребоваться индивидуальный подход, особенно если высота помещения ограничена. В таких случаях важно заранее измерить расстояние от пола до потолка и согласовать высоту душевой системы с производителем или установщиком.
При использовании потолочного душа (тропического) оптимальная высота его монтажа варьируется от 210 до 230 см. Это обеспечивает комфортное распределение воды и минимизирует теплопотери. Важно помнить, что слишком низкое расположение может ограничить свободу движений, а слишком высокое приведёт к рассеиванию потока и снижению давления на выходе.
На какой высоте устанавливать душевую стойку для взрослого человека

Рекомендуемая высота установки душевой стойки для взрослого пользователя составляет от 200 до 220 см от уровня пола. Это значение обеспечивает комфортное использование как фиксированной, так и ручной лейки без необходимости наклоняться или тянуться вверх.
Если стойка оснащена регулируемым держателем для лейки, нижнюю границу установки можно начинать от 100–110 см, чтобы обеспечить доступ пользователям разного роста. При этом верхняя точка направляющей должна находиться не ниже уровня головы самого высокого члена семьи – примерно 10–15 см выше его роста. Для мужчины ростом 185 см оптимальной будет установка стойки с верхней лейкой на уровне 200–205 см.
Если монтируется стационарная душевая система с верхним тропическим душем, важно учитывать высоту потолков. В помещениях с потолками 250 см установка душевой лейки выше 220 см может быть нецелесообразной из-за снижения напора и брызг за пределы зоны душа.
Также необходимо учитывать высоту поддона или уровень пола в душевой кабине. Если используется высокий поддон (30–40 см), общая высота установки должна рассчитываться с учётом этого уровня, иначе душ окажется слишком низко и станет неудобным для высоких пользователей.
Особенности выбора высоты стойки для душа с лейкой на шланге
Душевая стойка с лейкой на гибком шланге позволяет регулировать направление струи и удобно использовать душ в разных положениях. Однако фиксированная часть стойки, куда крепится держатель для лейки, должна устанавливаться на определённой высоте, чтобы обеспечить максимальный комфорт.
Для взрослого человека оптимальной считается высота крепления держателя лейки в пределах 180–200 см от уровня пола. Это позволяет использовать лейку как верхний душ без необходимости постоянно держать её в руке. При этом учитывается средний рост пользователя и высота выхода воды, чтобы струя не попадала слишком близко к голове или выходила за пределы кабины.
Если в семье есть несколько человек с разным ростом, важно выбирать модель стойки с регулируемым держателем. В этом случае базовая высота установки верхней направляющей выбирается по самому высокому пользователю – около 200 см, а нижний предел опускания держателя должен быть удобен для человека ростом 160–165 см.
Нельзя устанавливать держатель слишком низко – менее 160 см, поскольку при вертикальном положении лейки вода будет направлена на грудь или живот, что снижает эффективность и комфорт мытья. Также нежелательно крепить выше 210 см, так как напор струи будет рассеиваться, а доступ к лейке станет затруднённым.
При монтаже важно учитывать, что длина шланга должна позволять свободное перемещение лейки в пределах кабины. Оптимальная длина – 150–175 см. Если шланг слишком короткий, пользоваться душем в ручном режиме будет неудобно даже при правильно установленной стойке.
Рекомендованная высота установки душевой стойки с верхним душем
Для душевой стойки с верхним душем (тропическим) оптимальная высота установки распылителя варьируется от 200 до 220 см от уровня чистового пола. Такой диапазон обеспечивает равномерное распределение потока воды по всему телу взрослого человека, не создавая избыточного напора на голову.
При выборе конкретной высоты необходимо учитывать рост самого высокого члена семьи и прибавить не менее 20 см, чтобы вода не лилась слишком близко к голове. Например, если рост пользователя составляет 180 см, рекомендуемая высота размещения верхнего душа – около 205–210 см.
В случае низких потолков (менее 230 см) допустимо устанавливать лейку на минимальной высоте – 195 см, но при этом важно подобрать модель с достаточно широким рассеивателем и мягкой струёй, чтобы сохранить комфорт. Также следует учитывать высоту поддона или ванны, если стойка монтируется в их пределах – в этом случае замеры производятся от уровня дна, а не пола.
Важно избегать слишком высокой установки – выше 220 см, так как поток воды может терять давление и распыляться неэффективно. Кроме того, сложнее регулировать направление струи и обеспечить комфорт пользователям ниже среднего роста.
Как учитывать рост членов семьи при установке душевой стойки

При установке душевой стойки важно ориентироваться на рост всех пользователей, чтобы обеспечить удобство и избежать постоянной регулировки. Среднее расстояние от пола до душевой лейки с верхним душем обычно составляет 200–210 см, но эта величина может варьироваться.
- Для взрослого человека ростом до 170 см оптимальная высота установки душа – 190–195 см.
- При росте от 170 до 185 см стойку рекомендуется монтировать на высоте 200–205 см.
- Для пользователей выше 185 см – не ниже 210 см, чтобы обеспечить свободное пространство над головой минимум в 20 см.
Если в семье есть дети, лучше установить регулируемую стойку с подвижным держателем. Это позволит легко изменять положение лейки по мере роста ребёнка и не потребует переделок в будущем.
В случаях, когда рост членов семьи сильно различается, решение – душевая система с двумя точками: стационарным верхним душем на фиксированной высоте и ручной лейкой на штанге с регулировкой. Это обеспечивает комфорт для всех без компромиссов.
При расчёте высоты также учитывают толщину поддона или бортика ванны. Если установка идёт над ванной, измерения нужно вести от её дна, а не от пола.
Высота душевой стойки в зависимости от типа душевой кабины или ванной
При установке душевой стойки необходимо учитывать конструктивные особенности пространства: высоту потолков, глубину поддона и форму ограждения. В душевых кабинах с высоким поддоном (выше 30 см) оптимальная высота крепления верхнего душа составляет 200–210 см от дна поддона. Это позволяет обеспечить комфортное использование при стандартной высоте потолка 240–250 см.
В кабинах с низким поддоном (менее 15 см) высоту крепления стойки корректируют, ориентируясь на расстояние от пола. В этом случае рекомендуется устанавливать верхний душ на уровне 210–220 см от пола, если позволяют потолки. При ограниченной высоте помещения предпочтительнее модели с регулировкой по высоте.
Если душевая стойка монтируется над ванной, стандартная рекомендация – располагать душ на высоте 180–200 см от дна ванны. Однако при установке на стену у короткого борта следует учитывать уклон тела при пользовании – оптимальная высота в таком случае составляет 190–195 см. При наличии душевого экрана высоту подбирают так, чтобы струя воды не била в перегородку – минимум на 10 см выше ее верхнего края.
В нишевых или угловых душевых с нестандартной геометрией важно учитывать расположение потолочного перекрытия и вентиляционных элементов. В таких случаях целесообразно выбирать душевую стойку с гибкой штангой или системой крепления, позволяющей регулировать высоту в пределах 20–30 см.
При выборе конкретной высоты всегда учитываются не только конструктивные параметры кабины или ванны, но и рост основного пользователя. Это обеспечивает баланс между эргономикой и техническими ограничениями помещения.
Регулируемые душевые стойки: что учесть при монтаже

Регулируемые душевые стойки позволяют адаптировать высоту лейки под рост пользователя и конкретные условия ванной комнаты. При монтаже важно учитывать несколько технических аспектов для обеспечения надежности и комфорта эксплуатации.
- Диапазон регулировки высоты: стандартные модели обычно регулируются в пределах 70–120 см от нижней точки крепления. Перед установкой измерьте максимальный рост пользователей и оставьте запас около 10–15 см для удобства.
- Крепежная система: проверяйте надежность фиксации направляющей и ручки лейки. Используйте дюбели и шурупы, соответствующие материалу стен (кирпич, гипсокартон, плитка). Неправильный крепеж снижает устойчивость стойки и может привести к повреждениям.
- Угол наклона и высота верхнего душа: если стойка оснащена верхним душем, его положение также должно быть регулируемым или фиксированным на высоте минимум 190 см, чтобы обеспечить свободный поток воды и избежать брызг за пределы душевой зоны.
- Совместимость с гибким шлангом: длина и гибкость шланга влияют на удобство перемещения лейки. Оптимальная длина шланга – от 150 до 200 см, чтобы избежать натяжения и повреждений при регулировке.
- Герметичность соединений: после монтажа проверяйте отсутствие подтеков на местах крепления и соединений. Используйте уплотнительные кольца и силикон для предотвращения протечек.
- Высота установки управляющих элементов: смеситель и держатель лейки должны располагаться на удобной высоте, обычно от 90 до 110 см от пола, чтобы обеспечить легкий доступ без необходимости наклоняться или тянуться.
Точное соблюдение этих параметров при монтаже регулируемой душевой стойки обеспечит комфортный и долговечный функционал, а также минимизирует риски повреждений и неудобств при эксплуатации.
Ошибки при установке душевой стойки и как их избежать

Часто пренебрегают проверкой ровности установки. Если стойка смещена даже на несколько градусов, вода будет разбрызгиваться неравномерно, создавая дискомфорт. Используйте строительный уровень при разметке и креплении.
Игнорирование особенностей конструкции душевой кабины или ванной приводит к неправильному выбору высоты. В кабинах с низкими стенками стойку стоит монтировать выше, чтобы избежать брызг, а в глубоких ваннах – ниже, чтобы удобно было использовать ручной душ.
При закреплении стойки важно использовать крепеж, соответствующий типу стены. Для плитки или кирпича применяйте дюбели с пластиковыми или металлическими распорками, а для гипсокартона – специальные анкеры. Неправильный крепеж приводит к расшатыванию конструкции и поломкам.
Неправильный выбор модели душевой стойки без учёта наличия регулировок высоты и угла наклона уменьшает комфорт использования. Выбирайте модели с подвижными элементами, особенно если душом пользуются люди разного роста.
| Ошибка | Рекомендация |
|---|---|
| Низкая установка верхнего душа | Устанавливать на высоте 190–210 см от пола |
| Отсутствие проверки уровня | Использовать строительный уровень при монтаже |
| Неправильное расположение водоподводки | Располагать на высоте 100–120 см с отступом от стены |
| Использование неподходящего крепежа | Выбирать крепеж в зависимости от материала стены |
| Отсутствие регулировок на стойке | Покупать модели с возможностью регулировки высоты и угла |
Вопрос-ответ:
Как правильно определить высоту установки душевой стойки для семьи с разным ростом?
При выборе высоты душевой стойки учитывают рост всех членов семьи. Оптимально установить верхний душ на уровне примерно 190–200 см, чтобы обеспечить комфорт для высоких пользователей. При этом лейку на шланге закрепляют на регулируемой части стойки или на высоте около 150 см, что удобно для детей и невысоких людей. Такой подход позволяет каждому настроить душ по своему росту без необходимости переставлять оборудование.
Можно ли устанавливать душевую стойку ниже стандартной высоты, если в ванной низкие потолки?
Да, при низких потолках высота стойки уменьшается, чтобы сохранить комфорт. Верхний душ обычно монтируют на уровне не выше 180–185 см, чтобы вода не разбрызгивалась и не создавалось чувство стесненности. Важно, чтобы поток воды был направлен вниз, а лейка оставалась удобной в использовании. Иногда выбирают модели с регулируемыми элементами, что помогает адаптировать стойку под условия помещения.
Какие ошибки часто допускают при монтаже душевой стойки, связанные с высотой установки?
Одна из частых ошибок — установка стойки слишком низко, что неудобно для высоких пользователей и ограничивает свободу движений под душем. Другой распространённый промах — крепление лейки на фиксированной высоте без возможности регулировки, что не учитывает разный рост. Иногда верхний душ располагают слишком близко к потолку, из-за чего вода попадает на стену и пол, а не на пользователя. Чтобы избежать проблем, высоту выбирают с запасом и проверяют удобство перед финальным закреплением.
Как влияет тип душевой кабины или ванной на выбор высоты установки душевой стойки?
В душевых кабинах с низким потолком или компактных помещениях высота стойки часто уменьшается, чтобы обеспечить комфорт и избежать ударов головы. В просторных ванных комнатах с высоким потолком верхний душ устанавливают выше — около 200 см и выше, что создаёт более естественный поток воды. При наличии поддона или ванны учитывают высоту бортика, чтобы вода равномерно падала и не разбрызгивалась за пределы зоны. Разные типы помещений требуют индивидуального подхода к высоте стойки.
