
Для создания надежного каркаса ванны важно правильно выбрать материалы. Оптимальным вариантом считается профильная труба из стали с толщиной стенки не менее 2 мм – она выдержит вес конструкции и нагрузки во время эксплуатации. Деревянные бруски подходят только при условии обработки влагозащитными средствами и тщательной гидроизоляции.
Размеры каркаса должны строго соответствовать габаритам ванны: стандартная длина – 150–170 см, ширина – 70–80 см. Рекомендуется оставлять небольшой зазор в 2–3 мм для компенсации расширения при нагреве и установки облицовки. Каркас собирается методом сварки или с помощью болтовых соединений, при этом важно обеспечить жесткость за счет диагональных усилителей.
Для устойчивости каркаса к деформациям устанавливают опоры с регулируемой высотой – это компенсирует неровности пола. Оптимальная высота ножек – от 15 до 20 см. При монтаже следует проверить уровнем горизонтальность конструкции на всех этапах сборки, чтобы избежать перекосов и последующих проблем с эксплуатацией.
Выбор материалов для каркаса ванны: что подойдет лучше всего

Для прочного каркаса ванны важна высокая несущая способность, устойчивость к влаге и долговечность. Материалы следует подбирать с учетом условий эксплуатации и нагрузки.
- Металл (сталь или алюминий) – оптимален по прочности и долговечности. Сталь выдерживает значительный вес, но требует антикоррозийной обработки (оцинковка, покраска). Алюминий легче, устойчив к ржавчине, но менее прочен при больших нагрузках.
- Дерево твердых пород (дуб, бук, лиственница) – хорошо подходит при правильной обработке влагозащитными средствами. Обеспечивает жесткость конструкции и прост в обработке, но без пропитки быстро разрушается в условиях повышенной влажности.
- Фанера влагостойкая (минимум 12 мм) – бюджетный вариант для каркаса. Используется в сочетании с деревянным брусом для жесткости. Фанера должна быть марки ФСФ или ФК с пропиткой, чтобы избежать разбухания.
- Профилированный брус – часто применяется как основа каркаса. Лучше выбирать сухой материал с влажностью не выше 12%. Пропитывать антисептиками и гидрофобными составами.
Не рекомендуется использовать обычную древесину без обработки, пластик или легкие композиты, так как они не обеспечивают необходимой жесткости и долговечности.
- Для каркаса с металлическими элементами обеспечьте антикоррозийную защиту.
- При выборе дерева используйте влагостойкие пропитки и защитные лаки.
- Учитывайте габариты ванны и вес наполнения для расчета сечения материала.
- Оптимальное сочетание – металлический каркас с деревянными элементами для крепления облицовки.
Подготовка инструмента и рабочего места для сборки каркаса

Для сборки прочного каркаса ванны необходимы: рулетка с точностью до миллиметра, строительный уровень не менее 60 см, дрель с набором сверл по металлу и дереву, шуруповерт, гаечные ключи (на 10 и 13 мм), молоток, ножовка по металлу, рулонный карандаш или маркер.
Рабочее место должно быть ровным, устойчивым и хорошо освещённым. Оптимально использовать стол или верстак с высотой около 90 см. Пол необходимо очистить от мусора и покрыть защитной пленкой, чтобы избежать повреждений и загрязнений.
Перед началом работы проверьте исправность электроинструментов, наличие запасных аккумуляторов и сверл. Все крепёжные элементы (шурупы, болты, гайки) следует рассортировать по размеру и разложить в ёмкости, чтобы не терять время на поиск.
Безопасность: подготовьте средства индивидуальной защиты – очки, перчатки, респиратор при работе с металлическими деталями и пылью.
При сборке каркаса важно сразу подготовить вспомогательные подставки или деревянные бруски для поддержки элементов, чтобы обеспечить точное выравнивание и избежать деформаций.
Измерение и разметка для точного изготовления каркаса

Начинайте с точного замера длины, ширины и высоты ванны, используя рулетку с делениями не менее 1 мм. Проверьте ровность поверхностей и учтите толщину отделочных материалов, если они планируются.
Отмечайте границы каркаса с учётом зазоров для монтажа и вентиляции – обычно оставляют по 5–10 мм с каждой стороны. На ровной поверхности нанесите горизонтальные линии для базового уровня каркаса, используя уровень и угольник.
Для вертикальных стоек используйте разметку на полу и стенах с проверкой диагоналей: расстояния между противоположными углами должны совпадать с точностью до 1 мм. Это обеспечит прямоугольность каркаса.
Наносите метки мелом или маркером, чтобы избежать смазывания, и закрепляйте временные направляющие для контроля размеров при сборке.
При разметке учитывайте места крепления к стенам и полу, фиксируя точки для дюбелей и анкеров. Рекомендуется отмечать расположение отверстий заранее, чтобы избежать ошибок при сборке.
Техника сборки деревянного каркаса: пошаговые рекомендации

Шаг 1. Подготовьте доски сечением 50х50 мм, обработанные антисептиком. Для крепления понадобятся саморезы длиной 50 мм и уголки из оцинкованной стали.
Шаг 2. Соберите основание каркаса. Соедините четыре бруска в прямоугольник по габаритам ванны, используя уголки и саморезы. Проверьте диагонали – они должны совпадать, чтобы избежать деформаций.
Шаг 3. Установите вертикальные стойки через каждые 30-40 см по периметру основания. Они должны выступать на 15-20 см выше верхнего края ванны для последующего крепления обшивки.
Шаг 4. Закрепите верхнюю обвязку, повторяющую размеры основания. Для жесткости добавьте поперечные перемычки с шагом около 40 см, ориентируясь на размеры панели, которой планируете обшивать каркас.
Шаг 5. Проверьте вертикальность стоек и горизонтальность обвязок уровнем. Если обнаружены отклонения, скорректируйте их перед дальнейшей сборкой.
Шаг 6. Для устойчивости закрепите каркас к полу и стенам через специальные анкеры или дюбели. Используйте крепеж с запасом прочности – минимум два крепления на каждую сторону.
Шаг 7. После сборки проверьте жесткость конструкции, слегка надавливая на различные участки каркаса. Отсутствие люфтов и скрипов указывает на правильное крепление элементов.
Усиление каркаса: варианты крепления и дополнительные элементы

Для надежного каркаса ванны используют стальные уголки толщиной не менее 2 мм или профильные трубы 20х20 мм с толщиной стенки 1,5–2 мм. Соединения лучше выполнять сваркой или болтами М8 с гайками и шайбами, обеспечивающими жесткость и минимальный люфт.
Дополнительно применяют деревянные бруски хвойных пород с влажностью не выше 12% для распределения нагрузки и создания основы под облицовку. Их крепят саморезами длиной не менее 50 мм, с шагом 15–20 см, предварительно обработав антисептиком и влагозащитным составом.
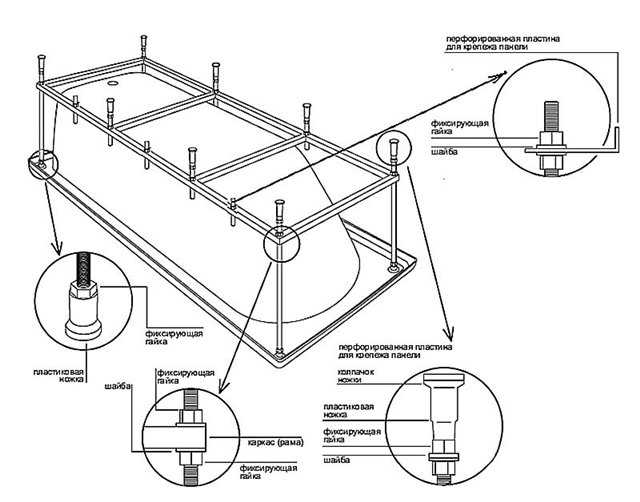
Усилить каркас можно установкой поперечных распорок из того же материала, что и основные стойки. Распорки фиксируют на уровне 1/3 и 2/3 высоты каркаса для снижения деформаций при нагрузке. В местах крепления используйте металлические пластины толщиной 1,5–2 мм с заклепками или саморезами.
Для увеличения жесткости конструкции рекомендуют использовать уголки или пластины с перфорированными отверстиями, позволяющими регулировать положение элементов и обеспечивать дополнительную фиксацию без деформации материала.
При монтаже к полу используйте анкеры диаметром 8 мм, глубиной не менее 70 мм, закрепляя каркас устойчиво к сдвигу и вибрациям. Между каркасом и плиточным покрытием рекомендуется прокладывать влагостойкую демпферную ленту для снижения передачи вибраций.
Проверка прочности и выравнивание готового каркаса под ванну

После сборки каркаса первым шагом проверьте жёсткость конструкции. Для этого приложите усилие в углах и в центре основания: каркас не должен прогибаться более 2 мм под нагрузкой около 50 кг. Используйте уровень с точностью не менее 0,5 мм/м для проверки горизонтальности основания и вертикальности опор.
Особое внимание уделите местам крепления соединений – при необходимости подтяните болты или дополнительно укрепите уголки стальными пластинами толщиной от 2 мм. Если каркас изготовлен из дерева, проверьте отсутствие расщеплений и надломов в опорах, обработайте все стыки влагозащитным средством.
Для выравнивания используйте регулируемые опоры или подкладывайте металлические шайбы под ножки, добиваясь полного контакта с полом. Важно, чтобы все точки опоры равномерно воспринимали нагрузку, без качания и люфта.
После выравнивания вновь проверьте горизонтальность по уровню, а также стабильность при легком покачивании каркаса. Если обнаружены нестабильные участки, устраните причину – замените или укрепите элементы конструкции.
Правильная проверка и выравнивание гарантируют равномерное распределение веса ванны и предотвращают деформацию в процессе эксплуатации.
Вопрос-ответ:
Какие материалы лучше использовать для каркаса ванны, чтобы он был долговечным и прочным?
Для изготовления каркаса обычно выбирают металл или дерево. Металлические конструкции из профильной трубы или уголка отличаются высокой прочностью и устойчивостью к нагрузкам, но требуют защиты от коррозии. Дерево стоит брать твердых пород, например, дуб или бук, и обязательно обработать влагозащитными средствами, чтобы избежать гниения и деформации. Часто выбирают профильную трубу с антикоррозийной покраской — это оптимальный вариант для надежного и долговечного каркаса.
Как правильно закрепить каркас к стенам и полу, чтобы он не шатался при использовании ванны?
Фиксация каркаса начинается с разметки и подготовки мест крепления. К полу лучше использовать анкерные болты, которые обеспечивают надежное соединение с основанием. К стенам каркас крепят с помощью дюбелей и саморезов, предварительно просверлив отверстия. Важно, чтобы крепеж был плотным, но не приводил к деформации труб или деревянных элементов. Рекомендуется использовать уровень, чтобы проверить точность установки, и при необходимости добавить дополнительные опоры или распорки для устранения люфта.
Какие инструменты и приспособления нужны для сборки каркаса своими руками?
Для работы понадобятся следующие инструменты: дрель с набором сверл, болгарка или ножовка по металлу/дереву, рулетка, уровень, отвертка или шуруповерт, а также крепежные элементы (саморезы, анкеры, болты). Если каркас металлический, понадобится сварочный аппарат для соединения деталей, хотя можно обойтись и болтовыми соединениями при наличии соответствующих креплений. Наличие защитных очков и перчаток также желательно для безопасности во время работы.
Какие ошибки часто допускают при сборке каркаса для ванны, и как их избежать?
Частая ошибка — неправильные замеры, из-за чего каркас не подходит по размерам или нарушается геометрия. Еще одна проблема — недостаточная прочность креплений, что ведет к шатанию конструкции. Также некоторые игнорируют защиту металла от ржавчины или деревянных элементов от влаги, из-за чего каркас быстро приходит в негодность. Чтобы избежать проблем, нужно тщательно измерять пространство, использовать качественные материалы и крепеж, а также обязательно обрабатывать все детали защитными средствами. Не стоит экономить на фурнитуре и крепежных элементах — от их надежности зависит долговечность всей конструкции.
