
КР (конструктивные решения) и АР (архитектурные решения) – это ключевые проектные разделы, определяющие не только внешний вид здания, но и его несущую способность, устойчивость, безопасность и эксплуатационные характеристики. Без этих компонентов невозможно получить разрешение на строительство, пройти экспертизу или грамотно организовать строительные работы.
Раздел АР включает в себя планы этажей, фасады, разрезы, экспликации помещений, схемы отделки и узлы сопряжений. Здесь отражаются объемно-планировочные и архитектурно-стилистические решения объекта. От качества и проработанности АР зависит не только внешний облик, но и соответствие здания нормативам по инсоляции, эвакуации, эргономике.
Раздел КР содержит схемы, расчёты и чертежи всех несущих конструкций: фундаменты, колонны, балки, плиты перекрытий, лестничные марши и узлы соединений. Инженер-конструктор основывается на АР, нагрузках, геологических изысканиях и применяет нормативы СП и ГОСТ для выбора расчетной схемы. Ошибки в КР приводят к перерасходу материалов, удорожанию строительства или рискам при эксплуатации.
Оба раздела подлежат обязательному согласованию и формируют основу для дальнейших инженерных решений (ОВ, ВК, ЭОМ и т.д.). Нельзя прорабатывать один без другого – архитектурная идея должна быть реализуема конструктивно, а конструкция – не искажать замысел архитектора. Поэтому взаимодействие специалистов по КР и АР должно быть непрерывным на всех этапах проектирования.
Отличия между разделами КР и АР по составу проектной документации

Конструктивные решения (КР) включают документацию, необходимую для реализации несущего каркаса здания. В составе КР разрабатываются чертежи монолитных, сборных и металлических конструкций, расчеты нагрузок, схемы армирования, узлы сопряжений элементов. Обязательно наличие спецификаций на арматуру, металлопрокат, закладные детали и сварные соединения. В КР указываются методы контроля качества сварки и бетонирования, а также требования к маркам бетона и стали.
Архитектурные решения (АР) охватывают внешний облик и функциональную организацию здания. Документация АР включает планы этажей с экспликацией помещений, разрезы, фасады, планы кровли, схемы отделки стен, потолков и полов, а также привязку оконных и дверных проемов. Указываются применяемые отделочные материалы, цветовые решения и их соответствие требованиям нормативных документов по безопасности и эстетике.
Ключевое отличие: КР определяет несущую способность и надежность конструкций, тогда как АР формирует архитектурный облик и комфортность среды. Раздел КР невозможен без расчетов, АР – без проработки функциональной схемы. Согласование КР чаще требует инженерных заключений, АР – согласования с архитекторами и органами охраны архитектурного наследия, если здание попадает в зону регулирования.
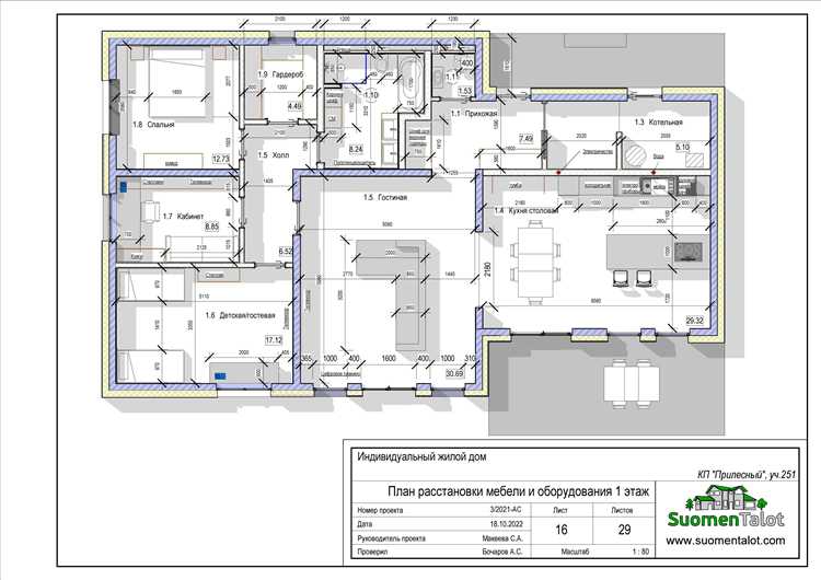
Какие чертежи входят в состав раздела АР

Раздел АР (архитектурные решения) содержит комплект графической документации, определяющей внешний облик здания, его внутреннюю планировку и пространственную структуру.
Обязательный элемент – поэтажные планы с указанием габаритов помещений, маркировкой стен, окон и дверей. На чертежах фиксируются оси, уровни полов и отметки чистового покрытия.
Фасады отображают архитектурный стиль, пропорции проёмов, отделочные материалы, цветовые решения. Указываются абсолютные отметки карнизов, кровли и цоколя.
Разрезы демонстрируют вертикальную структуру здания, высоты помещений, конструктивные слои полов, перекрытий и кровли. Включаются все архитектурные узлы, пересекающие осевые линии.
Планы кровли необходимы для фиксации уклонов, водоотводов, парапетов и инженерных проходок. Указываются материалы покрытия, точки водосбора и ливнестоки.
Узлы и детали проработаны в увеличенном масштабе, раскрывают сопряжения конструкций – оконных и дверных проёмов, примыканий перегородок к перекрытиям, стыков отделки.
Экспликации помещений включаются для идентификации функционального назначения, площади и категорий отделки по каждому помещению.
Фиксируются архитектурные элементы: лестницы, пандусы, балконы, эркеры, навесы. Для каждого – соответствующий чертёж с разрезами и пояснением конструктивного решения.
В составе также размещаются схемы отделки фасадов и помещений с указанием используемых материалов, текстур и технических требований к их нанесению.
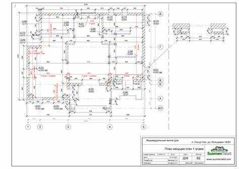
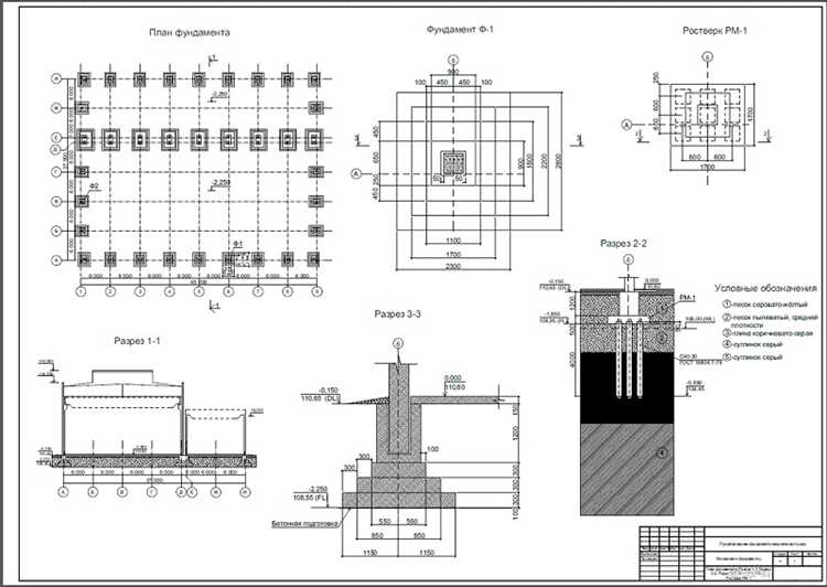
Что включает в себя раздел КР и зачем он нужен

Раздел КР (Конструктивные решения) содержит полный комплект проектной документации, необходимой для устройства несущих и ограждающих конструкций здания. Его основная задача – обеспечение прочности, устойчивости и надежности сооружения на всех стадиях жизненного цикла.
В составе КР разрабатываются чертежи и расчёты следующих элементов:
- Фундаменты: тип, глубина заложения, расчетные нагрузки, конструктивное армирование, защитные меры от промерзания и агрессивных сред.
- Каркас: материалы и параметры колонн, балок, ригелей, несущих стен и перекрытий, включая расчетную схему и сечения элементов.
- Монолитные и сборные конструкции: схемы армирования, узлы сопряжений, закладные изделия, привязки к инженерным коммуникациям.
- Лестнично-лифтовые узлы: конструкция маршей, площадок, шахт и противопожарных преград.
- Кровля и перекрытия: схема несущей системы, расчёт нагрузок, гидроизоляционные слои и узлы сопряжения с наружными стенами.
Без раздела КР невозможно получить разрешение на строительство, провести экспертизу проекта, рассчитать точные объемы строительных материалов и организовать безопасное возведение здания. Он служит базой для подготовки рабочей документации, определения стоимости конструктивных решений и согласования с другими разделами проекта, включая АР и инженерные сети.
Разработка КР требует учёта СП 20.13330, СП 63.13330, СНиП 2.03.01 и актуальных норм на конкретные материалы (бетон, металл, дерево). Ошибки в КР могут привести к перерасходу материалов, строительным дефектам и угрозе безопасности, поэтому его подготовку выполняют квалифицированные инженеры-конструкторы с применением расчетных программ (например, SCAD, LIRA, Robot Structural Analysis).
Как взаимодействуют архитекторы и конструктора при разработке АР и КР

Совместная работа архитекторов и конструкторов начинается с анализа техзадания и градостроительных ограничений. Архитектор формирует объемно-планировочную концепцию, исходя из функциональных требований, инсоляции, нормативов по пожарной безопасности и эргономике. Конструктор сразу проверяет реализуемость решений, обращая внимание на пролёты, схемы опирания, типы перекрытий и несущих элементов.
На этапе предварительной проработки архитекторы передают конструкторам 3D-модель или чертежи с основными габаритами, отметками перекрытий и расположением лестнично-лифтовых узлов. Конструкторы анализируют эти данные с учетом геологии участка, выбирают рациональную конструктивную схему (каркасную, безбалочную, монолитную и т.д.) и уточняют толщины плит, размеры колонн, необходимость деформационных швов.
После утверждения общей схемы архитекторы корректируют проект, учитывая размещение несущих конструкций и узлов. Например, смещение окон из-за колонн, увеличение высоты потолков для прокладки инженерных коммуникаций. Конструкторы, в свою очередь, адаптируют расчёты под изменённые архитектурные параметры: изменённую нагрузку, шаг балок, изменения по этажности.
Совещания по BIM-модели позволяют синхронизировать работу. Ошибки, например, несовпадение отверстий в плитах с трассами вентиляции, устраняются в процессе координации. Использование IFC-форматов позволяет избежать дублирования элементов и несостыковок между разделами АР и КР.
Рекомендуется фиксировать все согласования через чертежи и пояснительные записки. Особенно это важно при нестандартных решениях – консолях, висячих фасадах, остеклении от пола до потолка. Такие элементы требуют точной стыковки расчетных данных и архитектурных узлов.
Работа эффективна при параллельной разработке АР и КР с постоянной обратной связью. Отдельная координация инженерных систем (ОВ, ВК, ЭОМ) подключается только после финальной стыковки архитектурных и конструктивных решений.
На каком этапе проектирования создаются разделы АР и КР

Раздел АР (архитектурные решения) формируется на стадии «Проект» или «Рабочая документация», после утверждения архитектурной концепции. Основная задача – детализация объемно-планировочных и конструктивных решений, соответствующих техническому заданию и градостроительным регламентам. На этом этапе определяются точные габариты помещений, фасадные решения, типовые узлы и материалы отделки.
Раздел КР (конструктивные решения) разрабатывается после завершения АР, так как он опирается на архитектурную планировку. В нем прорабатываются расчетные схемы, подбираются типы несущих конструкций (фундаменты, колонны, перекрытия), выполняются расчёты на нагрузки и создаются рабочие чертежи армирования и узлов. Все расчёты выполняются на основе действующих СП и с учетом геологических данных участка.
Создание АР и КР – ключевая часть рабочей документации. Рекомендуется не начинать КР до окончательного согласования АР, чтобы избежать несостыковок. Параллельная разработка возможна только при тесной координации архитекторов и инженеров.
Какие нормативы регулируют содержание КР и АР
КР разрабатываются согласно требованиям СП 48.13330.2011 «Свод правил по проектированию зданий и сооружений», а также СНиП 3.01.01-85 «Организация строительного производства». В КР должны содержаться подробные конструктивные решения, включающие расчёты несущих элементов и спецификации материалов, что строго регламентируется этими нормативами.
АР формируется на основе СНиП 2.08.01-89 «Жилые здания» и СНиП 31-01-2003 «Здания жилые многоквартирные», которые задают архитектурные параметры, планировочные решения и требования к эстетике и функциональности зданий.
Кроме того, обязательным является соблюдение ГОСТ 21.1101-2013, который регулирует правила оформления чертежей, применяемых как в КР, так и в АР. Документы должны включать обязательные разделы и данные, подтверждающие соответствие проектных решений нормам пожарной безопасности, санитарным и экологическим стандартам (СП 1.13130.2009, СанПиН 2.1.2.1188-03).
Рекомендуется при разработке КР и АР строго руководствоваться актуальными редакциями нормативных документов, поскольку несоответствие требованиям приводит к отказам в экспертизе и задержкам при согласовании проектов.
Типовые ошибки при согласовании разделов АР и КР

При согласовании архитектурного раздела (АР) и конструктивного раздела (КР) часто возникают системные ошибки, приводящие к задержкам и дополнительным затратам. Рассмотрим наиболее распространённые из них и рекомендации по их устранению.
- Отсутствие синхронизации между АР и КР
- Архитекторы проектируют элементы фасадов, планировок и перепланировок без учёта конструктивных ограничений (например, расположения несущих стен, колонн).
- Инженеры-конструкторы не учитывают изменения архитектурных решений при обновлении КР, что ведёт к несоответствиям.
- Рекомендация: организовать регулярные междисциплинарные совещания и использовать общие BIM-модели для актуализации данных.
- Несогласованность параметров несущих конструкций и архитектурных элементов
- Неверно указанные размеры отверстий в перекрытиях и стенах, что вызывает пересмотр конструкций на стадии монтажа.
- Пренебрежение требованиями по анкерным креплениям и усилению элементов, что ведёт к техническим несоответствиям.
- Рекомендация: чётко фиксировать все проёмы, их геометрию и расположение на обеих документациях с обязательной проверкой инженерами и архитекторами.
- Недостаточная детализация технических решений в АР, влияющая на КР
- Отсутствие чётких спецификаций по материалам и способам крепления фасадных элементов.
- Неполные узлы и схемы сопряжения конструкций, что вызывает неоднозначности при разработке КР.
- Рекомендация: детализировать узлы сопряжения и материалы с учётом конструктивных требований и норм, использовать совместимые форматы документации.
- Игнорирование нормативных требований и стандартов в части взаимодействия разделов
- Несоблюдение СП и СНиП по проектированию строительных конструкций и архитектурных решений.
- Отсутствие проверок на соответствие нагрузок, устойчивости и деформаций, что создаёт риски безопасности.
- Рекомендация: внедрять контроль соответствия проектных решений нормативам на каждом этапе согласования, привлекать экспертов по строительным нормам.
- Задержки в передаче корректировок между АР и КР
- Медленная реакция на изменения, возникающие в ходе проектирования, ведёт к накоплению ошибок и увеличению срока согласования.
- Отсутствие единой цифровой платформы для обмена данными замедляет коммуникацию.
- Рекомендация: использовать облачные сервисы для совместной работы, устанавливать сроки обновления и проверки документации.
Кто отвечает за разработку и подписание АР и КР в проектной организации

Ответственность за разработку и подписание разделов архитектурных решений (АР) и конструктивных решений (КР) лежит на разных специалистах и подразделениях проектной организации, каждый из которых отвечает за свою часть проекта с учётом нормативных требований и внутренних регламентов.
- Разработка АР:
- Архитекторы – ключевые исполнители, создающие концепцию и детализирующие архитектурные решения с учётом функциональности, эстетики и нормативов.
- Ведущий архитектор проекта – контролирует качество и соответствие АР техническому заданию и нормам, осуществляет внутреннюю проверку.
- Проектный менеджер – координирует взаимодействие архитекторов с другими подразделениями, обеспечивает соблюдение сроков и требований заказчика.
- Разработка КР:
- Инженеры-конструкторы – отвечают за расчёты и разработку конструктивных элементов согласно нагрузкам, материалам и строительным нормам.
- Ведущий конструктор – проверяет расчёты, согласовывает решения с архитектурной частью и нормами безопасности.
- Технический руководитель проекта – утверждает техническую часть КР и контролирует её интеграцию с другими разделами.
Подписание и утверждение документов осуществляется следующими лицами:
- Руководитель проектной организации – ставит окончательную подпись, подтверждая полноту и качество проекта в целом.
- Главный инженер проекта – подписывает разделы КР и контролирует соответствие инженерных решений нормативам.
- Главный архитектор проекта – утверждает архитектурные решения перед передачей заказчику.
При необходимости привлекаются специализированные эксперты для проверки технической корректности, а также согласования с органами государственного строительного надзора.
Для эффективной работы проектной организации важно регламентировать ответственность в локальных нормативных документах и фиксировать полномочия каждого участника в проектной документации.
Вопрос-ответ:
Что такое КР и АР в строительстве и чем они отличаются?
КР и АР — это два важных раздела проектной документации, которые используются при проектировании и строительстве зданий. КР расшифровывается как «Конструктивные решения», а АР — как «Архитектурные решения». Разница между ними заключается в том, что КР включает в себя проектирование несущих конструкций (фундаменты, стены, перекрытия, кровли и т.д.), а АР — оформление внешнего и внутреннего вида здания, его планировки и общего дизайна.
Почему важно правильно разрабатывать разделы КР и АР?
Правильная разработка этих разделов помогает обеспечить безопасность здания и комфорт его использования. Если раздел КР не учтет все нагрузки, здание может оказаться небезопасным, а ошибки в разделе АР приведут к проблемам с функциональностью или эстетическим восприятием объекта. Оба раздела должны работать в связке, чтобы здание было не только красивым, но и долговечным.
Какие документы обычно входят в раздел КР?
В раздел КР входят различные расчеты и чертежи, связанные с несущими конструкциями. Это может быть проект фундамента, стены, перекрытий, крыши, а также проектные расчеты на прочность, устойчивость и деформацию этих элементов. Также могут включаться схемы армирования и рекомендации по использованию строительных материалов. Важный момент — этот раздел требует внимательности и учета всех факторов, влияющих на прочность здания, таких как сейсмическая активность или грунтовые условия.
Что включает в себя раздел АР?
В раздел АР включаются все элементы, касающиеся внешнего и внутреннего оформления здания. Это архитектурные чертежи фасадов, разрезов и планов, а также дизайн интерьеров. В этом разделе прописываются детали по использованию строительных и отделочных материалов, способы их применения, а также конструктивные особенности, влияющие на внешний вид здания. Важной частью раздела являются планы по организации пространства, размещению окон, дверей, лестниц и других элементов.
Какие ошибки чаще всего встречаются в разделах КР и АР?
Ошибки в разделе КР могут касаться неверных расчетов конструкций или недостаточного учета внешних факторов, таких как нагрузка, температура или сейсмичность. В разделе АР частыми ошибками являются неправильное размещение помещений, что может затруднить использование пространства, или несоответствие внешнего вида здания нормативам. Также встречаются проблемы с выбором материалов, которые не соответствуют заявленным характеристикам, что может повлиять на долговечность и безопасность здания.
