
Дизайн-проект квартиры – это не просто набор чертежей и визуализаций. Это структурированный документ, включающий техническую, художественную и организационную информацию, необходимую для точной реализации интерьера. Основная цель проекта – исключить ошибки при ремонте, заранее согласовать все решения и минимизировать внеплановые расходы.
На начальном этапе составляется техническое задание. Оно формируется после подробного интервью с заказчиком, анализа планировки, освещения, инженерных систем. Документ содержит список функциональных требований, пожелания к стилю, цветовой гамме, материалам и оборудованию. Чем точнее сформулированы задачи, тем эффективнее проходит дальнейшая разработка проекта.
Затем подготавливаются обмерный план, варианты планировочных решений и финальный чертёж с расстановкой мебели и оборудования. Все планы создаются с учётом эргономики, норм СНиП и инженерных ограничений. На этом этапе также выполняется концептуальная визуализация интерьера – для проверки совместимости выбранных решений до начала отделочных работ.
В рабочую документацию включаются развертки стен, схемы освещения, электрики, сантехники, потолков и полов, а также ведомости отделочных материалов и спецификации мебели. Это основной пакет, по которому строительная бригада проводит все работы. От точности этих чертежей зависит соблюдение сроков и бюджета проекта.
Финальным блоком является авторский надзор. Он включает регулярные выезды на объект, контроль соответствия исполнения проекту, корректировку решений при необходимости. Его наличие особенно важно при использовании нестандартных решений или индивидуальных заказов мебели и отделки.
Что включает техническое задание на дизайн-проект

Первый блок ТЗ включает общую информацию об объекте: точный адрес, площадь, количество комнат, высота потолков, наличие несущих стен, инженерных коммуникаций и технические ограничения (например, запрет на перепланировку или вынос мокрых зон).
Важным разделом является функциональное зонирование. Здесь фиксируется назначение каждой комнаты, количество необходимых спальных мест, рабочих зон, систем хранения и дополнительных помещений (гардеробная, постирочная, кладовая и т.д.).
Описываются стилистические предпочтения: желаемый стиль интерьера, допустимая цветовая гамма, материалы, которые предпочтительнее использовать, и те, которые недопустимы. Также могут быть приведены референсы – примеры интерьеров, которые нравятся заказчику.
Особое внимание уделяется бытовым привычкам и образу жизни жильцов. Указывается, сколько человек будет проживать, есть ли дети или пожилые родственники, домашние животные, как часто принимаются гости, как организован досуг и работа дома.
Заключительный блок содержит пожелания по срокам реализации проекта, приоритетам (например, важнее визуальная эстетика или бюджет), а также фиксирует финансовые рамки на реализацию ремонта и меблировки.
Как формируется обмерный чертеж и зачем он нужен

Процесс формирования обмерного чертежа включает:
- Выезд на объект с профессиональным измерительным оборудованием – лазерной рулеткой, дальномером, уровнем и, при необходимости, тепловизором.
- Сбор фактических данных по всем помещениям: длина и ширина стен, высота потолков, размеры и расположение оконных и дверных проёмов, толщина перегородок, выступы и ниши, уровень пола, углы наклона.
- Фиксация инженерных узлов: стояки водоснабжения и канализации, вентиляционные шахты, электроввод, газовые трубы, слаботочные кабели.
- Проверка геометрии помещений – углы, отклонения стен от вертикали, перепады высот.
- Перенос всех данных в цифровой чертёж в формате DWG или PDF с соблюдением масштаба и условных обозначений.
Готовый обмерный план включает:
- все точные размеры помещений;
- толщину стен и перегородок;
- места размещения коммуникаций и шахт;
- указание уровней пола и потолка;
- фиксацию всех особенностей планировки, включая балки, колонны, ниши.
Назначение обмерного чертежа – обеспечить достоверную основу для планировочных, конструктивных и инженерных решений. На его основе разрабатываются зонирование, расстановка мебели, привязка электрики и вентиляции, а также рассчитываются объёмы отделочных работ и закупки материалов. Его точность напрямую влияет на реалистичность бюджета и корректность всего проекта.
Планировочные решения: разработка и согласование вариантов

Планировочные решения определяют логику зонирования квартиры, основываясь на технических параметрах помещения и индивидуальных задачах заказчика. На этом этапе создаются 2–3 варианта планировки, каждый из которых отражает возможные подходы к распределению пространства, количеству комнат, размещению мебели и инженерных точек.
Исходные данные: расчет ведётся на основании обмерного чертежа, расположения несущих конструкций, окон, стояков, вентиляционных шахт. Обязательно учитываются требования СНиП и возможности согласования перепланировки в БТИ.
Функциональный анализ: до разработки чертежей дизайнер формирует перечень функциональных зон: кухня, спальни, гардеробные, рабочее место, хозяйственные помещения. Задача – не просто уместить зоны, а оптимизировать перемещение между ними и исключить «мертвые» площади.
Типовые приёмы: объединение кухни и гостиной, организация мастер-спальни с санузлом, установка раздвижных перегородок, расширение санузлов за счёт коридора. Каждый вариант планировки сопровождается пояснением решений и акцентом на преимущества.
Согласование: выбранный заказчиком вариант проходит проверку на соответствие нормативам. При необходимости вносятся изменения для подготовки плана к согласованию с управляющей компанией или жилищной инспекцией.
Рекомендация: не ограничиваться эстетикой. Учитывайте сценарии жизни: маршруты движения, приватность зон, возможность трансформации помещений. Это особенно важно при проектировании квартиры на долгосрочную перспективу.
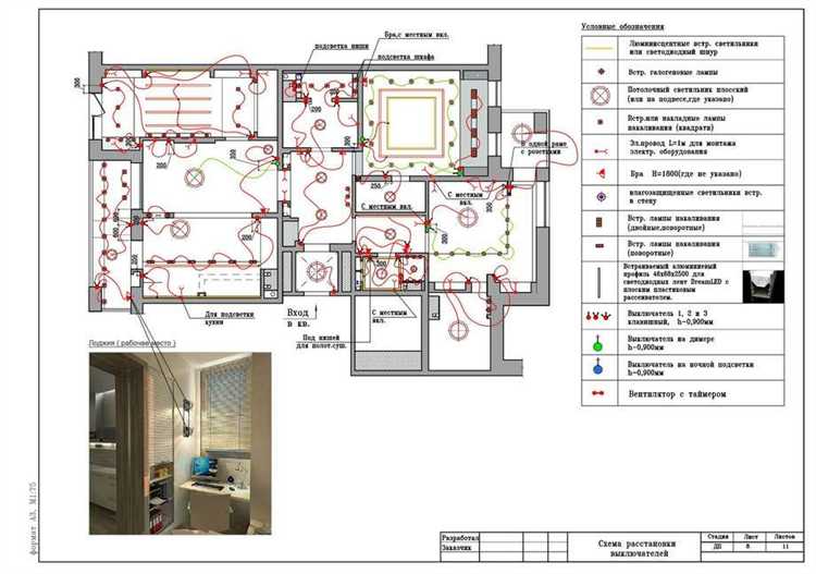
Состав чертежей для строительных и монтажных работ

Комплект чертежей для строительных и монтажных работ формируется после утверждения планировочного решения и включает только те элементы, которые необходимы для реализации проекта на объекте. Каждый лист имеет точную привязку к исходным обмерам и содержит размеры, отметки и пояснения для подрядчиков.
План демонтажа перегородок указывает участки конструкций, подлежащих сносу. Отмечаются стены, дверные проёмы, инженерные трассы, а также обозначаются зоны, где требуется вывоз строительного мусора.
План возводимых перегородок содержит точные данные о материалах, толщине, технологии монтажа и звукоизоляции. Привязки к осям и фиксированные размеры обеспечивают точность выполнения работ.
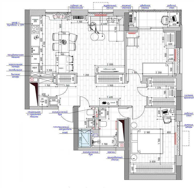
План расстановки мебели и оборудования необходим для понимания функционального зонирования и контроля габаритов при выполнении строительных работ. Он также служит базой для электромонтажных и сантехнических чертежей.
План потолков включает уровень, материал отделки, конструктивные особенности (ниши, перепады), а также технические узлы крепления, если предполагается сложная конструкция (например, натяжные или гипсокартонные потолки с подсветкой).
План напольных покрытий демонстрирует тип покрытия в каждом помещении, направление укладки (для паркета, ламината), швы и компенсационные зазоры. Обязательно указывается уровень чистого пола и вид подложки.
Сантехнические чертежи охватывают размещение приборов, трассы подачи воды, канализации и вентиляции. Прописываются точки подключения, углы наклона труб, высоты установки сантехнических элементов.
Развёртки стен подготавливаются для всех помещений с нестандартной отделкой, размещением плитки, декоративных панелей, встроенной мебели. Пропорции, узлы и маркировка материалов помогают избежать ошибок на этапе реализации.
В итоговый комплект также входят узлы монтажа (например, обрамление окон, установка световых ниш, крепление декоративных элементов) и спецификации по материалам, которые используются в соответствии с чертежами. Каждый лист подписывается и утверждается заказчиком до начала работ.
Визуализация интерьера: назначение и результат

Визуализация интерьера служит инструментом точного представления будущего пространства с учетом всех проектных решений. Основная задача – предоставить заказчику объемное и реалистичное изображение, отражающее планировку, материалы, цветовые решения и освещение.
Результатом визуализации становится серия изображений или анимаций, которые демонстрируют каждую зону квартиры с разных ракурсов. Это позволяет выявить и скорректировать ошибки до начала строительных работ, минимизируя риск переделок и дополнительных затрат.
Визуализация дает возможность оценить пропорции мебели и декора, проверить сочетание фактур и оттенков в условиях реального света. Современные программы создают фотореалистичные изображения, где учитываются отражения, тени и текстуры, что значительно повышает точность восприятия будущего интерьера.
Рекомендуется использовать визуализацию на этапе утверждения планировочных решений и подборе отделочных материалов. Это облегчает коммуникацию между дизайнером, заказчиком и подрядчиками, обеспечивая единое понимание конечного результата.
Кроме статичных картинок, полезна 3D-прогулка или панорамы, позволяющие детально изучить пространство и оценить эргономику. Такой подход повышает качество проекта и ускоряет процесс согласования.
Спецификация отделочных материалов и мебели
Для отделочных материалов указываются типы покрытий стен, полов и потолков, включая технические характеристики: устойчивость к истиранию, влагостойкость, пожаробезопасность. Например, для пола в санузлах предпочтительны керамогранит или влагостойкий ламинат с классом износостойкости не ниже AC4.
Мебель описывается с учетом функционала, габаритов и материалов изготовления. В спецификации должны быть отражены особенности конструкции, фурнитура и отделка фасадов. Для встроенной мебели указывается точное размещение и способ крепления.
Особое внимание уделяется комплектующим и аксессуарам – ручкам, светильникам, плинтусам, молдингам, чтобы избежать расхождений при закупке и монтаже. Каждому элементу присваивается уникальный код, обеспечивающий однозначную идентификацию.
Объем материалов рассчитывается с учетом запаса на монтажные ошибки и резку. Например, для обоев стандартный запас составляет 10%, для плитки – 7-10%. Эти данные включаются в спецификацию для точного бюджета и планирования закупок.
Спецификация служит основой для коммерческих предложений и договоров с поставщиками, поэтому требует максимальной детализации и сверки с реальными образцами. Любые изменения фиксируются в обновленных версиях документа.
Авторский надзор: когда он нужен и что в него входит

Авторский надзор – обязательный этап при реализации дизайн-проекта, обеспечивающий точное соблюдение утверждённых решений и качество исполнения. Он необходим в случаях, когда важно избежать искажений концепции и минимизировать ошибки на строительной площадке.
Авторский надзор показан при:
- сложных архитектурных решениях и нестандартных элементах интерьера;
- использовании эксклюзивных или дорогих материалов;
- необходимости контроля соответствия монтажа технической документации;
- ограниченных сроках выполнения ремонта с жёсткими требованиями к качеству;
- комплексных инженерных системах, связанных с дизайном (освещение, вентиляция, автоматика).
В состав авторского надзора входят следующие основные задачи:
- Регулярные выезды на объект для контроля соответствия работ проектной документации;
- Консультации с подрядчиками по техническим вопросам, корректировка и уточнение чертежей при необходимости;
- Проверка качества материалов и оборудования, соответствие заявленным техническим характеристикам;
- Контроль за соблюдением технологической последовательности и правильностью монтажа;
- Фиксация выявленных отклонений и предоставление письменных рекомендаций для их устранения;
- Согласование изменений и дополнений к проекту с заказчиком и исполнителями;
- Подготовка промежуточных и итоговых отчетов по результатам контроля;
- Участие в приёмке выполненных работ и подписании актов выполненных работ.
Эффективность авторского надзора напрямую влияет на конечный результат: сокращается риск перерасхода бюджета и времени, обеспечивается сохранение проектной идеи и качество исполнения.
Вопрос-ответ:
Какие документы входят в состав дизайн проекта квартиры?
Дизайн проект обычно включает несколько видов документов: обмерочные чертежи, планировочные решения, схемы электрики и освещения, спецификации материалов и мебели, а также визуализации интерьера. Каждый из этих элементов служит конкретной цели — от точного измерения пространства до выбора отделки и мебели. Такой набор позволяет максимально детально представить и реализовать интерьер.
Как происходит этап планировки в дизайн проекте?
На этапе планировки создаются варианты распределения зон и мебели с учетом функционала и особенностей квартиры. Дизайнер изучает исходные данные, обсуждает с заказчиком потребности и пожелания, затем разрабатывает несколько вариантов планировочных решений. После согласования выбранного варианта составляется более детальный план, который учитывает коммуникации, проходы и удобство использования пространства.
Для чего нужны визуализации интерьера и в каком виде они обычно выполняются?
Визуализации помогают получить наглядное представление о том, как будет выглядеть готовый интерьер. Обычно это трехмерные изображения или рендеры, показывающие цветовые решения, материалы, освещение и мебель. Они позволяют выявить возможные ошибки, скорректировать детали и согласовать конечный образ с заказчиком до начала ремонта.
Что включает в себя спецификация отделочных материалов и мебели?
Спецификация — это подробный перечень всех материалов, покрытий, мебели и оборудования, которые будут использоваться. В ней указываются названия, производители, цвета, размеры, количество и артикулы. Такой список облегчает закупку и контроль качества, а также помогает избежать замен и ошибок при реализации проекта.
Зачем нужен авторский надзор и что он включает?
Авторский надзор — это контроль дизайнера за реализацией проекта на объекте. Он позволяет следить за точным соблюдением технических решений, качеством материалов и соответствием конечного результата задумке. В обязанности входят регулярные выезды на стройку, консультации с подрядчиками, проверка соответствия выполненных работ чертежам и корректировка при необходимости.
