
Перед подключением газовой панели необходимо убедиться, что оборудование соответствует требованиям ГОСТ Р 54961 и предназначено для работы с типом газа, подаваемого в квартиру или дом. Большинство моделей рассчитаны на природный газ (метан), однако существуют модификации под сжиженный газ – для баллонных установок. Эта информация указывается на заводской табличке прибора.
Монтаж должен выполнять специалист с допуском к газоопасным работам. Самовольное подключение запрещено и влечёт штраф и отключение от газоснабжения. Перед началом работ требуется перекрыть подачу газа, проверить герметичность соединений и использовать только сертифицированные комплектующие: латунные фитинги, стальную подводку или гибкий шланг из нержавеющей гофры с маркировкой «для газа».
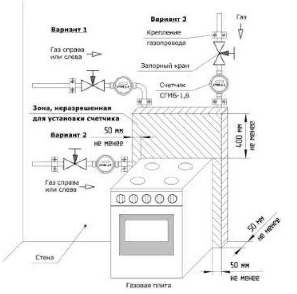
Расстояние от панели до ближайших электроприборов, стены и вытяжки регламентируется СНиП 42-01-2002. Минимальное расстояние до вытяжки – 75 см для газовых моделей. Установка должна обеспечивать свободный доступ к запорному вентилю. Присоединение производится через газовый кран с резьбой 1/2″, используя герметик, допущенный к применению в газовых сетях, например «ФУМ-ленту» или пасту с паклей.
После подключения обязательно проводится проверка на утечку газа с использованием мыльного раствора – любые пузыри свидетельствуют о негерметичности. Запрещено использовать открытое пламя. Только после успешной проверки допустимо производить пробный пуск и контроль работы конфорок.
Проверка соответствия панели типу используемого газа

Газовые варочные панели рассчитаны на определённый тип газа – природный (метан) или сжиженный (пропан-бутан). Заводская настройка большинства моделей ориентирована на природный газ. Если в доме используется баллонный газ, требуется замена форсунок и перенастройка давления.
Идентификация типа газа производится по маркировке на корпусе или в паспорте устройства. Обозначения: G20 – природный газ, G30/G31 – сжиженный. При несоответствии маркировки фактическому типу газа оборудование работать некорректно и небезопасно.
Замена форсунок должна выполняться комплектующими, идущими в наборе с панелью. Диаметр жиклёров отличается: для метана он больше, чем для пропан-бутана. Самовольная замена форсунок неподходящими может привести к перерасходу топлива и нестабильному пламени.
Регулировка давления газа выполняется на редукторе (в случае сжиженного газа) или через настройку минимального пламени на конфорках. При переходе на другой тип газа производитель требует замены уплотнений и проверки герметичности соединений.
Перед установкой необходимо сверить характеристики панели с техническими условиями подключения в доме. Несоответствие параметров может привести к утечке газа, копоти и неполному сгоранию топлива.
Требования к месту установки и вентиляции

Газовая варочная панель должна устанавливаться на ровную, устойчивую и термостойкую поверхность. Минимальное расстояние от задней стены – 50 мм, от боковых – не менее 150 мм. Расстояние до вытяжки – от 650 мм для электрической и от 750 мм для газовой. Поверхность мебели рядом с панелью не должна иметь легко воспламеняющееся покрытие.
Помещение, в котором планируется установка, должно иметь естественную вентиляцию – форточку или окно. Дополнительно необходим вытяжной канал с тягой не менее 10 Па. Запрещено подключать вытяжку с принудительным вентилятором напрямую в общий вентиляционный канал – допустимо только через обратный клапан.
Объём помещения – не менее 8 м³. При установке более двух конфорок требуется наличие приточной вентиляции, обеспечивающей не менее 1 м³ свежего воздуха на 1 кВт мощности горелок в час. Газовый шланг должен быть уложен с учётом доступа к вентиляционному отверстию и не закрывать его.
Запрещается установка панели в помещениях без постоянного проветривания, в ванных комнатах и на закрытых балконах. Нельзя размещать оборудование рядом с окнами, где возможен сквозняк – пламя может погаснуть, что приведёт к утечке газа.
Подготовка газопровода и выбор подводящего шланга

Обязательно наличие запорного крана с ручкой. Он устанавливается не далее 2 метров от панели и должен быть легко доступен. Если кран старого образца или не работает плавно – его заменяют.
Для соединения используют гибкий шланг, сертифицированный для подачи бытового газа. Нельзя применять резиновые или армированные изделия без соответствующей маркировки. Подходящие варианты – гофрированные нержавеющие шланги в полимерной оболочке, срок службы которых достигает 25 лет.
Шланг должен быть рассчитан на давление не ниже 0,03 МПа, обладать термостойкостью до +120 °C и иметь маркировку «ГАЗ». Длина подбирается так, чтобы соединение не было в натяг. Допускается небольшой изгиб, но без перегибов и перекручивания.
Крепление шланга производится с использованием прокладки из паронита и накидной гайки. Применение герметиков и лент не допускается на резьбовом соединении между краном и шлангом. После монтажа соединение проверяется мыльным раствором на герметичность.
Подключение через кран и проверка герметичности соединений

Подключение варочной панели к газопроводу выполняется через шаровой кран, установленный на отводе трубы. Кран должен быть сертифицирован для работы с природным или сжиженным газом и иметь резьбовое соединение, соответствующее диаметру подводки.
- Перекрыть газ с помощью запорного вентиля на вводе в квартиру или дом.
- Проверить состояние резьбы на выходе крана и при необходимости очистить ее от загрязнений.
- Нанести на наружную резьбу уплотнительный материал – фум-ленту или специальную пасту с паклей (не использовать сантехнический лен без герметика).
- Навинтить гибкую подводку на кран вручную до упора, затем затянуть гаечным ключом, избегая избыточного усилия.
Для проверки герметичности используется мыльный раствор:
- Смешать воду с хозяйственным мылом или использовать готовый аэрозольный индикатор утечек.
- Открыть газ на вводном вентиле и на кране, подать давление в систему.
- Обильно нанести раствор на все резьбовые соединения и места перехода от труб к гибкой подводке.
- Наблюдать за поверхностью: появление пузырей свидетельствует об утечке. В этом случае соединение демонтируется, уплотняется повторно и проверяется снова.
Не допускается использование открытого огня при проверке. При отсутствии пузырей через 2–3 минуты после нанесения раствора соединения считаются герметичными.
Особенности подключения к баллонному газу

Подключение варочной панели к баллонному газу требует соблюдения конкретных требований. Баллон должен быть заправлен сжиженным углеводородным газом (пропан-бутан) и иметь редуктор с выходным давлением 30 мбар. Использование редукторов на 50 мбар недопустимо – давление будет выше допустимого для бытовых приборов.
Шланг между баллоном и панелью должен быть рассчитан на пропан, с маркировкой «LPG» и сроком службы не более 5 лет. Оптимальная длина – до 1,5 метров. Шланг нельзя сгибать, удлинять или пропускать через стены. Соединение выполняется через штуцер и хомуты, при этом применение фум-ленты запрещено – она неустойчива к воздействию сжиженного газа.
Варочная панель должна быть переведена на баллонный газ: требуется замена форсунок на жиклёры с меньшим диаметром. Номера форсунок указаны в техническом паспорте панели. Без замены форсунок возможна нестабильная работа или перегрев конфорок.
Баллон размещается в вертикальном положении на расстоянии не менее 1 метра от панели, в хорошо проветриваемом помещении, недоступном для прямого солнечного света и источников тепла. Хранить баллон внутри кухни в многоквартирном доме запрещено – допускается только использование в частных домовладениях при наличии вытяжной вентиляции и соблюдении норм СНиП 42-01-2002.
Перед запуском нужно проверить герметичность соединений с помощью мыльного раствора. Использование открытого огня для этих целей категорически запрещено. При запахе газа – отключить баллон, проветрить помещение, устранить утечку.
Порядок вызова и роль специалиста из газовой службы

Перед установкой варочной панели необходимо обратиться в газовую службу, имеющую лицензию на проведение работ. Заявку подают через официальный сайт компании, по телефону или лично в абонентском отделе. При обращении указывают точный адрес, тип оборудования, наличие старой плиты и способ подключения.
После регистрации заявки назначается дата визита. Специалист прибывает с необходимыми инструментами и средствами контроля. Он проверяет проект газоснабжения, состояние запорной арматуры, диаметр подводящего шланга и соответствие помещения требованиям безопасности (вентиляция, расстояние до окон, наличие вытяжки).
При подключении используется сертифицированный шланг с маркировкой, учитывается срок его эксплуатации. Газовщик устанавливает переходники, уплотняет соединения, проводит опрессовку системы с мыльным раствором. После проверки герметичности включается подача газа и тестируется работа всех конфорок.
По завершении выдается акт выполненных работ с отметкой о допуске к эксплуатации. Без участия специалиста ввод новой панели в эксплуатацию запрещён и считается нарушением правил безопасности.
Проверка работы конфорок и настройка подачи газа

После подключения панели необходимо убедиться в герметичности соединений. Для этого открывают газовый кран и обрабатывают стыки мыльным раствором. Появление пузырей указывает на утечку. В этом случае подачу газа немедленно перекрывают и устраняют дефект.
Каждую конфорку включают поочерёдно. Искра должна появляться сразу после поворота ручки, пламя – загораться равномерно по всей окружности горелки. Если пламя отрывается от форсунки, коптит или гаснет при минимальном положении, требуется корректировка.
Регулировка минимального пламени выполняется с помощью винта, расположенного под ручкой управления. Для доступа ручку снимают, затем тонкой отвёрткой поворачивают регулировочный винт: по часовой стрелке – уменьшение, против – увеличение. Пламя должно быть устойчивым, не гаснуть при сбросе давления и сохранять форму без рывков.
Если панель подключена к баллонному газу, необходимо убедиться, что установлены соответствующие форсунки. Диаметр отверстий у них отличается от тех, что предназначены для магистрального газа. Неверный подбор приведёт к нестабильной работе и перерасходу топлива.
Проверку проводят при закрытых окнах и отсутствии сквозняков, чтобы исключить влияние внешних факторов на поведение пламени. После настройки ручки возвращают на место, ещё раз тестируют все конфорки в разных режимах.
Вопрос-ответ:
Можно ли подключить газовую варочную панель самостоятельно, или обязательно вызывать специалиста?
Подключать газовую технику самостоятельно запрещено. По закону это может делать только сотрудник газовой службы или организация, имеющая соответствующую лицензию. Самовольное подключение несёт риск утечки газа, пожара или взрыва, а также грозит штрафами. После установки мастер составляет акт ввода в эксплуатацию — без него использовать плиту нельзя.
Какие документы нужно подготовить перед подключением газовой панели?
Понадобятся паспорт варочной панели, инструкция по установке, договор на техническое обслуживание газового оборудования и проект, если требуется изменение газопровода. Также мастер может попросить документы на квартиру. Всё это ускорит процесс подключения и проверку соответствия техники требованиям безопасности.
Нужно ли менять гибкий шланг при замене варочной панели?
Да, при замене панели обычно ставится новый шланг. Старые соединения со временем теряют герметичность, а материал шланга может изнашиваться. Новый шланг должен быть рассчитан на газ, иметь паспорт и соответствовать длине, указанной в нормативных документах. Его подбирает и устанавливает специалист.
Можно ли установить панель на кухне без вытяжки?
Формально наличие вытяжки не обязательно, если есть вентиляционный канал и он работает исправно. Однако при постоянном приготовлении пищи без вытяжки в помещении скапливаются продукты сгорания газа и влага. Это сказывается на самочувствии и состоянии отделки. Лучше предусмотреть вытяжку или хотя бы регулярно проветривать.
Какие требования к месту установки варочной панели?
Панель устанавливается на прочную горизонтальную поверхность, выдерживающую вес устройства и температуру нагрева. Рядом не должно быть легковоспламеняющихся материалов. Расстояние до стены — не менее 5 см, до вытяжки — обычно от 65 см (зависит от модели). Также нужно обеспечить доступ к вентилю перекрытия газа и вентиляционной решётке.
