
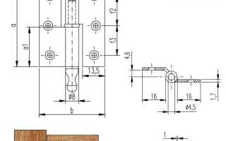
Для замены дверных петель потребуется минимальный набор инструментов: отвертка, уровень и новые петли соответствующего размера. Перед началом работы необходимо точно определить тип крепления и размеры старых петель – стандартная высота петли обычно 100 мм, а ширина – 75 мм.
Сначала дверь нужно снять с рамы, поддерживая ее снизу, чтобы не повредить поверхность. После этого откручивают старые петли, тщательно сохраняя крепеж для повторного использования, если он в хорошем состоянии. Новые петли устанавливаются на те же места, при необходимости подгоняются отверстия под крепеж.
Установка петель требует проверки уровня двери, чтобы избежать перекоса при закрывании. После монтажа дверь возвращают на место и регулируют петли с помощью винтов для обеспечения плавного хода. Весь процесс занимает от 20 до 40 минут в зависимости от опыта и состояния двери.
Выбор подходящих петель для замены

При выборе петель учитывайте тип двери и нагрузку. Для межкомнатных дверей подойдут петли размером 100×75 мм с толщиной 2,5–3 мм, рассчитанные на вес до 20 кг. Для входных дверей выбирайте петли из нержавеющей стали или латуни, выдерживающие до 40 кг и более.
Обратите внимание на количество петель: для дверей высотой до 2 метров достаточно двух, выше – три. Форма петель бывает накладная, врезная и скрытая. Врезные обеспечивают более плотное прилегание, накладные легче монтировать.
Для металлических дверей лучше подходят усиленные петли с шариковыми подшипниками – они обеспечивают плавное открытие и долговечность. Для деревянных дверей подойдут петли с ровной поверхностью и крепежом под шурупы.
Проверяйте расстояние между крепежными отверстиями, оно должно совпадать с существующими, чтобы избежать дополнительного сверления. Диаметр крепежа обычно 3–4 мм, длина зависит от толщины двери и коробки.
Дополнительно оцените наличие защитных колпачков или декоративных накладок, если внешний вид двери важен. Важно выбирать петли с покрытием, устойчивым к коррозии, особенно в помещениях с повышенной влажностью.
Подготовка инструментов и рабочего места

Для замены дверных петель потребуется крестовая отвертка, дрель с набором сверл диаметром 3 и 5 мм, шуруповерт, уровень и рулетка. Запасные шурупы лучше брать из комплекта с петлями или диаметром 3,5 мм, длиной 30 мм.
Рабочее место должно быть освещено естественным или мощным искусственным светом. Разместите дверь на устойчивых подставках на высоте около 70 см, чтобы было удобно работать без наклонов.
Перед началом снимите лишние предметы из зоны работы. Подложите ветошь или картон под петли и крепеж, чтобы не повредить пол и не потерять мелкие детали.
Подготовьте емкость для хранения винтов и небольших элементов, чтобы избежать их рассеивания. При наличии магнитного держателя отверток он значительно ускорит процесс сборки.
Проверьте исправность электроинструментов, заряд аккумуляторов шуруповерта и запасные сверла. При необходимости подготовьте защитные перчатки для комфортной работы с металлическими деталями.
Как аккуратно снять старые дверные петли

Для начала снимите дверь с петель. Подложите под дверь деревянный брусок или сложенную ткань, чтобы избежать повреждений пола и дверного полотна. Открутите крепёжные винты петель отверткой или шуруповёртом с подходящей насадкой. Если винты плохо поддаются, обработайте резьбу проникающим маслом и подождите 10–15 минут.
После откручивания винтов аккуратно снимите петли с дверной коробки и дверного полотна. При наличии коррозии или краски используйте шпатель или тонкую стамеску, чтобы поддеть петлю без повреждения поверхности.
Проверьте состояние отверстий для крепежа. Если они повреждены, подготовьте их к ремонту – например, заполните шпаклёвкой или замените деревянные дюбели. Это позволит установить новые петли надёжно и без перекосов.
Храните снятые винты и петли в отдельной ёмкости, чтобы избежать потери и сохранить детали для возможного повторного использования.
Правильная установка новых петель на дверь

Для точной установки новых петель подготовьте дверь и коробку: удалите старые крепежи и очистите поверхности. Положите дверь на ровную поверхность, чтобы обеспечить стабильность при работе.
Отметьте расположение петель, используя старые петли как шаблон или измеряя с помощью рулетки: верхняя петля должна находиться примерно в 20–25 см от верхнего края двери, нижняя – на 20–25 см от нижнего края. Если требуется средняя петля, установите её ровно посередине между верхней и нижней.
Просверлите отверстия под крепёжные винты с помощью сверла, диаметр которого соответствует винтам петель, чтобы избежать раскалывания древесины. Глубина отверстий должна быть чуть меньше длины винтов, чтобы крепление было плотным.
Прикрепите петли к двери с помощью шуруповерта или отвертки, контролируя, чтобы петли располагались строго вертикально и не были перекошены. После крепления к двери установите дверь в проём, совместив петли с пазами на коробке.
Закрепите петли на коробке аналогично: отметьте места креплений, просверлите отверстия и вкрутите винты. Проверяйте плавность открывания двери после каждой закреплённой петли, корректируя положение при необходимости. При необходимости используйте подкладки или регулируйте глубину посадки петель для обеспечения правильного зазора между дверью и коробкой.
Регулировка двери после замены петель
После установки новых петель дверь может закрываться с усилием или провисать. Для исправления положения необходимо отрегулировать петли с помощью крестовой отвертки или шестигранного ключа, в зависимости от модели петель.
Первый шаг – проверить зазоры между дверью и коробкой. Они должны быть равномерными по всему периметру, обычно 2–3 мм. Если дверь касается коробки сверху или снизу, ослабьте крепления петель и немного поднимите или опустите дверь.
Второй шаг – отрегулировать горизонтальное смещение. Многие петли оснащены регулировочным винтом, позволяющим сдвинуть дверь внутрь или наружу на 1–2 мм для устранения перекосов.
Третий шаг – проверить и при необходимости подтянуть все крепления. Часто ослабление винтов приводит к провисанию и скрипу.
Совет: при регулировке держите дверь слегка приоткрытой, чтобы нагрузка на петли была минимальной. После завершения настройки проверьте плавность закрывания и отсутствие заеданий.
Проверка и устранение возможных проблем после замены

После установки новых дверных петель необходимо выполнить проверку для выявления и устранения дефектов, которые могут повлиять на эксплуатацию двери.
- Проверка ровности установки: откройте и закройте дверь несколько раз. Если она заедает или цепляет коробку, отрегулируйте петли с помощью отвертки или шестигранника. Небольшое смещение регулируется подкручиванием крепежа.
- Оценка плотности прилегания: между дверью и коробкой не должно быть зазоров больше 2–3 мм. При большем расстоянии рекомендуют заменить крепеж на более длинные саморезы или добавить уплотнитель.
- Проверка шума и трения: скрип или сопротивление указывают на необходимость смазки петель. Используйте силиконовое масло или литиевую смазку, нанося ее на штифт и внутренние части петли.
- Фиксация крепежа: проверьте все винты – они должны быть затянуты равномерно, без перекосов и люфтов. В случае расшатывания используйте дюбели или специальные анкеры для усиления крепления.
- Контроль направления открывания: дверь должна свободно открываться в нужную сторону без излишних усилий. Если направление неверное, требуется перестановка петель или их замена на петли с обратным ходом.
При появлении стойких проблем повторно осмотрите места крепления на предмет повреждений или деформаций. При необходимости замените поврежденные элементы или проконсультируйтесь со специалистом.
Вопрос-ответ:
Какие инструменты понадобятся для замены дверных петель своими руками?
Для замены петель обычно нужны: отвертка или шуруповёрт с подходящей насадкой, новые петли нужного размера, рулетка или линейка для измерений, карандаш для разметки и, возможно, молоток с долотом, если потребуется удалить старые петли с труднодоступных мест.
Как понять, что дверные петли нужно заменить, а не просто отрегулировать?
Если дверь начала провисать, плохо закрываться или скрипеть, стоит проверить петли. Визуально можно увидеть износ или повреждения, например, расшатанные винты, трещины на петлях или деформацию металла. Если регулировка не помогает решить проблему, значит, стоит заменить петли на новые.
Можно ли заменить дверные петли, не снимая дверь с коробки?
В большинстве случаев снять дверь удобнее для замены петель, чтобы лучше подойти к крепежу и точно установить новые детали. Однако при небольших петлях и аккуратной работе иногда возможно поменять петли прямо на месте, особенно если есть помощник, который будет удерживать дверь.
Как правильно выбрать новые дверные петли для замены?
При выборе новых петель важно учитывать их размеры, форму и способ крепления, чтобы они соответствовали старым. Также следует обратить внимание на материал — стальные или латунные петли подходят для разных типов дверей и условий эксплуатации. Лучше подобрать те, которые по внешнему виду и нагрузке подходят для вашей двери.
Сколько времени обычно занимает процесс замены дверных петель своими руками?
Зависит от опыта и сложности работы. Обычно на демонтаж старых петель, подготовку места и установку новых уходит от 30 минут до пары часов. Если работать аккуратно и иметь под рукой все необходимые инструменты, замена занимает не больше часа для одной двери.
Как подготовить дверь и дверную коробку перед заменой петель, чтобы работа прошла без сложностей?
Перед заменой петель нужно снять дверь с петель, аккуратно подперев её. Осмотрите место крепления старых петель на дверной коробке и двери — уберите старые шурупы и очистите поверхность от грязи и пыли. Если старые петли оставили углубления или повреждения, их стоит зашпаклевать или немного отшлифовать, чтобы новые петли установились ровно. Это поможет избежать перекосов и обеспечит плавное открывание и закрывание двери.
