
В проектной документации точное и стандартизированное обозначение окон имеет ключевое значение для последующей сборки, производства и строительных работ. Согласно требованиям ГОСТ 21.501-93, окна на архитектурно-строительных чертежах обозначаются условными графическими символами с привязкой к маркировке изделий в спецификациях.
Для обозначения окон используется тонкая линия, указывающая контур проема, и диагональ, пересекающая проем по диагонали. По ГОСТу обязательно указывать марку изделия, которая размещается в круглом выносном элементе рядом с оконным проемом. Цифровой код марки изделия должен соответствовать номенклатуре, принятой в проекте, и отражаться в ведомости перемычек или спецификации оконных блоков.
ГОСТ требует указывать размеры проема в миллиметрах: ширина и высота проема подписываются над или под изображением окна, без указания единиц измерения. Если окно состоит из нескольких створок, их количество, тип (глухая, поворотная, поворотно-откидная) и способ открывания обозначаются дополнительно в спецификации или на фасаде при помощи условных обозначений по ГОСТ 23166-99.
Для каждого окна также предусматривается привязка к координатной сетке и уровням этажей. При выполнении чертежей в масштабе 1:100 или мельче допускается упрощённое изображение окон, однако при этом обязательно сохраняются размеры и маркировка. В случае повторяющихся окон достаточно одного типового обозначения с указанием количества экземпляров.
Требования ГОСТ к обозначению оконных конструкций на строительных чертежах

Согласно ГОСТ 21.501-93 и ГОСТ 2.303-68, оконные конструкции на строительных чертежах обозначаются строго по установленным правилам. Несоблюдение этих требований может привести к ошибкам в проектировании и строительстве.
- Окна обозначаются условными графическими знаками в виде прямоугольников, размещённых в проёмах стен. Толщина линий соответствует толщине линий видимого контура – 0,7–1,4 мм в зависимости от масштаба чертежа.
- Марки окон указываются на плане и фасаде. Над проёмом размещается выноска с маркой изделия (например, ОК-1), которая соответствует спецификации.
- В спецификации указывается тип изделия по ГОСТ 23166, размеры, материал профиля, наличие фрамуг, створок, заполнений и фурнитуры.
- Разрезы окон обязательно показываются на чертежах в масштабе 1:20 или 1:10. В разрезе отображается конструкция рамы, створок, остекления и узел примыкания к стене.
- Для нестандартных окон применяются дополнительные схемы с указанием всех размеров и технических характеристик. Такие элементы сопровождаются индивидуальной маркировкой, не совпадающей с серийными.
- На фасадах оконные проёмы отображаются с учётом размеров, форм и конфигурации открывающихся элементов. Допускается использование штриховки для указания остекления.
- Все оконные конструкции должны быть увязаны с узлами привязки и координационными осями здания. Маркировка должна быть однозначной и читабельной во всех проекциях.
Применение обозначений в строгом соответствии с ГОСТ обеспечивает читаемость документации и точность изготовления оконных блоков на производстве.
Форматы и правила нанесения оконных обозначений в поэтажных планах

Обозначение окон на поэтажных планах осуществляется в соответствии с ГОСТ 21.501–2018. На чертежах допускается использование упрощённых графических символов без детальной прорисовки элементов конструкции. Главное требование – однозначная идентификация каждого окна по месту установки и типу исполнения.
Графически окно изображается в виде разрыва в линии стены с указанием направления открывания створки, если оно необходимо. Штриховка или прорисовка профиля не применяется. Ширина разрыва соответствует габаритам оконного проёма по проекту. Размеры указываются в миллиметрах без обозначения единиц измерения.
Окна маркируются с помощью позиционного обозначения в виде условного номера (например, ОК1, ОК2). Обозначение размещается рядом с окном, параллельно основной надписи, высота шрифта – не менее 2,5 мм. Для каждого номера должна быть предусмотрена расшифровка в экспликации или ведомости заполнений с указанием типа, материала, размеров, характеристик остекления и способа открывания.
Размещение маркировки осуществляется вне габаритов проёма, но в непосредственной близости от него, чтобы исключить неоднозначность привязки. Если окно устанавливается в нестандартной позиции (угловое, ленточное), обозначение наносится с учётом удобства чтения при любом масштабе плана, но строго горизонтально или вертикально.
Для окон с различными характеристиками в одном типоразмере применяют дополнительные буквенные индексы: ОК1а, ОК1б и т.д. Использование одних и тех же обозначений на разных планах не допускается без указания номера этажа или помещения, к которому относится окно.
Нанесение оконных обозначений осуществляется на планах всех этажей, где присутствуют оконные конструкции, включая подвальные и чердачные уровни, если там предусмотрены световые проёмы. Привязка окон к координатной сетке допускается только при выполнении рабочей документации.
Шифры и коды оконных изделий в соответствии с ГОСТ 23166

ГОСТ 23166 устанавливает систему обозначений оконных блоков, обеспечивающую точную идентификацию изделий по их конструкции, размерам и материалам. Шифр изделия состоит из нескольких последовательных элементов, разделённых дефисами.
Первый элемент – тип окна. Примеры обозначений:
- О – глухое окно
- ОП – окно с поворотной створкой
- ОБ – окно с поворотно-откидной створкой
Второй элемент – число створок, например, «2» – двухстворчатое.
Третий элемент – габаритные размеры в дециметрах: сначала ширина, затем высота. Например, «12-15» обозначает окно шириной 1200 мм и высотой 1500 мм.
Четвёртый элемент – материал рамы:
- Д – древесина
- П – пластик
- А – алюминий
Пятый элемент (при необходимости) – климатическое исполнение и категория размещения по ГОСТ 15150: «УХЛ1», «Т2» и др.
Пример полного шифра: ОБ-2-12-15-П-УХЛ1 – окно с поворотно-откидными створками, двухстворчатое, шириной 1200 мм, высотой 1500 мм, из пластика, климатическое исполнение УХЛ1.
При проектировании необходимо использовать полный шифр, чтобы исключить ошибки при заказе и монтаже. На чертежах его указывают рядом с условным графическим изображением окна. Изменения в размерах или конструкции требуют корректировки всего обозначения.
Условные графические изображения окон в фасадных чертежах

В фасадных чертежах оконные проёмы обозначаются в соответствии с требованиями ГОСТ 21.501–93. Основная задача – обеспечить однозначную интерпретацию архитектурных решений и согласованность с рабочими чертежами других разделов.
- Окна изображаются в виде прямоугольников, соответствующих проёмам в стене, с обозначением створок линиями, отражающими конструктивную схему открывания.
- Линии рам и переплётов выполняются сплошными основными (толстыми) линиями. Толщина линии – 0,7–1,0 мм.
- Глухие участки окон не отображают створок, используются только рамочные контуры.
- Фрамуги и поворотные створки обозначаются диагональными линиями под углом, отражающим направление открывания.
- Форточки изображаются отдельными тонкими прямоугольниками внутри основного проёма с аналогичной символикой открывания.
Обозначения окон согласуются с планами и разрезами здания. В фасадах допускается упрощённое отображение при условии однозначной идентификации оконных блоков по спецификациям. В случае нестандартных решений – применение дополнительной выноски с расшифровкой конструкции окна.
- Высота установки подоконника не указывается на фасаде, она задаётся в разрезах.
- Размеры окон на фасаде не подписываются, а берутся из маркировки оконного блока (например, О1, О2) и соответствующей спецификации.
- Все окна одного типа маркируются одинаково независимо от их расположения по фасаду.
При проектировании важно соблюдать масштабность и читаемость. Избыточные детали, не влияющие на архитектурное восприятие, исключаются. Прозрачные участки окон не заштриховываются. В витражных системах допускается отображение расстекловки с уточняющими элементами.
Способы указания размеров оконных проемов на чертежах

Размеры оконных проемов на чертежах указываются в миллиметрах без обозначения единиц измерения, в соответствии с требованиями ГОСТ 21.501–2018. Основные габариты включают ширину, высоту и отметку подоконника от уровня чистого пола. Эти параметры наносятся с использованием размерных линий и выносок, строго перпендикулярно осям стен.
Ширина проема указывается горизонтальной размерной линией, располагаемой над проемом. Высота обозначается вертикальной размерной линией сбоку. Если оконный проем расположен симметрично относительно осей, необходимо указать размеры от осей до краев проема. При наличии нескольких окон в одной стене расстояния между ними также указываются с точностью до миллиметра.
Высота установки подоконника обозначается условной отметкой уровня, чаще всего в виде надписи «отм.0.000» на уровне чистого пола. От этой отметки проставляется размер до низа проема. В многоэтажных зданиях рекомендуется указывать абсолютную отметку подоконника с привязкой к вертикальной системе координат здания.
Если проем имеет нестандартную форму (например, арочную), необходимо указывать не только максимальные размеры, но и параметры криволинейных участков: радиус дуги, высоту подъема арки, ширину между опорами. В таких случаях применяются дополнительные сечения и разрезы.
Для окон, оснащённых откосами или подоконниками, размеры конструктивных элементов не включаются в размер проема. Все дополнительные элементы оформляются на отдельных деталировочных чертежах с собственными размерами и обозначениями.
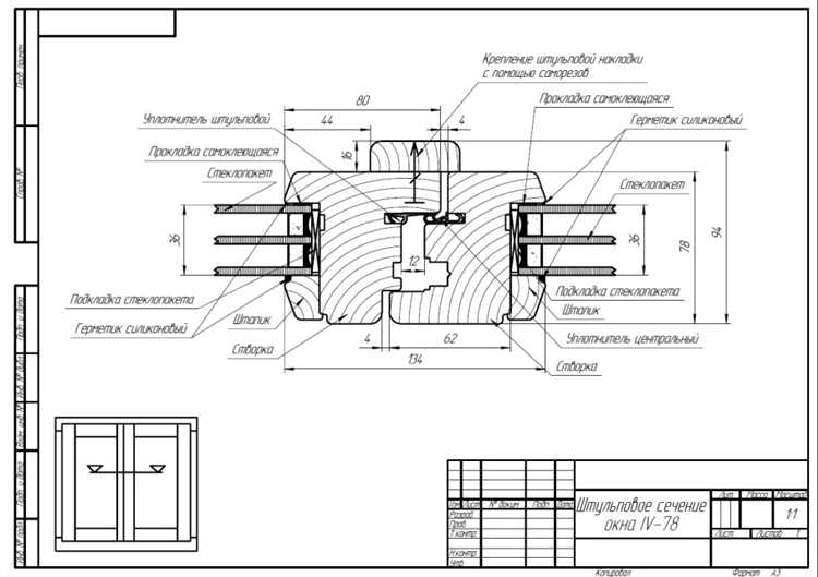
Обозначение стеклопакетов и заполнения проема на рабочей документации

Для точного указания стеклопакетов на чертежах согласно ГОСТ в рабочей документации применяется буквенно-цифровое обозначение, отражающее конструктивные характеристики и состав заполнения проема. Обозначение включает тип стеклопакета, количество камер, толщину стекол и межстекольного пространства.
Структура обозначения стеклопакета формируется следующим образом: маркировка типа стеклопакета (например, СП – стеклопакет), далее указывается количество камер, толщина каждого стекла и ширина дистанционной рамки между ними. Например, СП 2-4-12-4 обозначает двухкамерный стеклопакет с двумя стеклами толщиной 4 мм и шириной камеры 12 мм.
Заполнение проема на чертеже указывается с привязкой к спецификации, где детализируется материал, тип стеклопакета, и дополнительные параметры – например, наличие энергосберегающего покрытия, тонирования, армирования или вентиляционных элементов. Все характеристики отражаются через цифровые индексы и условные обозначения, согласованные с проектной документацией.
При указании заполнения необходимо обязательно указывать позиционный номер в спецификации, чтобы обеспечить однозначную идентификацию в процессе производства и монтажа. Обозначения должны содержать данные о типе стекла (закаленное, триплекс, мультифункциональное), его толщине и технологии обработки.
Для корректного отображения на рабочих чертежах используют стандартизированные условные обозначения и сокращения из ГОСТ 21.501–93, исключая излишние описания и обеспечивая компактность и точность документации. Заполнение проема должно быть однозначно идентифицируемым, что критично для согласования и контроля качества.
Размещение марки окон в экспликации и спецификации элементов
Марка окна в экспликации указывается в графе, предназначенной для обозначения элементов строительных конструкций. Согласно ГОСТ, она должна соответствовать условному обозначению, применённому на чертеже, без сокращений и вариаций. Размещение марки выполняется по порядку следования окон в плане или фасаде, обеспечивая однозначную идентификацию каждого изделия.
В спецификации элементов марка окна располагается в отдельной графе и служит связующим звеном между чертежом и списком изделий. Она должна повторять маркировку из экспликации и чертежа, обеспечивая точное соответствие между позицией и техническими характеристиками окна. При этом маркировка включает цифры и буквы, обозначающие тип конструкции, размер и материал.
Для удобства учета и контроля размеры марки окон в спецификации рекомендуется оформлять с использованием единых обозначений по ГОСТ 21.1101-2013, исключающих неоднозначности. При наличии различных типоразмеров в рамках одной марки допускается добавление индексов или цифровых обозначений, согласованных с общим обозначением марки.
В случае, если окно состоит из нескольких элементов (створок, фрамуг), в спецификации должна быть предусмотрена детализация по каждой составной части с отдельной маркировкой, связанной с общей маркой окна. Это обеспечивает точное указание количества, материалов и спецификации комплектующих.
Порядок размещения марки окон в экспликации и спецификации строго регламентируется: марки идут по порядку увеличения номера позиции, при этом недопустимо дублирование или пропуск маркировочных знаков. Нарушение этой последовательности приводит к ошибкам в учёте и производстве.
Типовые ошибки при обозначении окон и способы их устранения

Ошибка 1. Некорректное указание размеров. Часто размеры окон указываются без учета толщины проема и монтажного зазора. В результате размер, нанесенный на чертеже, не соответствует реальному проему, что приводит к проблемам при изготовлении и установке. Для устранения ошибки необходимо точно фиксировать габариты по внутреннему размеру проема с учетом всех строительных допусков согласно ГОСТ 23166-99.
Ошибка 2. Отсутствие обозначения типа открывания. Нередко на чертежах не указывается, каким образом окно открывается – поворотным, откидным или раздвижным способом. Это снижает точность технической документации и усложняет подбор фурнитуры. Решение – всегда применять стандартные обозначения по ГОСТ 21.501-93, указывая тип открывания с помощью условных графических символов и сокращений.
Ошибка 3. Неправильное использование буквенных и цифровых кодов. Нарушение структуры маркировки, например, пропуск знаков или замена букв, приводит к недопониманию. Для корректного обозначения окна следует строго придерживаться принятых в ГОСТ 23166-99 форматов, где первая буква – тип окна, цифры – размеры, а дополнительные буквы – конструктивные особенности.
Ошибка 4. Отсутствие указания материала рамы. На чертежах не указывают материал – дерево, ПВХ или алюминий, что ведет к ошибкам при изготовлении и эксплуатации. Необходимо добавлять буквенный индекс материала рамы, например «Д» для дерева, «П» – ПВХ, согласно требованиям стандарта.
Ошибка 5. Пренебрежение ориентацией окна на плане. Неотмеченное направление открывания или отсутствие стрелок, показывающих наружу или внутрь, усложняет монтаж и дальнейшую эксплуатацию. Рекомендуется наносить на чертеж стрелки направления открывания и соблюдать унифицированные графические обозначения.
Систематическая проверка и корректировка обозначений по ГОСТ при оформлении чертежей предотвращает ошибки, сокращает время производства и монтажных работ, а также снижает риск несоответствий в проектной документации.
Вопрос-ответ:
Какие основные обозначения окон используются на строительных чертежах согласно ГОСТ?
Согласно ГОСТ, окна на чертежах обозначаются буквенно-цифровым кодом, который включает тип окна, его размеры и особенности конструкции. Обычно указываются высота и ширина в сантиметрах, а также тип открывания (например, глухое, поворотное, поворотно-откидное). Эти обозначения помогают однозначно идентифицировать окно в проекте и избежать ошибок при изготовлении и монтаже.
Как правильно читать обозначения окон на чертежах, если они содержат дополнительные символы и цифры?
Дополнительные символы и цифры в обозначениях могут указывать на специфические характеристики окна: количество створок, материал рам, наличие утепления или стеклопакетов. Например, цифра после буквы может означать количество створок, а символы подчеркивают тип открывания. Чтобы точно понимать, что означает каждый элемент кода, рекомендуется сверяться с приложениями ГОСТ, где подробно расписаны все условные обозначения и их расшифровка.
Почему важно строго придерживаться ГОСТ при обозначении окон на архитектурных чертежах?
Соблюдение ГОСТ при обозначении окон позволяет обеспечить единообразие и понятность документации для всех участников строительства: архитекторов, инженеров, монтажников и поставщиков. Это снижает риск ошибок при изготовлении изделий и ускоряет коммуникацию между сторонами, так как все используют общую систему символов и кодов. В итоге проект реализуется с меньшими затратами времени и ресурсов.
Как изменяются обозначения окон на чертежах при использовании разных типов стеклопакетов?
При применении различных стеклопакетов в обозначениях окон обычно добавляют дополнительные индексы или буквы, указывающие на состав и характеристики стекла. Например, может использоваться индекс, обозначающий двухкамерный или однокамерный стеклопакет, наличие энергосберегающего покрытия или звукоизоляции. Эти данные помогают точно передать свойства окна, что важно для технической документации и дальнейшего контроля качества.
