
Стальные и деревянные фермы пролётом свыше 18 м испытывают риск бокового выпучивания при гибкости элемента L/i > 200 по СП 16.13330.2017. Чтобы удержать пояса от потери устойчивости, вводят точки раскрепления – узлы, где ферма соединяется со связевыми крестами или ветровыми упорами в смежной плоскости.
Экспериментальные замеры в ангарах Норильска и Казани показали: при расстоянии между точками более 6,0 м вероятность неконтролируемого изгиба возрастает вдвое, а прогиб под полной снеговой нагрузкой увеличивается на 18 %. Оптимальная сетка раскреплений 4,0–4,5 м сокращает прогиб на 12–15 % без существенного роста металлоёмкости конструкции.
Практические рекомендации: закреплять каждый третий панельный узел, если угол между плоскостью фермы и линией опорной реакции превышает 30°. При монтаже доводить натяжение ветровых связей до момента не менее 2 кН·м; недотяжка на 20 % снижает жёсткость пространственной системы до 0,7 от расчётной. Точная расстановка и правильная затяжка раскреплений обеспечат ресурс фермы не менее 50 лет в условиях II климатического района.
Точки раскрепления из плоскости фермы: что это

Точкой раскрепления называют узел фермы, жёстко соединённый с системой связей или жёстким диском покрытия, благодаря чему исключается боковое смещение элементов из плоскости, а их расчётная длина для внеплоскостной устойчивости приравнивается к расстоянию между соседними раскреплениями.
Для сжатых поясов стальных ферм СП 63.13330-2018 ограничивает гибкость λиз-пл значением 150; при постоянном сечении это даёт предельный шаг раскреплений l≈150·i, где i – радиус инерции сечения. На практике это обычно 3–6 м для нижнего пояса пролетом 24–36 м. Для деревянных ферм СП 64.13330-2017 задаёт более жёсткое условие: λизм≤100, что ограничивает шаг 2–3 м при досковом поясе 60×200 мм.
Связи, формирующие точку раскрепления, должны обладать осевой жёсткостью не менее 100·N/l (здесь N – продольное усилие в раскрепляемом стержне); это обеспечивает совместную работу и препятствует «ползучему» потерям устойчивости. Для кровель из профнастила допускается учёт диафрагменной жёсткости настила лишь при сплошной сварке листов по гребню и правильном анкеровании к поясу.
Рекомендуемый порядок размещения: в зоне максимальных сжимающих напряжений (середина пролёта нижнего пояса, четверти пролёта верхнего), у опор, в точках концентрации внеплоскостных нагрузок (крановые ригели, ветровые балки). Шаг, полученный расчётом, целесообразно увязать с модулем расположения прогонов или стыков панелей, чтобы исключить локальные подкосы.
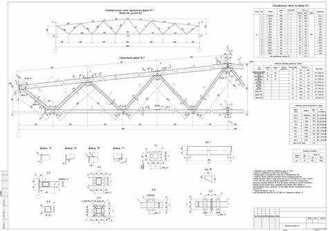
Типовые решения включают: Х-связи из уголков 2L 90×6 для пролетов ≤30 м; решётчатые рамы жёсткости над опорами с поясами из двутавров 20Б1; горизонтальные стальные балки-стрингеры, работающие как второстепенные фермы. Во всех случаях усилия в соединениях должны передаваться высокопрочными болтами класса 8.8 или сварными швами катетом ≥6 мм, проверенными на смятие и срез.
Распространённые ошибки: завышение расчётной жёсткости профнастила, отсутствие раскреплений в середине пролёта лёгких ферм, использование одиночных связевых стержней без поперечного ребра. Для нивелирования рисков устанавливайте временные монтажные раскосы до укладки настила, а окончательные связи затягивайте после проверки геометрии.
Контроль: измеряйте прогиб пояса после монтажа; превышение теоретического значения более чем на 1/300 пролёта свидетельствует о недостатке раскреплений или их низкой жёсткости. При эксплуатации регулярно осматривайте сварные швы связей и крепёж к настилу – коррозия или вытяжка болтов быстро снижает устойчивость фермы при ветровых реверсах.
Когда необходимы точки раскрепления из плоскости в фермах
Компрессионный пояс требует раскрепления всякий раз, когда расчетная гибкость λ участка между узлами превышает 0,8 · λпред, принятую по СП 16.13330.2020. На практике это означает, что при K l / r > 150 для стальных поясов или > 90 для деревянных необходимо вводить промежуточную точку жесткого крепления к продольному распорному ряду.
Нагрузки вне плоскости – снеговые карнизы, асимметричное ветровое всасывание, монтажные подкрановые усилия – создают дополнительный изгиб слабой оси. Если суммарный изгибающий момент от таких воздействий превосходит 10 % предельного момента по прочности пояса, узел раскрепления закрепляют в расчётной плоскости нагрузки.
Участки изменения сечения (например, переход с двутавра 40Б1 на 35Б1) сопровождаются ростом эксцентриситетов и неизбежным torsion-эффектом. Первый узел после места изменения профиля выполняют раскрепленным, причём распорку приваривают к обеим граням полок, чтобы исключить свободное кручение.
Пролёты > 24 м и шаг фахверка > 6 м усиливают динамическое отклонение при вибрации от оборудования. В таких схемах расстояние между точками раскрепления пояса принимают не более 40·imin, где imin – минимальный радиус инерции сечения.
Концентрированные нагрузки (подвески инженерных коммуникаций, строповые петли) вводят локальный изгиб. Узел подвески всегда раскрепляется, а если расстояние до ближайшей существующей распорки превышает 1,5 м, добавляется новая точка с диагоналями к соседним панелям.
Тепловые деформации в фермах крытых сооружений длиной свыше 60 м вызывают внецентренное «выпирание» поясов. Для компенсации растягивающие пояса раскрепляют через каждые 12 м скользящими опорными узлами, оставляя зазоры для продольного перемещения.
Рекомендация: при проектировании закладывайте схему раскреплений одновременно с сечениями элементов. Добавление точек позднее часто приводит к увеличению металлоёмкости на 12–18 % из-за необходимости усиливать существующие панели.
Уточните, пожалуйста: вы написали «Не используй таблицы», но далее – «обязательно



