
Правильная установка смесителя для душа важна не только для эстетики, но и для удобства пользования. Высота, на которой размещён смеситель, играет ключевую роль в комфорте каждого члена семьи, а также в долговечности самого устройства. При этом важно учитывать не только стандартные размеры, но и индивидуальные особенности, такие как рост пользователя и особенности ванной комнаты.
Средняя рекомендуемая высота для установки смесителя – 90-110 см от уровня пола. Эта позиция оптимальна для большинства пользователей. Однако для людей с высоким ростом или детей высоту можно скорректировать. Для взрослых с ростом выше 180 см установка на уровне 110 см обеспечит удобный доступ к регуляторам, а для детей удобно установить смеситель ниже – на уровне 80 см. Это исключит необходимость дополнительных усилий при регулировке воды.
Кроме того, важно учитывать тип душа. Для стационарных душевых головок высота смесителя обычно составляет 100-110 см, в то время как для ручных душей можно варьировать установку в пределах 90-100 см, в зависимости от конструкции и функционала устройства.
При выборе места установки также стоит учитывать высоту стен и расположение других элементов ванной комнаты, таких как полки, зеркала и смежные сантехнические устройства. Компетентно подобранная высота смесителя позволит создать комфортное пространство для ежедневного использования душа и избежать неудобств при эксплуатации.
Как правильно выбрать высоту смесителя для душа в зависимости от роста пользователя

При установке смесителя для душа важно учитывать рост пользователя, чтобы обеспечить максимальный комфорт при использовании. Правильная высота смесителя позволяет избежать неудобств, связанных с неприродными позами при принятии душа.
Для людей с ростом около 170 см стандартная высота установки смесителя составляет 120-130 см от уровня пола. Это оптимальная позиция для большинства пользователей. Однако для высоких людей (от 180 см) смеситель следует устанавливать на высоте 135-145 см, чтобы поток воды был удобен и не приходилось наклоняться. Для людей с низким ростом (менее 160 см) рекомендуется установка смесителя на уровне 110-120 см. Важно, чтобы ручки и рычаги были легко доступны, не требуя лишних усилий для их поворота или регулировки.
Кроме роста, следует учитывать и другие параметры. Если в семье несколько человек с разным ростом, разумно выбрать среднее значение или установить регулируемую стойку для смесителя, которая позволит адаптировать высоту под каждого пользователя. Также, если в ванной комнате есть дети, стоит подумать о дополнительных элементах, таких как низко расположенные рычаги или возможность легко достать до подачи воды.
Кроме того, смеситель должен быть установлен так, чтобы струя воды попадала прямо на тело пользователя, обеспечивая комфортную температуру и давление. Установка смесителя выше уровня головы может привести к неудобствам, так как это ограничивает возможности регулировки угла наклона струи воды.
Рекомендации по установке смесителя для душа для семей с детьми

Блокировка от перегрева – обязательная функция смесителя. Устройство должно быть оснащено термостатом с функцией ограничения максимальной температуры воды (обычно до 38-40°C). Это исключает риск ожогов, что особенно важно для маленьких детей, которые могут не осознавать опасности горячей воды.
Смесители с защитой от случайного включения помогают предотвратить нежелательные происшествия. Использование кнопки для активации водяного потока или защитных механизмов, которые требуют дополнительного усилия для включения, делает смеситель безопасным для малышей.
Удобство регулировки температуры также играет важную роль. Важно, чтобы дети могли легко регулировать не только напор воды, но и её температуру. Лучше выбирать смесители с одной ручкой, которая позволяет плавно изменять параметры воды.
Дополнительной рекомендацией является установка поворотного смесителя, который позволяет контролировать направление потока воды, не выходя из зоны досягаемости. Важно также, чтобы смеситель был сделан из материалов, не нагревающихся при контакте с горячей водой, чтобы избежать ожогов при случайном прикосновении.
Для повышения безопасности рекомендуется использовать душевые панели, которые снабжены встроенной системой управления температурой, а также жестким ограничителем напора воды, что исключает возможность слишком сильного потока воды для ребенка.
Какая высота смесителя будет удобной для людей с ограниченными возможностями
Для пользователей, передвигающихся в инвалидных колясках, рекомендуется устанавливать смеситель на уровне, доступном при сидении. Оптимальная высота смесителя для таких людей – от 80 до 100 см от уровня пола. Это позволит избежать необходимости в наклонах или поднимании рук, что снизит физическую нагрузку и предотвратит возможные травмы.
Для людей с ограниченной подвижностью, но способных стоять или использовать трость, оптимальная высота смесителя будет колебаться в пределах 100-120 см. Такой диапазон позволяет без особых усилий регулировать температуру и напор воды, стоя в душевой кабине.
- Высота от 80 до 100 см: для людей в инвалидных колясках.
- Высота от 100 до 120 см: для людей с ограниченной подвижностью, использующих трость или ходунки.
- Для пользователей, стоящих на ногах: высота около 120 см будет удобной и безопасной.
Важным фактором является также возможность регулировки смесителя. Лучше выбирать модели с рычажным механизмом или с сенсорными панелями, которые позволяют легко настроить температуру и напор воды без необходимости использовать большие усилия. Оптимально, если смеситель можно регулировать одной рукой, чтобы уменьшить нагрузку на другие части тела.
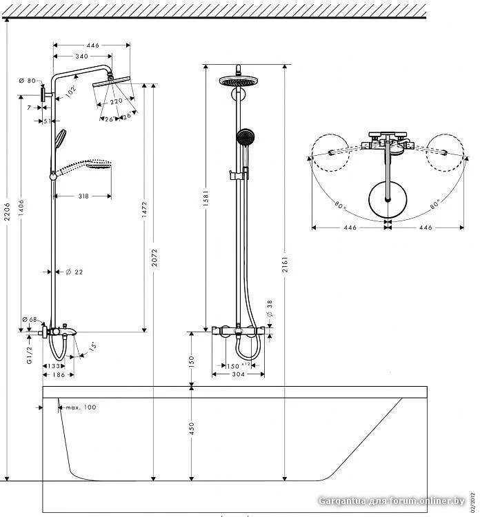
Кроме того, не стоит забывать о длине шланга душа. Для людей с ограниченными возможностями длина шланга должна быть достаточной, чтобы достичь различных частей тела без необходимости сильно наклоняться или тянуться. Стандартная длина шланга – 1,5-2 метра – подходит большинству пользователей.
Проблемы с установкой смесителя на нестандартной высоте

При установке смесителя для душа на нестандартной высоте возникают несколько важных проблем, которые могут повлиять на комфорт использования и функциональность сантехнического оборудования.
Одной из основных трудностей является невозможность добиться удобного положения для пользователей разного роста. Если смеситель установлен слишком высоко или низко, то для регулировки температуры и напора воды придется делать неудобные движения, что особенно актуально для людей с ограниченными возможностями или детей.
Кроме того, установка смесителя на слишком низкой высоте может привести к неприятным последствиям, таким как затопление ванной комнаты из-за неправильного угла наклона струи воды. В этом случае вода будет вытекать за пределы поддона, а не попадать на тело, создавая неудобства при принятии душа.
При выборе нестандартной высоты необходимо учитывать также длину шланга и угол наклона лейки. В случае неправильной установки шланг может быть натянут, что ограничит мобильность и сделает использование неудобным.
Кроме того, существует вероятность повреждения трубопроводной системы. Установка смесителя на высоте, не соответствующей стандартам, может потребовать дополнительных затрат на переработку системы водоснабжения и корректировку разводки труб. Это добавляет сложности и увеличивает стоимость работ.
Важным фактором является также внешний вид ванной комнаты. Нестандартная высота смесителя может нарушить гармонию дизайна, особенно если сантехника и аксессуары не согласованы по высоте. В некоторых случаях, такие установки могут выглядеть нелепо или вызывать визуальный диссонанс, что снижает эстетическую ценность помещения.
Чтобы избежать этих проблем, важно заранее определить оптимальную высоту установки смесителя, учитывая средний рост всех членов семьи, особенности интерьера и технические параметры. В большинстве случаев смеситель для душа устанавливают на высоте 100-120 см от уровня поддона, что подходит для большинства пользователей.
Как учитывается тип душевой кабины при выборе высоты смесителя
При выборе высоты смесителя для душа важно учитывать тип душевой кабины, так как от этого зависит удобство эксплуатации и функциональность. Для каждого типа кабины существует оптимальное решение по размещению смесителя.
Открытые душевые уголки часто требуют установки смесителя на более высокую позицию, так как вода может распределяться по пространству не так эффективно, как в закрытых конструкциях. Рекомендуется располагать смеситель на высоте от 100 до 120 см от пола, чтобы избежать излишних брызг и обеспечить равномерное распределение воды.
Закрытые душевые кабины с высоким потолком могут позволить установить смеситель на уровне 90–100 см, так как в таких кабинах пространство ограничено, а высокая установка может улучшить комфорт, не создавая при этом неудобств при пользовании.
Радиусные кабины с небольшими размерами требуют более точного подхода. Здесь высота смесителя должна обеспечивать удобный доступ к воде, но не перегружать пространство. Оптимальная высота для таких моделей – 95–105 см.
При установке смесителя в любых душевых важно помнить, что оптимальная высота зависит от роста пользователей. Для высоких людей требуется смеситель, установленный немного выше, чем для людей среднего роста. Это поможет избежать дискомфорта при регулировке температуры воды.
Совет: В моделях с термостатическими смесителями важно расположить его на такой высоте, чтобы регулировка температуры была удобной, не требуя наклонов или дополнительных усилий. В таких случаях высота смесителя на уровне 100 см является универсальным вариантом для большинства пользователей.
Как изменить высоту смесителя после установки

Если смеситель для душа установлен, но его высота неудобна, изменить её можно, но этот процесс требует аккуратности и соблюдения определённых шагов.
1. Оценка текущего положения
Перед началом работы важно точно оценить, насколько текущая высота смесителя отклоняется от желаемой. Обычно смеситель для душа должен располагаться на уровне глаз или немного ниже для удобства использования. Если он установлен слишком высоко или низко, потребуется корректировка.
2. Подготовка инструментов
Для изменения высоты потребуется: разводной ключ, уровень, герметик (если необходимо), возможно, новый монтажный комплект для смесителя. Также потребуется отключить водоснабжение, чтобы избежать протечек во время работы.
3. Разборка старой установки
В первую очередь необходимо аккуратно отсоединить смеситель от водопроводных труб. В зависимости от типа крепления смеситель может быть закреплён винтами или гайками. Используйте разводной ключ для снятия креплений, после чего осторожно извлеките смеситель.
4. Установка нового монтажного комплекта
Если смеситель установлен на кронштейнах или штанге, нужно либо заменить её, либо переставить на новую высоту. Для этого отмерьте нужное расстояние от пола и отметьте место крепления. Для точности используйте уровень. После этого закрепите кронштейн или штангу, проверив, чтобы они были установлены ровно.
5. Подключение к трубам
После установки кронштейна или штанги необходимо подключить водопроводные трубы к смесителю. Используйте герметик для уплотнения соединений и убедитесь в отсутствии течей. Закрутите все соединения, но не перетягивайте, чтобы не повредить резьбу.
6. Проверка работы
После завершения установки включите воду и проверьте, как работает смеситель на новой высоте. Убедитесь в отсутствии протечек и правильной подаче воды. В случае обнаружения проблем, возможно, потребуется повторно отрегулировать крепление или соединения.
Изменение высоты смесителя – это вполне выполнимая задача, но она требует точности и внимания. Если вы не уверены в своих силах, лучше обратиться к специалисту, чтобы избежать возможных проблем с водоснабжением.
Вопрос-ответ:
Какая высота смесителя для душа считается оптимальной для комфортного использования?
Оптимальная высота смесителя для душа обычно зависит от роста человека, но в среднем для стандартного расположения смесителя рекомендуется установка на высоте 100–120 см от уровня пола. Это позволяет комфортно пользоваться душем как для взрослого, так и для детей. Если смеситель используется в ванных комнатах с более высоким потолком, высоту можно немного увеличить. Также стоит учитывать, что для душевых кабин с регулируемым тросом или штангой высота установки смесителя может быть более гибкой.
Какие факторы нужно учитывать при выборе высоты установки смесителя для душа?
При выборе высоты установки смесителя стоит учесть несколько факторов: рост основных пользователей, тип душевой системы (например, с фиксированной штангой или гибким шлангом), а также особенности ванной комнаты. Если в семье есть дети, смеситель можно расположить немного ниже, чтобы им было удобнее. Важно, чтобы смеситель был в пределах досягаемости для всех пользователей, чтобы не пришлось тянуться за ним или неудобно наклоняться. Кроме того, стоит учитывать, что высота установки может варьироваться в зависимости от стиля и типа сантехники, например, для угловых кабин смеситель может располагаться немного выше.
Как установить смеситель для душа на правильной высоте самостоятельно?
Для того чтобы установить смеситель на правильной высоте, необходимо выполнить несколько шагов. Сначала определите оптимальную высоту, исходя из роста людей, которые будут пользоваться душем. Для большинства людей идеальной считается высота 100–120 см от пола. Затем закрепите монтажную планку или крепежную систему на стене, удостоверившись, что она расположена по уровню. Установите смеситель, подключив его к водопроводным трубам. Не забудьте проверить герметичность соединений, чтобы избежать протечек. Если вы не уверены в своих силах, лучше обратиться к специалисту, чтобы избежать ошибок при установке.
Что делать, если смеситель для душа установлен слишком высоко или низко?
Если смеситель для душа установлен неправильно, например, слишком высоко или низко, можно попробовать скорректировать его расположение. В случае слишком высокой установки, вы можете заменить штангу или использовать гибкий шланг, чтобы сделать душ более удобным. Если смеситель расположен слишком низко, для исправления проблемы потребуется перезамонтаж системы с учетом оптимальной высоты, что может потребовать более серьезных усилий и врезки труб. Важно правильно оценить, кто будет пользоваться душем, чтобы выбрать комфортную высоту. Если вы не уверены, лучше вызвать сантехника для корректировки установки.
Как правильно выбрать смеситель для душа, чтобы не ошибиться с высотой установки?
При выборе смесителя для душа важно учитывать не только его внешний вид и функциональность, но и удобство установки. Если вы хотите избежать ошибок с высотой, обратите внимание на модели с регулируемой высотой штанги или гибким шлангом. Это позволит настроить смеситель на подходящую высоту после установки. Также стоит заранее продумать, какой тип душа будет использован — если планируется душ с тропическим дождем или встроенная система, высота установки может быть несколько выше, чем для обычного душа. Проконсультировавшись с профессионалом или специалистом по сантехнике, вы сможете точно подобрать нужную модель и правильно установить ее.
Какая высота установки смесителя для душа считается оптимальной для удобства использования?
Оптимальная высота смесителя обычно находится в пределах 90–110 см от пола. Такая высота позволяет легко дотягиваться до ручек регулировки воды без необходимости наклоняться или тянуться вверх, что особенно удобно для людей разного роста. При этом важно учитывать особенности конкретной ванны или душевой кабины, а также рост пользователей, чтобы смеситель был доступен всем членам семьи.
Как правильно выбрать высоту смесителя для душа в квартире с низкими потолками?
Если потолки низкие, стоит ориентироваться на комфортное расположение смесителя так, чтобы его ручки были удобны в использовании и не мешали при приеме душа. Обычно это высота около 90 см от пола. Важно не устанавливать смеситель слишком высоко, чтобы не создавать неудобств при регулировке температуры и напора воды. Также стоит учесть высоту душевой лейки и места, где будет крепиться шланг, чтобы они не мешали движениям во время принятия душа.
