
Шариковые направляющие – это механизм, обеспечивающий плавное и бесшумное выдвижение ящиков за счёт перемещения шариков между телескопическими секциями. В отличие от роликовых моделей, шариковые направляющие выдерживают нагрузку до 45–60 кг, обладают высокой точностью хода и устойчивостью к перекосу при полном выдвижении.
Конструкция направляющих включает две или три металлические секции, соединённые шарикоподшипниками. Внутри каждой секции размещены стальные шарики, которые перемещаются в специальных каналах, снижая трение и обеспечивая равномерное движение. Трёхсекционные модели позволяют выдвигать ящик на 100% от глубины, что особенно важно для систем хранения в кухнях, мастерских и производственных помещениях.
Рекомендуем выбирать направляющие из холоднокатаной стали с гальваническим покрытием, обеспечивающим защиту от коррозии. При установке важно учитывать допустимую нагрузку, высоту корпуса ящика и тип крепления. Направляющие устанавливаются строго параллельно, с допуском по отклонению не более 0,2 мм на всю длину, иначе возникает риск заклинивания механизма.
Для долговечной и бесшумной работы рекомендуется использовать изделия с резиновыми амортизаторами и системой плавного закрывания. Эти элементы не только улучшают пользовательский опыт, но и снижают нагрузку на корпус мебели при частом использовании.
Разновидности шариковых направляющих и их отличия

Шариковые направляющие подразделяются на телескопические, частичного и полного выдвижения, а также скрытого монтажа. Каждый тип отличается конструкцией, нагрузочной способностью и сферой применения.
Телескопические направляющие полного выдвижения состоят из трёх секций. Они обеспечивают доступ ко всему ящику и используются в мебели, где важно полностью извлекать содержимое – например, в кухонных шкафах. Такие модели выдерживают нагрузку до 45–60 кг, оснащаются системой фиксации и часто – доводчиком.
Направляющие частичного выдвижения состоят из двух секций и обеспечивают доступ к 70–80% глубины ящика. Их применяют в стандартных офисных и бытовых ящиках. Допустимая нагрузка – до 25–30 кг. Главное преимущество – простота установки и низкая стоимость.
Направляющие скрытого монтажа монтируются под днище ящика. Они незаметны в собранной мебели и используются в дизайнерских решениях. Выдерживают нагрузки до 30–50 кг, имеют встроенные доводчики и систему Push-to-Open. Установка требует высокой точности разметки и сверления.
Для тяжёлых условий применяются усиленные направляющие с увеличенным сечением и толщиной металла. Они рассчитаны на нагрузку от 70 до 150 кг, используются в ящиках с инструментом, промышленной мебели и складских системах. Конструкция включает шариковые дорожки с усиленной фиксацией и увеличенный ресурс скольжения.
Выбор направляющих зависит от массы содержимого, частоты эксплуатации, требуемой степени выдвижения и эстетических требований к конструкции. Для точного подбора важно учитывать глубину ящика, предполагаемую нагрузку и условия монтажа.
Как определить подходящую длину направляющих
Длина шариковых направляющих должна соответствовать глубине ящика и габаритам корпуса. Измерьте внутреннюю глубину шкафа от задней стенки до кромки передней стойки. Из этого значения вычтите не менее 10 мм, чтобы избежать упора направляющих в заднюю стенку при полном выдвижении.
Стандартные длины направляющих – от 250 до 700 мм с шагом 50 мм. Выбирайте ближайшую меньшую длину. Например, при глубине корпуса 470 мм оптимальной будет модель 450 мм. Использование большей длины приведёт к невозможности установки или повреждению конструкции.
Если ящик изготовлен с зазором между задней стенкой и краем корпуса, измерение выполняется по самому ящику. В этом случае длина направляющих должна совпадать с длиной боковины, но не превышать её.
Для установки полного выдвижения необходимо, чтобы длина направляющих обеспечивала полное открытие без зазора между ящиком и фасадом корпуса. Учтите: некоторые модели требуют технический зазор на торцах – до 5 мм с каждой стороны.
При выборе учитывайте тип монтажа: боковые направляющие монтируются вдоль стенок ящика и корпуса, а нижние – под днищем. В последнем случае длина соответствует длине дна ящика.
Устройство телескопического механизма шариковых направляющих

Телескопический механизм шариковых направляющих состоит из нескольких подвижных секций, которые последовательно выдвигаются друг из друга, обеспечивая полный или частичный выкат ящика. Обычно конструкция включает три части: внешнюю (крепится к корпусу мебели), среднюю (промежуточное звено) и внутреннюю (соединяется с ящиком).
Основу движения составляют стальные шарики, размещённые в прецизионно обработанных дорожках качения. Они располагаются между секциями и обеспечивают плавность и стабильность хода при нагрузках до 45–60 кг, в зависимости от модели. Важное значение имеет жёсткость направляющих: толщина стали корпуса варьируется от 1 до 1,5 мм, что влияет на устойчивость к изгибу при полном выдвижении.
Каждая секция телескопического механизма снабжена ограничителями хода и стопорами. Они предотвращают случайное выдергивание направляющей из корпуса. При наличии доводчика механизм дополняется амортизирующим узлом с пружиной и масляным демпфером, который мягко затягивает ящик в закрытое положение.
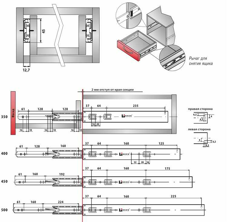
Монтажная геометрия направляющих строго фиксирована: установка производится строго параллельно, с зазором между направляющими, равным ширине ящика плюс дважды ширина направляющей (обычно 12,7 мм с каждой стороны). Нарушение параллельности вызывает закусывание или люфт механизма.
Рекомендуется использовать модели с защитой от пыли и влагостойким покрытием, особенно в кухонной мебели и ванных комнатах. Для повышения ресурса службы следует избегать перегрузок и регулярно очищать шариковые дорожки от загрязнений.
Материалы изготовления и их влияние на срок службы

Наиболее распространённый материал для шариковых направляющих – сталь с цинковым или никелевым покрытием. Горячее цинкование защищает от коррозии, но при интенсивной нагрузке может стираться, особенно при высокой влажности. Никелевое покрытие более устойчиво к агрессивной среде и истиранию, что критично для промышленных и кухонных условий.
Нержавеющая сталь применяется в условиях повышенной влажности или контакта с химическими веществами. Её использование оправдано в медучреждениях, лабораториях и морской промышленности. Она дороже, но обеспечивает срок службы в 2–3 раза выше по сравнению с обычной сталью.
Алюминиевые направляющие встречаются редко из-за низкой прочности и склонности к деформации при высокой нагрузке. Их применение оправдано только в лёгких мебельных конструкциях, где важен вес, а не долговечность.
Пластиковые элементы (чаще – ограничители хода или держатели) должны быть из полиамида или ABS-пластика. Хрупкий полистирол быстро изнашивается и приводит к люфту направляющей уже через 6–12 месяцев эксплуатации.
Оптимальный выбор – стальные направляющие с никелевым покрытием и пластиковыми вставками из ударопрочного полиамида. Такие комбинации обеспечивают плавный ход, устойчивость к нагрузке до 45 кг и срок службы до 10 лет при ежедневной эксплуатации.
Способы крепления направляющих к корпусу и ящику
Крепление саморезами – основной способ фиксации шариковых направляющих. Используются саморезы с потайной или полупотайной головкой диаметром 3,5–4 мм. Длина подбирается в зависимости от толщины материала, обычно 12–16 мм для корпуса и 16–20 мм для ящика. Отверстия в направляющих заранее предусмотрены производителем и соответствуют стандартным размерам крепежа.
Фиксация через удлинённые монтажные отверстия позволяет точно выставить положение направляющих по горизонтали и вертикали. После предварительной фиксации саморезами производится регулировка, затем элементы окончательно закрепляются. Это критически важно для бесшумного и плавного хода ящика.
Установка с использованием шаблонов применяется при серийной сборке. Шаблон обеспечивает идентичное размещение направляющих на всех корпусах и ящиках, минимизируя отклонения. Особенно полезен при установке телескопических моделей с большим выдвижением.
Дополнительная фиксация на клей применяется в редких случаях, например, при установке в ДСП низкой плотности или при повреждении посадочных мест. Используются ПВА или полиуретановые составы. Клей усиливает удержание, но не заменяет механическое крепление.
Крепление к металлическим ящикам производится заклепками или винтами с гайкой. Это обеспечивает прочную фиксацию, особенно при высокой нагрузке. Важно использовать плоские шайбы для равномерного распределения давления.
Рекомендация: при установке направляющих соблюдать параллельность и симметрию по отношению к краям корпуса и боковинам ящика. Небольшое отклонение даже на 1–2 мм приводит к заеданиям и преждевременному износу.
Ход выдвижения: частичный, полный и сверхвыдвижной
Ход выдвижения определяет, насколько далеко выдвигается ящик на шариковых направляющих. Существует три основных типа: частичный, полный и сверхвыдвижной ход.
Частичный ход обеспечивает выдвижение ящика примерно на 50-70% его длины. Такой тип подходит для мебели, где не требуется полный доступ к содержимому. Частичный ход применяется в офисных тумбах, кухонных шкафах с ограниченным пространством. Преимущество – повышенная жесткость и надежность направляющих при невысоких нагрузках.
Полный ход позволяет выдвинуть ящик на 90-100% длины, обеспечивая полный доступ к содержимому. Используется в стандартных кухонных и мебельных системах, где важна максимальная функциональность. Направляющие с полным ходом имеют более сложную конструкцию, включающую дополнительный ряд шариков для стабильности и плавности движения.
Сверхвыдвижной ход обеспечивает выдвижение ящика на 100% и более, вплоть до 110-120% длины корпуса. Это необходимо в системах с глубокими ящиками или при использовании в профессиональной мебели, например, в лабораториях или мастерских, где важен полный обзор и доступ к задней части ящика. Конструкция таких направляющих содержит усиленные элементы и дополнительные механизмы фиксации для предотвращения выпадения.
Выбор типа хода должен основываться на назначении мебели, условиях эксплуатации и требуемом доступе к содержимому. Для бытового использования чаще всего оптимален полный ход, обеспечивающий баланс удобства и надежности. Сверхвыдвижные направляющие требуют аккуратного монтажа и регулярного обслуживания, так как их конструкция сложнее и подвержена повышенным нагрузкам.
Технические особенности направляющих с доводчиком и Push-to-Open

Направляющие с доводчиком обеспечивают плавное и бесшумное закрывание ящиков за счет встроенного гидравлического или газового амортизатора. Основные технические параметры включают:
- Давление амортизатора: 20–40 Н, что гарантирует мягкое замедление движения при закрытии.
- Диапазон рабочей температуры: от -10 до +60 °C, что позволяет использовать направляющие в различных климатических условиях.
- Угол срабатывания доводчика: обычно 15–20°, при котором активируется механизм замедления.
- Ресурс работы: не менее 50 000 циклов открывания-закрывания без потери функциональности.
В конструкцию интегрирована система демпфирования, предотвращающая ударное закрытие и износ корпуса ящика.
Push-to-Open направляющие оснащены пружинным или магнитным механизмом, позволяющим открыть ящик нажатием без ручек. Ключевые характеристики:
- Сила нажатия для срабатывания: 3–5 Н, обеспечивающая удобство и точность.
- Максимальная нагрузка: до 25 кг, что подходит для большинства мебельных изделий.
- Механизм возврата: возврат ящика в закрытое положение осуществляется автоматически благодаря встроенной пружине.
- Совместимость: работают с направляющими глубиной от 250 мм, обеспечивая стабильное удержание и ход.
Рекомендуется выбирать модели с регулируемой силой срабатывания и доводчиком для адаптации под вес и размеры ящика. Для оптимального монтажа необходима точная установка креплений с допуском не более 1 мм, что влияет на плавность работы и долговечность.
Распространённые ошибки при установке и методы их устранения

Ошибки при монтаже шариковых направляющих чаще всего связаны с неправильной разметкой, несоблюдением технологических зазоров и некорректным креплением элементов. Они приводят к заеданию, люфтам и сокращению срока службы ящиков.
- Неправильная параллельность направляющих. Если направляющие установлены под углом, ящик будет заедать или перекосится. Для устранения используйте уровень и угольник при разметке. Контролируйте параллельность с помощью линейки по всей длине направляющей.
- Несоблюдение зазоров между направляющей и стенкой корпуса. Стандартный зазор составляет 2–3 мм с каждой стороны. Его уменьшение приводит к трению и заеданию, увеличение – к люфтам. При монтаже ориентируйтесь на техническую документацию производителя и используйте шаблоны для точной разметки.
- Крепление направляющих только в начале и в конце. Это вызывает деформацию при нагрузке. Рекомендуется фиксировать направляющие минимум в трёх точках равномерно по длине, используя винты с подходящей длиной и диаметром.
- Использование неподходящих крепежных элементов. Слишком длинные или короткие винты могут повредить направляющую или не обеспечить надёжную фиксацию. Применяйте шурупы, рекомендованные производителем, и проверяйте их совместимость с материалом корпуса.
- Отсутствие смазки или применение неподходящих смазочных материалов. Это приводит к шуму и повышенному износу. Используйте силиконовые или литиевые смазки, предназначенные для шариковых механизмов, и наносите их согласно инструкции.
- Игнорирование контроля правильности хода после установки. После монтажа необходимо проверить плавность выдвижения и отсутствие люфтов. При обнаружении проблем проведите корректировку положения направляющих, регулируя крепежные винты.
Вопрос-ответ:
Как устроены шариковые направляющие для ящиков?
Шариковые направляющие состоят из двух основных элементов — подвижной и неподвижной частей, которые соединяются между собой с помощью металлических шариков. Эти шарики обеспечивают плавное скольжение направляющих при выдвижении и задвижении ящика. Конструкция обычно включает корпус, направляющие рельсы и шарикоподшипники, расположенные в специальных канавках для равномерного распределения нагрузки.
Для чего используются шариковые направляющие в мебели?
Основная задача шариковых направляющих — обеспечить удобное и плавное движение ящиков. Они позволяют ящикам легко выдвигаться и задвигаться без заеданий и скрипа, а также выдерживают значительные нагрузки, что повышает долговечность мебели. Кроме того, такие направляющие часто оснащаются функциями полного выдвижения и плавного закрывания.
В чем преимущества шариковых направляющих по сравнению с другими типами направляющих?
Шариковые направляющие отличаются высокой прочностью и плавностью хода, что обеспечивает комфорт в использовании мебели. Они выдерживают большие нагрузки, не деформируются и имеют длительный срок службы. В отличие от простых металлических или роликовых направляющих, шариковые обеспечивают минимальный уровень шума и более точное направление движения ящика.
Какие материалы используются при производстве шариковых направляющих?
Основные компоненты направляющих изготавливаются из стали, которая может иметь дополнительное покрытие для защиты от коррозии. Шарики обычно делают из нержавеющей стали или хромированной стали, что увеличивает их износостойкость. В некоторых случаях для уменьшения трения применяют специальные смазки или покрытия с низким коэффициентом трения.
Как правильно выбрать шариковые направляющие для кухонного или офисного шкафа?
При выборе направляющих важно учитывать размер и вес выдвижного ящика, а также условия эксплуатации. Для тяжелых и больших ящиков лучше подойдут направляющие с высокой грузоподъемностью и полным выдвижением. Также стоит обратить внимание на качество материалов и наличие защиты от коррозии, особенно для кухни, где возможна повышенная влажность. Установка направляющих должна быть выполнена точно по инструкции, чтобы обеспечить их правильную работу.
Как устроены шариковые направляющие для ящиков и из каких основных частей они состоят?
Шариковые направляющие представляют собой конструкцию из двух металлических профилей, скользящих друг относительно друга с помощью шариков, расположенных между ними. Основными элементами служат направляющие рельсы, металлические шарики и пластиковые или металлические держатели для шариков, которые обеспечивают их равномерное распределение и предотвращают выпадение. Такая система позволяет плавно и бесшумно выдвигать ящик, а также выдерживать значительную нагрузку за счёт равномерного распределения веса по всей длине направляющей.
