
ВРУ 0 4 кв – это вводно-распределительное устройство, предназначенное для приема и распределения электроэнергии напряжением 0,4 киловольта. Такое устройство служит ключевым элементом в системах электрического питания зданий и промышленных объектов, обеспечивая надежное подключение к электросети и защиту от перегрузок и коротких замыканий.
Конструкция ВРУ 0 4 кв обычно включает в себя автоматические выключатели, силовые и контрольные кабели, счетчики электроэнергии, а также различные коммутационные и защитные аппараты. В зависимости от назначения, в составе устройства могут применяться устройства учета и контроля параметров электросети, что позволяет повысить безопасность и эффективность эксплуатации электроустановки.
Принцип работы ВРУ базируется на контроле подачи электроэнергии от источника к потребителям через распределительные линии. Устройство автоматически отключает питание при возникновении аварийных ситуаций, предотвращая повреждение оборудования и снижая риск возгорания. При проектировании и монтаже ВРУ 0 4 кв важно строго соблюдать нормы ПУЭ и ГОСТ, чтобы гарантировать безопасность и долговечность системы.
Назначение ВРУ 0,4 кВ в электрических сетях
Вводно-распределительное устройство (ВРУ) 0,4 кВ предназначено для приема, учета и распределения электроэнергии в низковольтных сетях до 400 В. Основная функция ВРУ – обеспечить надежное подключение потребителей к электрической системе с защитой от перегрузок и коротких замыканий.
ВРУ 0,4 кВ выполняет следующие задачи:
1. Организация ввода электроэнергии от трансформаторных подстанций или сетей распределения с напряжением 0,4 кВ.
2. Разделение и распределение электроэнергии по отдельным цепям с установкой защитных аппаратов (автоматических выключателей, УЗО, предохранителей) для контроля и безопасности.
3. Мониторинг и учет потребляемой электроэнергии через счетчики, встроенные в конструкцию ВРУ, что важно для коммерческого учета и анализа энергопотребления.
4. Обеспечение селективной защиты, позволяющей отключить только поврежденный участок сети без обесточивания всей системы.
5. Защита оборудования и персонала от аварийных ситуаций: перегрузок, замыканий, утечек тока.
Рекомендуется выбирать ВРУ с учетом максимальной нагрузки, типа и количества подключаемых потребителей, а также требуемого уровня защиты. Для жилых и административных зданий обычно используют ВРУ с автоматическими выключателями на ток 63–125 А и дифференциальной защитой. В промышленности нормы требуют применения устройств с большей степенью защиты и расширенной функциональностью, включая системы мониторинга и дистанционного управления.
Монтаж ВРУ следует выполнять с соблюдением ПУЭ (Правил устройства электроустановок) и технических условий энергоснабжающей организации. Особое внимание уделяется правильному выбору сечения проводников, установке заземляющих устройств и соблюдению требований по пожарной безопасности.
Использование ВРУ 0,4 кВ обеспечивает стабильную работу электроустановок, снижает риск аварий и сокращает время восстановления электроснабжения в случае неисправностей.
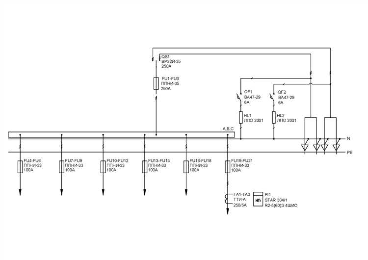
Конструкция и основные элементы ВРУ 0 4 кв

ВРУ 0,4 кВ представляет собой комплектное распределительное устройство низкого напряжения, предназначенное для приема, распределения и защиты электрической энергии в сетях напряжением 400 В.
- Корпус – металлический шкаф или конструкция из листовой стали с порошковым покрытием, обеспечивающая защиту от пыли и влаги, степень защиты не ниже IP31 или IP54 в зависимости от условий эксплуатации.
- Вводной автоматический выключатель – устройство для включения и отключения питания, а также для защиты от перегрузок и коротких замыканий. Обычно выбирается на ток, соответствующий максимальной нагрузке и характеристикам питающей сети.
- Шины распределительные – медные или алюминиевые токопроводящие элементы, по которым распределяется ток на отходящие линии. Толщина и сечение шин рассчитываются по максимальному токопотреблению, обеспечивая минимальное падение напряжения.
- Отходящие автоматические выключатели или выключатели нагрузки – защищают отдельные потребители или группы потребителей, подбираются по току и характеристикам нагрузки.
- Устройства защитного отключения (УЗО) – используются для защиты от токов утечки, предотвращая поражение электрическим током и пожар.
- Контрольные и измерительные приборы – амперметры, вольтметры, индикаторы состояния, счетчики электроэнергии для контроля параметров электросети.
- Заземляющая шина – обеспечивает надежное соединение с защитным заземлением, обязательна для безопасности и правильной работы защитных устройств.
- Клеммные колодки – используются для удобного подключения и распределения проводников, упрощают обслуживание и проверку.
Монтаж ВРУ требует точного соблюдения норм ПУЭ и ГОСТ, правильного выбора сечения проводников и устройств защиты для обеспечения безопасности и надежности электроснабжения.
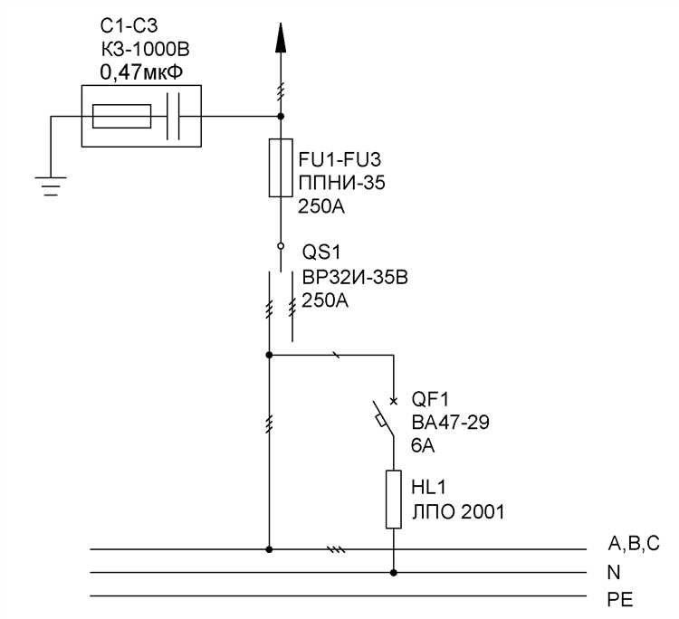
Как подключается ВРУ 0 4 кв к электросети
ВРУ 0,4 кВ подключается к электросети через вводные кабели или шины, исходящие от распределительного щита или трансформаторной подстанции. Для подключения используется трехфазный кабель с сечением, рассчитанным на максимальную нагрузку, обычно не менее 16 мм² для жил из меди.
На вводе ВРУ устанавливаются автоматические выключатели или предохранители в соответствии с проектом и нормативами ПУЭ. ВРУ обязательно оборудуется устройствами защитного отключения (УЗО) и заземлением для обеспечения безопасности эксплуатации.
Подключение начинается с крепления вводных кабелей к шинам или клеммам ВРУ с использованием болтовых соединений, обеспечивающих надежный контакт. Контакты должны быть тщательно затянуты моментом, указанным производителем, чтобы исключить перегрев и искрение.
Все работы проводят при отключенном напряжении. Перед включением проводится проверка сопротивления изоляции кабелей и исправности защитных устройств. После монтажа выполняется проверка фазировки и симметрии напряжений.
Рекомендуется использовать кабели с дополнительной изоляцией и маркировкой для облегчения обслуживания и последующего ремонта. При прокладке кабелей следует избегать пересечения с трубопроводами и системами вентиляции для снижения риска повреждений.
Принцип работы и управление ВРУ 0 4 кв

Вводно-распределительное устройство (ВРУ) 0,4 кВ обеспечивает подачу и распределение электроэнергии на низковольтном уровне в промышленных, коммерческих и жилых объектах. Его основная задача – надежное подключение источника питания к потребителям с защитой и контролем параметров сети.
ВРУ 0,4 кВ состоит из комплектующих: автоматических выключателей, силовых и управляющих шин, измерительных приборов и средств защиты. Управление устройством реализовано через секционные и групповые выключатели, позволяющие оперативно включать или отключать определённые участки нагрузки без отключения всего объекта.
Работа ВРУ строится на контроле токов и напряжений. Автоматические выключатели отключают цепь при перегрузках, коротких замыканиях или аварийных условиях, что предотвращает повреждение оборудования и возгорания. Для мониторинга применяются амперметры, вольтметры и реле защиты, которые сигнализируют о нарушениях и инициируют отключение.
Управление ВРУ может быть как ручным, так и дистанционным с помощью ПЛК или SCADA-систем, что повышает скорость реагирования и позволяет интегрировать ВРУ в автоматизированные системы управления энергопотреблением. Настройка параметров защиты выполняется по паспортным данным оборудования и условиям эксплуатации, с учетом допустимых токовых и временных характеристик.
При эксплуатации ВРУ 0,4 кВ важно регулярно проверять работоспособность защитных устройств и состояние контактов, чтобы исключить ложные срабатывания или несрабатывания. Рекомендуется проводить техническое обслуживание не реже одного раза в год и сразу реагировать на сигналы аварийных реле.
Типичные неисправности и методы их выявления в ВРУ 0 4 кв

Основные неисправности в ВРУ 0,4 кВ связаны с повреждениями автоматических выключателей, неисправностями шин, нарушением контактов и дефектами релейной защиты.
Повреждение автоматических выключателей проявляется в залипании контактов или отказе срабатывания. Проверку проводят с помощью тестеров с имитацией токовой нагрузки и измерением сопротивления перехода контактов, значение которого не должно превышать нескольких миллиом.
Износ или окисление шин приводит к увеличению переходного сопротивления и перегреву. Для выявления дефекта используют тепловизионные камеры и измерители температуры в местах соединений. Повышение температуры более 40 °C выше окружающей среды указывает на необходимость ремонта или замены.
Нарушения контактов в клеммных соединениях вызывают искрение и перебои питания. Методы выявления включают визуальный осмотр с проверкой затяжки болтов динамометрическим ключом и контрольные замеры сопротивления с помощью клещевых амперметров и мультиметров.
Релейная защита может не сработать из-за неправильных настроек или повреждений датчиков. Для диагностики применяют тестовые подачки токов и напряжений с последующей проверкой корректности срабатывания защиты в соответствии с паспортными параметрами.
Регулярное измерение изоляционного сопротивления кабелей и компонентов ВРУ тестерами высокого напряжения выявляет снижение изоляционных характеристик, что предшествует пробоям и коротким замыканиям.
Использование протоколов технического обслуживания с фиксированными интервалами позволяет своевременно обнаруживать перечисленные неисправности и предотвращать аварийные ситуации.
Требования безопасности при эксплуатации ВРУ 0 4 кв

Вводно-распределительное устройство 0,4 кВ относится к электротехническому оборудованию с высоким уровнем опасности поражения электрическим током. Для безопасной эксплуатации необходимо соблюдать нормативы ПУЭ и ГОСТ.
Обслуживание ВРУ допускается только персоналом с квалификацией не ниже III группы по электробезопасности. Перед началом работ необходимо отключить устройство от питающей сети и проверить отсутствие напряжения с помощью тестера с индикатором напряжения не менее 1000 В.
Все металлические корпуса и панели ВРУ должны быть надежно заземлены. В случае повреждения изоляции или нарушений целостности корпуса эксплуатация запрещена до устранения неисправностей.
ВРУ необходимо размещать в сухих, проветриваемых помещениях с температурным режимом от -10 до +40 °C и влажностью не выше 80%. Запрещается использование ВРУ во взрывоопасных зонах без дополнительной сертификации.
Провода и кабели внутри ВРУ должны быть надежно закреплены и изолированы. При подключении следует использовать средства индивидуальной защиты: изолирующие перчатки и диэлектрические коврики. Работы на ВРУ запрещены в условиях повышенной влажности или при отсутствии полного комплекта защитных средств.
Плановый технический осмотр ВРУ должен проводиться не реже одного раза в 6 месяцев с проверкой состояния контактных соединений, исправности автоматических выключателей и целостности изоляции. Запрещается использование оборудования при наличии признаков перегрева или коррозии.
ВРУ 0,4 кВ необходимо ограждать и обозначать предупреждающими табличками с указанием высокого напряжения. Доступ к устройству должен быть ограничен и контролируем.
Вопрос-ответ:
Что такое ВРУ 0,4 кВ и для чего оно предназначено?
ВРУ 0,4 кВ — это распределительное устройство, которое служит для приема и распределения электрической энергии на напряжении 0,4 киловольта. Его основная задача — обеспечить безопасное и удобное подключение электрооборудования, защиту от перегрузок и коротких замыканий, а также организовать контроль параметров электросети в жилых, коммерческих и промышленных зданиях.
Как устроено и из каких компонентов состоит ВРУ 0,4 кВ?
В состав ВРУ 0,4 кВ обычно входят вводной автоматический выключатель, групповые автоматы или автоматы защиты для различных цепей, счетчики электроэнергии, шины для распределения тока, устройства защиты от токов утечки и заземляющие элементы. Корпус ВРУ изготавливается из металла или пластика и обеспечивает защиту оборудования от внешних воздействий и удобство обслуживания.
Какие функции выполняет ВРУ 0,4 кВ в электрической системе здания?
Главные функции ВРУ 0,4 кВ — прием электроэнергии от внешней сети, распределение ее по внутренним цепям здания, защита проводки и оборудования от перегрузок и коротких замыканий, а также возможность отключения отдельных участков электросети для ремонта или замены оборудования. Кроме того, в ВРУ часто устанавливают счетчики для учета потребленной электроэнергии.
Почему важно правильно выбрать и установить ВРУ 0,4 кВ?
От правильного выбора и монтажа ВРУ зависит безопасность работы всей электрической системы, а также надежность и долговечность электроснабжения. Неправильный выбор оборудования или ошибки при установке могут привести к частым отключениям, перегреву проводки, авариям и даже пожарам. Поэтому проектирование и монтаж ВРУ должны выполняться с учетом расчетных нагрузок и требований нормативов.
Как происходит техническое обслуживание и проверка ВРУ 0,4 кВ?
Техническое обслуживание включает регулярный осмотр корпуса и элементов устройства на наличие повреждений, проверку состояния контактов, тестирование работы защитных устройств и автоматики, а также очистку от пыли и загрязнений. Периодическая проверка помогает своевременно выявлять износ и предотвращать аварийные ситуации. При обнаружении неисправностей производится ремонт или замена отдельных компонентов.
