Сколько места нужно для инсталляции унитаза

Сколько места нужно для инсталляции унитаза

При проектировании санузла важно точно учитывать минимальные размеры, необходимые для установки унитаза. Недостаточное пространство может привести к затруднениям при эксплуатации и нарушению санитарных норм. Согласно СП 30.13330.2016, минимальное расстояние от центра чаши унитаза до боковых стен или сантехнических приборов должно составлять не менее 40 см, а до передней стены или двери – не менее 60 см.

Расстояние от задней стены до установочного центра унитаза варьируется в зависимости от типа конструкции. Для моделей с горизонтальным выпуском оно составляет около 18–20 см. При использовании инсталляции необходимо предусмотреть не менее 15 см глубины технической ниши для размещения рамы и бачка.

Ширина зоны установки унитаза должна быть не менее 80 см, чтобы обеспечить комфорт при пользовании. При этом общая глубина помещения, с учётом сантехники, должна составлять не менее 120 см. Указанные параметры являются минимальными значениями и не учитывают дополнительных элементов, таких как держатели для бумаги или системы хранения.

При планировке санузлов в малогабаритных квартирах допускается установка унитаза с отклонением от рекомендованных норм, однако соблюдение хотя бы базовых параметров критично для эргономики и гигиены. Особенно это важно в случае использования комбинированных санузлов, где требуется согласование размеров всех элементов на ограниченной площади.

Минимальное расстояние от унитаза до стены

Минимальное расстояние от унитаза до стены

Для обеспечения удобного пользования и соблюдения санитарных норм расстояние от унитаза до ближайшей стены должно быть не менее 20 см от центра чаши до боковой вертикальной поверхности. Это минимальное значение, при котором сохраняется допустимая свобода движения и исключается контакт с поверхностями при использовании унитаза.

Расстояние от задней стенки до тыльной стороны унитаза зависит от типа подключения. При горизонтальном выпуске минимально допустимое расстояние составляет 15–20 см, что позволяет корректно разместить трубу и обеспечить доступ для монтажа. При вертикальном выпуске унитаз может быть установлен ближе – на расстоянии от 10 см, в зависимости от конструкции выпуска и модели сантехники.

Если планируется установка инсталляции, то её каркас, как правило, монтируется на расстоянии 13–20 см от капитальной стены. После отделки фальшстены фактическое расстояние от лицевой поверхности унитаза до основной стены может составлять от 50 см и более.

Недостаточное расстояние до стены ограничивает доступ при уборке, снижает комфорт и может противоречить строительным нормам, особенно в многоквартирных домах. При проектировании необходимо учитывать не только сам размер унитаза, но и зазор для коммуникаций, креплений и нормируемого пространства вокруг прибора.

Ширина зоны установки унитаза в санузле

Ширина зоны установки унитаза в санузле

Оптимальная ширина зоны установки унитаза начинается от 80 см, что позволяет обеспечить по минимуму 40 см свободного пространства с каждой стороны от центра чаши. Это значение обеспечивает достаточную свободу движений и соответствует строительным требованиям для жилых помещений.

В случае, если унитаз устанавливается рядом со стеной, шкафом или другим сантехническим оборудованием, расстояние от края унитаза до препятствия должно быть не менее 25 см. Это важно для исключения контакта локтей и плеч при использовании унитаза.

В узких санузлах допускается сокращение ширины зоны до 70 см, но при этом расстояние от центра унитаза до стены не должно быть менее 35 см. Меньшие значения создают дискомфорт и противоречат санитарным нормам.

При установке унитаза в общественных или коммерческих помещениях минимальная ширина зоны увеличивается до 90–100 см с учетом требований доступности и нормативов по эргономике.

Расчет ширины должен учитывать не только сам унитаз, но и наличие доступа для технического обслуживания, особенно при использовании подвесных моделей с инсталляцией.

Расстояние между унитазом и другими сантехническими приборами

Расстояние между унитазом и другими сантехническими приборами

Для обеспечения удобства и соблюдения санитарных норм необходимо учитывать минимальные расстояния между унитазом и другими элементами сантехнического оборудования. Эти параметры особенно важны в условиях ограниченного пространства.

Расстояние от унитаза до умывальника должно быть не менее 30 см, измеренное по краям сантехники. Это значение обеспечивает достаточное пространство для комфортного использования каждого прибора без ограничений движений.

При установке унитаза рядом с ванной минимальное расстояние между ними должно составлять 25–30 см. Это предотвращает тесноту и позволяет безопасно перемещаться в зоне санузла.

Между унитазом и биде рекомендуется сохранять промежуток не менее 25 см. Такой зазор необходим как для функциональности, так и для гигиенической безопасности при одновременном использовании.

Если рядом размещается стиральная машина, минимальное расстояние от унитаза до её корпуса должно составлять 30–40 см. Это обеспечивает доступ к машинке и предотвращает случайное повреждение корпуса оборудования при эксплуатации унитаза.

Соблюдение указанных интервалов упрощает эксплуатацию и техническое обслуживание сантехники, а также соответствует действующим строительным нормам и требованиям эргономики.

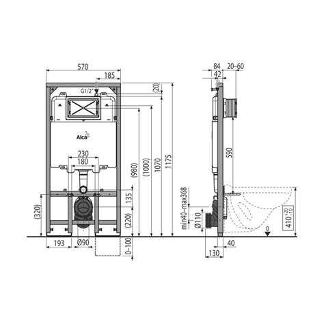
Высота монтажа инсталляции и особенности учета размеров

Высота монтажа инсталляции и особенности учета размеров

Высота монтажа инсталляции напрямую влияет на комфорт и функциональность унитаза. Стандартная высота чаши унитаза от пола – 400–430 мм. Для обеспечения этого параметра каркас инсталляции устанавливается так, чтобы центр выпуска канализации располагался на уровне 220–230 мм от пола.

Основные параметры монтажа инсталляции:

  • Высота каркаса от пола до верхней плоскости – 800–1000 мм, зависит от модели инсталляции.
  • Отверстие для подключения воды находится на высоте 1000–1150 мм, что позволяет удобно подвести трубопровод.
  • Кнопка смыва обычно размещается на высоте 1000–1100 мм для удобного доступа.

При расчетах учитывают толщину чистового пола и облицовочных материалов (плитка, стяжка). Ошибка в учете толщины может сместить высоту чаши более чем на 10 мм, что негативно скажется на эксплуатации.

Рекомендуется до монтажа проверить:

  1. Уровень пола и толщину отделочных слоев.
  2. Совместимость высоты инсталляции с габаритами унитаза.
  3. Точность расположения канализационного выхода и подачи воды.

В санузлах с особенностями (например, для детей или пожилых) высоту чаши можно регулировать в пределах ±50 мм, сохраняя пропорциональность подключения и удобство эксплуатации.

Жесткое крепление каркаса к стене и полу обязательно для предотвращения смещений под нагрузкой и сохранения геометрии всех соединений.

Несоблюдение указанных параметров может привести к сложностям при подсоединении сантехники и нарушению эргономики помещения.

Размеры технического короба за инсталляцией

Размеры технического короба за инсталляцией

Технический короб за инсталляцией унитаза должен иметь глубину не менее 120 мм для скрытия элементов слива и подключения. Оптимальная высота короба варьируется от 1000 до 1150 мм в зависимости от высоты инсталляции и типа унитаза.

Ширина короба рассчитывается с учётом габаритов инсталляции и необходимости доступа к запорной арматуре. Минимальный размер по ширине – 200 мм, но предпочтительно 300 мм для удобства обслуживания.

При проектировании короба учитывайте дополнительное пространство для шумоизоляции и вентиляции. Толщина стенок короба обычно не превышает 50 мм при использовании гипсокартона и металлического каркаса.

Ниже приведены рекомендуемые минимальные размеры технического короба для популярных моделей инсталляций:

Параметр Минимальный размер, мм Оптимальный размер, мм
Глубина короба 120 150
Высота короба 1000 1150
Ширина короба 200 300

Соблюдение указанных размеров гарантирует надёжное размещение инсталляции, сохранение доступа к элементам обслуживания и предотвращение механических повреждений при эксплуатации.

Требования к свободному пространству перед унитазом

Требования к свободному пространству перед унитазом

Минимальное расстояние от передней кромки унитаза до противоположной стены или препятствия должно составлять не менее 60 см. Это обеспечивает комфортное размещение ног и удобство при эксплуатации.

Оптимальное свободное пространство – 70–80 см, что позволяет избежать чувства тесноты и облегчает уход за сантехникой.

Если площадь санузла ограничена, допускается уменьшение расстояния до 60 см, но ниже этого значения эргономика и комфорт резко снижаются.

При установке унитаза напротив двери рекомендуется оставлять не менее 70 см, чтобы обеспечить удобный проход и избежать ограничений при открывании дверей.

В общественных и коммерческих зданиях нормы рекомендуют не менее 75 см свободного пространства перед унитазом для соответствия санитарным требованиям.

Особое внимание следует уделять расположению сантехники в помещениях с ограниченной площадью: нельзя загромождать зону перед унитазом шкафами или другими предметами мебели.

При проектировании пространства также важно учитывать наличие дополнительных элементов, например, пандусов или поручней, которые требуют увеличения свободного расстояния перед унитазом до 90 см.

Вопрос-ответ:

Какое минимальное расстояние должно быть между унитазом и передней стеной?

Минимальное расстояние от передней части унитаза до стены или другой преграды рекомендуется не менее 60 см. Это обеспечивает комфортное использование и позволяет свободно размещать ноги пользователя без ограничений.

Какая минимальная ширина пространства требуется для установки унитаза в ванной комнате?

Для установки стандартного унитаза необходимо пространство шириной минимум 70 см. Это позволяет разместить сантехнический прибор с учетом минимальных зазоров по бокам, что облегчает доступ и эксплуатацию.

Нужно ли оставлять свободное пространство по бокам унитаза, и если да, то сколько?

Да, свободное пространство по бокам важно для удобства использования и обслуживания. Минимальный зазор с каждой стороны должен составлять не менее 15 см, что предотвращает чувство тесноты и облегчает уборку.

Какие особенности стоит учесть при установке унитаза в небольшой ванной комнате с ограниченной площадью?

В небольших помещениях следует выбирать компактные модели унитазов с уменьшенными габаритами и учитывать минимальные отступы: перед унитазом – не менее 60 см, по ширине – от 70 см, при этом можно использовать угловые или подвесные варианты, чтобы оптимально использовать пространство и обеспечить комфорт.

Как влияет высота монтажа инсталляции на минимальные размеры зоны установки унитаза?

Высота монтажа инсталляции влияет на эргономику и удобство использования унитаза. Обычно рекомендуемая высота сиденья — около 40 см от пола. При правильном выборе высоты сохраняются оптимальные габариты свободного пространства перед унитазом, что позволяет комфортно пользоваться прибором без ощущения тесноты.

Ссылка на основную публикацию