
Малообъемный масляный выключатель – это аппарат для автоматического отключения электрической цепи, в котором используется минимальный объем масла в качестве изоляционного и дугогасительного вещества. В отличие от традиционных масляных выключателей с большими резервуарами масла, данные устройства имеют компактные размеры и сниженную массу, что облегчает их монтаж и обслуживание.
Объем масла в таких выключателях обычно составляет менее 100 литров, что снижает экологические риски и повышает безопасность эксплуатации. Особенность конструкции – герметичность камеры, которая предотвращает утечку масла и повышает надежность работы при высоких токах отключения.
Рекомендуется применять малообъемные масляные выключатели в сетях с напряжением до 35 кВ, где важны компактность и возможность быстрой замены оборудования. Их эксплуатация требует регулярного контроля состояния масла и механизма, но значительно упрощается за счет уменьшенного объема изоляционной жидкости и улучшенной конструкции контактов.
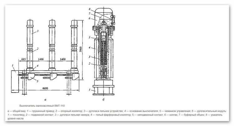
Конструкция и принцип работы малообъемного масляного выключателя

Малообъемный масляный выключатель представляет собой компактное устройство, где разрыв электрической цепи происходит в герметичной камере с малым количеством масла – обычно от 0,5 до 5 литров. Корпус выключателя выполнен из прочного изоляционного материала или металла с внутренним покрытием для предотвращения коррозии.
Основной компонент конструкции – разрывная камера, в которой размещены контакты из износостойких сплавов. При включении и отключении цепи контакты размыкаются или замыкаются в масляной среде, что обеспечивает гашение электрической дуги. Масло в момент разрыва дуги быстро ионизируется и превращается в газ, создавая давление, которое механически вытесняет дугу и изолирует контакты.
Для повышения эффективности дугогашения камера оснащена направляющими каналами, улучшающими распределение газа и масла. Конструкция также предусматривает систему охлаждения и защиту от возможного внутреннего взрыва за счет разрывных мембран или предохранительных клапанов.
Механизм управления обычно выполнен на базе пружинно-инерционной системы, обеспечивающей высокую скорость срабатывания – менее 0,05 секунды, что минимизирует повреждения оборудования. Для мониторинга состояния масла устанавливаются датчики давления и температуры, предупреждающие об ухудшении изоляционных характеристик.
Рекомендовано регулярно проводить диагностическое обслуживание: проверку герметичности корпуса, анализ качества масла на содержание загрязнений и газов, а также проверку работоспособности приводного механизма. Такая практика продлевает срок службы выключателя и снижает риск аварийных отключений.
Преимущества использования масла в качестве изолятора и дугогасительной среды
Минеральное масло обладает высокой электрической прочностью, что обеспечивает надежную изоляцию токоведущих частей внутри малообъемного масляного выключателя. Благодаря диэлектрической прочности свыше 20 кВ/мм масло предотвращает пробои и снижает риск коротких замыканий.
Масло эффективно поглощает тепловую энергию, возникающую при коммутации, что способствует быстрому охлаждению дуги. При отключении тока масло мгновенно испаряется, образуя пар, который подавляет горение дуги и способствует ее быстрому гашению, уменьшая износ контактов и продлевая срок службы аппарата.
Высокая теплопроводность масла ускоряет распределение и рассеивание тепла, снижая локальные перегревы в рабочей камере выключателя. Это улучшает стабильность работы в режиме частых переключений и повышенных нагрузок.
Кроме того, масло обеспечивает плотное уплотнение элементов выключателя, предотвращая проникновение влаги и кислорода, что снижает вероятность окисления контактов и деградации изоляции.
Рекомендуется регулярно контролировать состояние масла по параметрам диэлектрической прочности и уровню загрязненности для поддержания оптимальных изоляционных и дугогасительных свойств оборудования.
Ключевые параметры выбора малообъемного масляного выключателя для оборудования

Второй критический параметр – отключающая способность, которая должна гарантировать прерывание максимального короткого замыкания на линии. Для малообъемных масляных выключателей типичное значение составляет от 16 до 40 кА, в зависимости от уровня защищаемой установки.
Объем масла в камере напрямую влияет на качество дугогасящей среды и долговечность эксплуатации. Оптимальным считается минимально возможный объем, обеспечивающий эффективное гашение дуги, что снижает габариты и вес оборудования без потери технических характеристик.
Уровень механической износостойкости и ресурс срабатываний должен соответствовать интенсивности эксплуатации. Для промышленного оборудования минимальный ресурс составляет не менее 2000 циклов включения-отключения.
Особое внимание уделяется времени отключения – оно не должно превышать 3 циклов сети (60 мс при 50 Гц), чтобы минимизировать влияние аварийных токов на оборудование и электросеть.
Температурный диапазон эксплуатации и класс защиты от пыли и влаги (IP) выбираются с учётом условий монтажа. Для большинства промышленных объектов подходят выключатели с диапазоном от -40°C до +55°C и защитой IP54 и выше.
Итог: выбор малообъемного масляного выключателя основывается на точном соответствии номинальных характеристик, отключающей способности, ресурсу срабатываний и условиям эксплуатации, что обеспечивает надежную и безопасную работу оборудования без избыточных габаритов и веса.
Особенности установки и технического обслуживания масляных выключателей
Установка малообъемных масляных выключателей требует точного соблюдения технологических норм. Монтаж должен выполняться на ровной, виброустойчивой платформе с обеспечением доступа к обслуживаемым элементам не менее 1 метра. Подключение к силовым кабелям производится через герметичные вводы с обязательным контролем плотности соединений, чтобы избежать утечек масла и попадания влаги.
В процессе установки необходимо обеспечить заземление корпуса и монтаж аппарата в соответствии с проектной документацией, учитывая температурный режим эксплуатации. Недопустимо устанавливать выключатель вблизи источников тепла и с высокой влажностью без дополнительных защитных мер.
Техническое обслуживание включает регулярную проверку уровня и состояния масла с помощью контрольных люков и пробоотборников. Масло должно быть прозрачным, без следов загрязнений и воды. Периодичность замены масла или его очистки определяется эксплуатационными условиями, но не реже одного раза в 3–5 лет.
Контроль изоляционных свойств масла проводят методом диэлектрических испытаний с применением измерителей пробивного напряжения. Проверку герметичности корпуса и узлов выполняют визуально и с использованием вакуумных тестеров. Особое внимание уделяется состоянию уплотнений и сальников.
Пневматические и механические элементы включения и отключения требуют смазки специализированными составами не реже одного раза в год, а при частой эксплуатации – чаще. Электрические контакты проверяют на наличие износа и коррозии, при необходимости – заменяют.
Методы предотвращения утечек масла и повышения надежности устройства
Для минимизации утечек масла в малообъемных масляных выключателях применяют комплекс технических решений, направленных на герметизацию и долговечность узлов. Ключевые методы включают:
- Использование высококачественных уплотнительных материалов: применяются фторсиликоновые и паронитовые прокладки, обладающие стойкостью к воздействию масла и перепадам температур, что снижает износ и предотвращает появление микротрещин.
- Оптимизация конструктивных соединений: стыковые поверхности с плоской или сферической геометрией обрабатываются с точностью до микрона, что обеспечивает плотное прилегание без дополнительных усилий и исключает капиллярные каналы для вытекания масла.
- Использование металлических манжет и компенсаторов: эластичные металлические элементы компенсируют температурные расширения масла и корпуса, предотвращая деформации уплотнений и образование трещин.
- Контроль состояния уплотнений в процессе эксплуатации: внедрение системы регулярного мониторинга давления и герметичности с использованием датчиков утечки и визуального осмотра позволяет своевременно выявлять слабые места и проводить техническое обслуживание.
- Защитное покрытие поверхностей контактов и корпусов: антикоррозийные и гидрофобные покрытия предотвращают разрушение материалов и появление микроповреждений, через которые возможно просачивание масла.
Для повышения надежности устройства рекомендуется:
- Периодически проводить диагностику с помощью ультразвуковых и инфракрасных методов, что позволяет выявить ранние признаки утечек и износа без разборки выключателя.
- Применять современные композитные материалы в местах наиболее интенсивного контакта масла и уплотнителей для повышения ресурса без увеличения габаритов устройства.
- Внедрять системы аварийного сброса давления, которые снижают нагрузку на уплотнения при резких перепадах температур или внутренних авариях.
Влияние температуры и окружающей среды на работу масляного выключателя
Температура окружающей среды напрямую влияет на физико-химические свойства масла в малообъемных масляных выключателях. При снижении температуры масло становится более вязким, что замедляет процессы гашения дуги и ухудшает охлаждение контактов. Оптимальный рабочий диапазон температур для большинства масляных выключателей составляет от -20°C до +40°C. При температурах ниже -20°C вязкость масла может увеличиваться более чем вдвое, что требует применения специальных марок масла с низкотемпературными присадками или дополнительного подогрева.
Высокие температуры свыше +40°C ускоряют окисление масла, снижая его диэлектрические свойства и увеличивая риск образования отложений и деградации изоляции. Рекомендуется регулярный контроль состояния масла не реже одного раза в год, включая измерение кислотного числа и диэлектрической прочности, особенно в регионах с жарким климатом.
Влажность воздуха также оказывает критическое воздействие. Попадание влаги в масляную среду снижает диэлектрическую прочность и способствует развитию коррозии металлических элементов выключателя. Для предотвращения этого необходимо поддерживать герметичность корпуса и использовать влагопоглощающие фильтры или осушители при обслуживании. При эксплуатации в условиях повышенной влажности обязательна периодическая проверка уровня и качества масла, а также контроль герметичности уплотнений.
Запыленность и загрязнённость окружающей среды влияют на теплоотвод и могут вызвать локальные перегревы. Необходимо обеспечивать защиту от попадания пыли и загрязнений, особенно в промышленной зоне с высоким уровнем аэрозолей. Рекомендуется монтаж масляных выключателей в защищённых шкафах или помещениях с вентиляцией, предотвращающей накопление тепла и загрязнений.
Соблюдение температурного режима, контроль влажности и регулярное техническое обслуживание с анализом состояния масла существенно продлевают срок службы и надёжность работы малообъемных масляных выключателей, снижая вероятность аварий и внеплановых ремонтов.
Сравнение малообъемных масляных выключателей с другими типами выключателей

Малообъемные масляные выключатели (ММВ) отличаются компактностью и повышенной безопасностью за счёт использования минимального количества масла, что снижает риск возгорания и утечек. В сравнении с воздушными выключателями ММВ обеспечивают более эффективное гашение электрической дуги благодаря высокой диэлектрической прочности масла, что позволяет работать при более высоких токах отключения и напряжениях.
В отличие от вакуумных выключателей, малообъемные масляные конструкции менее чувствительны к загрязнениям и перепадам температуры, что увеличивает срок службы и снижает требования к обслуживанию в агрессивных средах. При этом вакуумные выключатели обладают меньшими габаритами и более быстрым временем отключения, но их эксплуатация ограничена более низкими номинальными токами и напряжениями.
ММВ уступают элегазовым выключателям (SF6) в плане экологичности и безопасности – гексафторид серы не горит и не разлагается при нормальной работе, однако ММВ выгоднее с точки зрения стоимости и простоты обслуживания. Кроме того, ММВ применимы в сетях, где необходима высокая коммутационная способность при умеренных габаритах и экономии на инфраструктуре.
Для выбора между ММВ и другими типами следует учитывать требования к электробезопасности, размеры установки, условия эксплуатации и частоту коммутаций. Малообъемные масляные выключатели оптимальны при необходимости сочетания надежного гашения дуги и ограниченного пространства, особенно в распределительных устройствах средней и высокой мощности.
Применение малообъемных масляных выключателей в современных энергосистемах

Малообъемные масляные выключатели применяются преимущественно в распределительных сетях среднего напряжения (6–35 кВ) с умеренными токами отключения. Их использование оправдано в узлах, где отсутствуют высокие коммутационные нагрузки, а также в условиях ограниченного пространства и повышенных требований к стоимости оборудования.
- В трансформаторных подстанциях сельскохозяйственных и промышленных предприятий, где необходима надёжная коммутация при умеренной частоте включений.
- В распределительных устройствах закрытого типа (КРУ), где важна компактность оборудования и его устойчивость к кратковременным токам короткого замыкания до 20–25 кА.
- В резервных и аварийных схемах, где требуется минимальное время отключения и высокая надёжность при относительно редких операциях коммутации.
Эффективность применения достигается за счёт:
- Минимального расхода изоляционного масла, что снижает риск воспламенения и упрощает обслуживание.
- Снижения массы и габаритов выключателя, что критично при модернизации старых подстанций без возможности расширения площади.
- Простоты конструкции, позволяющей сократить затраты на обучение персонала и техническое обслуживание.
При выборе выключателя необходимо учитывать допустимый ток отключения, категорию аппарата по ГОСТ, климатическое исполнение и требуемую коммутационную износостойкость. На практике такие выключатели демонстрируют ресурс до 5000 циклов ВО при регулярной проверке состояния контактов и своевременной замене масла.
Вопрос-ответ:
Чем малообъемный масляный выключатель отличается от обычного масляного?
Основное отличие заключается в объёме масла, используемого для гашения дуги. В малообъемных выключателях его значительно меньше, чем в обычных. Это стало возможным благодаря улучшенной конструкции дугогасительных камер, где процесс гашения дуги происходит более локализованно и направленно. Такая особенность позволяет уменьшить габариты выключателя, снизить расход масла и упростить обслуживание.
Где применяются малообъемные масляные выключатели?
Их часто используют в распределительных устройствах среднего напряжения (обычно до 35 кВ) на промышленных предприятиях, подстанциях, а также в системах электроснабжения жилых и административных объектов. Благодаря относительно компактным размерам и приемлемым эксплуатационным характеристикам такие выключатели устанавливаются в тех местах, где требуется надёжное отключение тока при коротком замыкании или перегрузках, но нет возможности использовать более дорогостоящие вакуумные или элегазовые выключатели.
Какие преимущества и недостатки у малообъемного масляного выключателя?
К его преимуществам относят компактность, меньший расход масла по сравнению с традиционными масляными выключателями, простоту конструкции и невысокую стоимость. К недостаткам — необходимость регулярного технического обслуживания, риск воспламенения масла при неправильной эксплуатации и сравнительно невысокий срок службы по сравнению с более современными видами выключателей.
Почему масляные выключатели постепенно вытесняются другими типами?
С течением времени в энергетике появились более безопасные и удобные технологии отключения — вакуумные и элегазовые выключатели. Они не требуют масла, а значит, исключают риск возгорания, обладают более высокой механической и электрической износостойкостью, требуют меньше обслуживания. Несмотря на это, малообъемные масляные выключатели всё ещё находят применение, особенно там, где необходимо недорогое и проверенное решение.
Как устроен малообъемный масляный выключатель внутри?
Внутри корпуса выключателя находятся дугогасительные камеры, контакты, изоляционные детали и ограниченный объём масла, который выполняет сразу две функции — гасит электрическую дугу и изолирует элементы. При размыкании контактов возникает дуга, которая быстро гасится за счёт разрыва в струе масла и действия специальных дугогасительных решёток. Конструкция рассчитана на многократную коммутацию, но требует периодического обслуживания — проверки состояния масла и механической части.
Чем малообъемный масляный выключатель отличается от обычного масляного выключателя?
Главное отличие малообъемного масляного выключателя заключается в значительно меньшем количестве масла, необходимом для его работы. Если в традиционных масляных выключателях масло служит как для изоляции, так и для охлаждения и гашения дуги, то в малообъемных моделях объем масла сведен к минимуму — он используется только в зоне дугогашения. Это снижает риск пожара, упрощает обслуживание и уменьшает массу оборудования. Такая конструкция позволила улучшить безопасность и компактность выключателей при сохранении их рабочих характеристик.
Для каких условий подходит использование малообъемных масляных выключателей?
Малообъемные масляные выключатели часто применяются в распределительных устройствах среднего напряжения, особенно на подстанциях и в промышленных сетях, где важна компактность и надежность. Они подходят для эксплуатации в помещениях с ограниченным пространством и там, где необходимо сократить обслуживание оборудования. За счет малого количества масла такие выключатели требуют меньше внимания со стороны персонала и представляют меньшую опасность при утечках или разрушении корпуса. Кроме того, их удобно применять в энергосистемах, где возможны частые включения и отключения, так как они рассчитаны на большое число коммутационных циклов.
