
При установке кухонного гарнитура необходимо учитывать нормативные отступы между газовой плитой и соседними предметами мебели. Несоблюдение этих параметров может привести к перегреву материалов, деформации и повышенному риску возгорания. Согласно СНиП 42-01-2002, минимальное расстояние от газовой плиты до боковой поверхности шкафа должно составлять не менее 200 мм.
Если шкаф выполнен из легко воспламеняющихся материалов, например ЛДСП или МДФ, это расстояние критически важно. При меньшем зазоре боковая поверхность подвергается постоянному тепловому воздействию, особенно при использовании конфорок, расположенных ближе к шкафу. В реальных условиях эксплуатации рекомендуется увеличить зазор до 300 мм для компенсации теплопередачи и обеспечения долговечности мебели.
Над плитой также необходимо соблюдать нормативы: расстояние до навесного шкафа должно быть не менее 650 мм от уровня конфорок. Это снижает вероятность накопления тепла и исключает риск воспламенения материалов при длительном приготовлении пищи. Если используется вытяжка, расстояние может варьироваться в зависимости от модели, но в большинстве случаев составляет от 650 до 750 мм.
Установка газовой плиты в плотном окружении мебели без соблюдения этих отступов нарушает противопожарные требования и может быть признана небезопасной при техническом осмотре. При проектировании кухни следует ориентироваться не только на эргономику, но и на нормы безопасности, продиктованные спецификой использования газового оборудования.
Нормативные требования к расстоянию между плитой и шкафом по СНиП и СП
При установке кухонной мебели рядом с газовой плитой необходимо соблюдать установленные строительными нормами минимальные расстояния. Основные требования содержатся в следующих документах:
- СНиП 42-01-2002 «Газораспределительные системы»
- СП 42.101-2003 «Общие положения проектирования и строительства газопроводов»
Согласно нормативам:
- Минимальное расстояние от газовой плиты до боковой поверхности навесного или напольного шкафа должно составлять не менее 200 мм. Это предотвращает перегрев мебели и снижает риск возгорания.
- Расстояние от варочной поверхности до вытяжного шкафа сверху – не менее 700 мм для газовых плит. Для электроплит допускается минимум 650 мм, но это значение не применяется к газовым моделям.
- Запрещается установка шкафов непосредственно над плитой, если это не вытяжка с термостойкими материалами. Любая горизонтальная поверхность над конфорками может накапливать жир и создавать пожароопасные условия.
- Все материалы, используемые вблизи газовой плиты, должны соответствовать классу трудногорючих или негорючих веществ согласно ГОСТ 30244-94.
Несоблюдение этих требований может привести к нарушению правил пожарной безопасности и стать основанием для отказа в приёмке объекта.
Минимальные отступы при установке навесных шкафов над газовой плитой
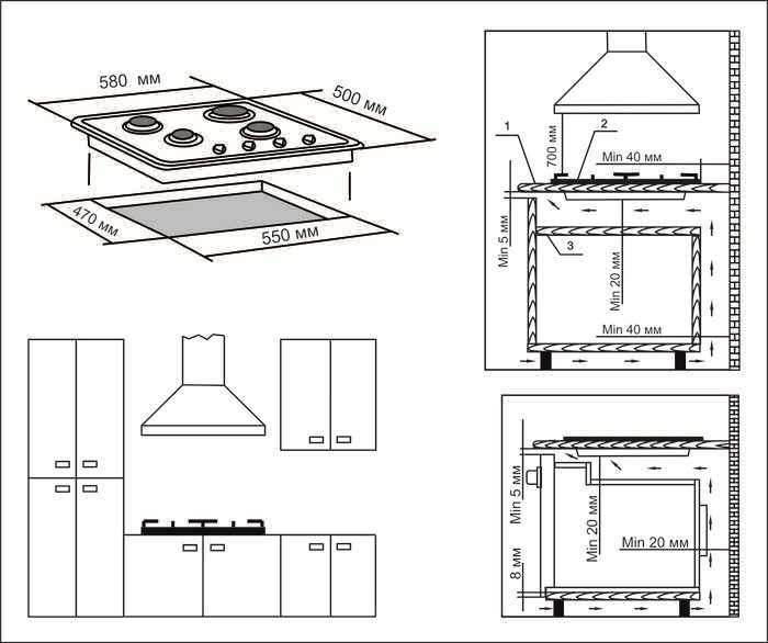
При монтаже навесных шкафов над газовой плитой необходимо строго соблюдать установленные нормы для предотвращения перегрева и возгорания. Основной параметр – вертикальное расстояние от поверхности плиты до нижнего края шкафа.
Согласно СП 42-101-2003, минимальный вертикальный отступ должен составлять не менее 65 см. Если используется вытяжка, расстояние от плиты до вытяжки – не менее 75 см для газовых моделей. При отсутствии вытяжки навесной шкаф должен находиться выше этой отметки.
Глубина шкафа не должна превышать 30 см, чтобы исключить нависание над зоной готовки. При этом он не должен выступать за край столешницы более чем на 5 см. Важно учитывать материал шкафа: недопустимо использование легковоспламеняющихся покрытий без термостойкой обработки.
Для моделей плит с открытым пламенем расстояние увеличивается до 70–75 см. Шкафы с дверцами должны открываться без затруднений и не перекрывать зону варочной панели.
Все крепления шкафа обязаны выдерживать повышенные температуры и быть зафиксированы в капитальной стене или усиленной конструкции.
Риски перегрева мебели и возгорания при нарушении дистанции
Нарушение минимального расстояния между газовой плитой и кухонным шкафом создает условия для постоянного термического воздействия на мебельные поверхности. При расстоянии менее 50 см верхние и боковые панели шкафов нагреваются до температуры свыше 85 °C, что превышает термостойкость большинства ламинированных и клеевых материалов.
Плиты с открытым пламенем, особенно в режиме интенсивного приготовления, выделяют до 2,5 кВт тепла на одну конфорку. В условиях недостаточной вентиляции это приводит к накоплению тепла в ограниченном пространстве, что ускоряет разрушение покрытия мебели, коробление панелей и постепенное воспламенение легко горючих элементов – например, декоративных накладок и уплотнителей на основе ПВХ или полиуретана.
Особую опасность представляет размещение шкафов непосредственно над плитой без защитного экрана. Температура в зоне над горелкой может достигать 150 °C, при этом воспламенение некоторых видов ДСП и фанеры возможно уже при 120 °C при длительном воздействии. При использовании вытяжки с металлическим корпусом без теплоизоляции происходит передача тепла на верхние ящики, что также повышает риск возгорания.
Рекомендуется обеспечивать зазор не менее 65 см от варочной поверхности до нижней кромки навесных шкафов. Боковые поверхности плит следует отделять от мебели на расстояние не менее 5 см. При невозможности соблюдения этих параметров необходимо использовать термозащитные экраны из нержавеющей стали или жаростойкого стекла, которые уменьшают передачу тепла на прилегающие конструкции.
Особенности установки шкафов рядом с плитой в угловых кухнях
В угловых кухнях размещение шкафов вблизи газовой плиты требует учета направления открывания дверок, глубины модулей и минимально допустимых расстояний. При установке напольных шкафов в непосредственной близости от плиты минимальный зазор от боковой поверхности плиты до боковины корпуса должен составлять не менее 5 см, чтобы исключить перегрев и сохранить целостность материалов.
Навесные шкафы над плитой устанавливать запрещено. Боковой навесной модуль может быть расположен только сбоку, не ближе 30 см от центра конфорки. Это исключает вероятность деформации фасадов и перегрева крепежных элементов. В углу, где плита примыкает к шкафу под углом 90 градусов, необходимо обеспечить вентиляционный зазор между тыльной стенкой шкафа и стеной минимум 3 см для свободной циркуляции воздуха.
Шкафы с выдвижными ящиками, расположенные под углом к плите, не должны блокировать доступ к запорной арматуре газопровода. При проектировании учитывают расположение газового шланга: он не должен касаться корпуса мебели. При отсутствии возможности соблюдения всех требований в стандартной планировке рекомендуется использовать термостойкие вставки и защитные экраны между плитой и мебелью.
Допустимые материалы мебели для размещения рядом с газовой плитой

Выбор материалов для мебели, устанавливаемой вблизи газовой плиты, должен учитывать термостойкость, воспламеняемость и устойчивость к деформации под воздействием высоких температур.
- Ламинированная ДСП – допустима только при наличии термостойкой кромки и соблюдении дистанции не менее 50 см от источника открытого огня. Температура деформации – около 70–80°C.
- МДФ с термостойким покрытием – предпочтительнее, чем ДСП. Выдерживает кратковременное воздействие до 90°C. Не допускается установка вплотную к боковой стенке плиты.
- Металлические элементы (алюминий, нержавеющая сталь) – полностью устойчивы к температуре до 300°C. Подходят для фасадов и боковин шкафов, расположенных в непосредственной близости к плите.
- Закалённое стекло – выдерживает нагрев до 250°C. Используется для вставок и облицовки. При установке важно исключить термошоки от резких перепадов температуры.
- Керамика и камень (натуральный и искусственный) – термостойкие, не поддерживают горение. Рекомендуются для отделки поверхностей, прилегающих к плите.
Не допускается использование ПВХ-плёнки без термостойкой основы, незащищённого пластика и необработанного дерева. Эти материалы начинают деформироваться или воспламеняться при температуре от 60°C. Все элементы мебели, размещаемые ближе 10 см к плите, должны иметь тепловой экран или дополнительную изоляцию.
Как измерить расстояние между плитой и ближайшей мебелью правильно
Для точного измерения расстояния между газовой плитой и шкафом используйте рулетку с миллиметровыми делениями. Измерять необходимо от наружной кромки рабочей поверхности плиты до внутренней стороны фасада мебели, включая ручки и выступающие элементы.
Если плита встроенная, замеряйте от края варочной панели, а не от боковой стенки корпуса. Для шкафов учитывайте выступ каркаса и дверцы, так как именно они определяют минимально допустимое расстояние.
Проверяйте высоту измерения: измерьте на уровне плиты и на уровне вытяжки, если она есть, чтобы учесть общие требования по безопасности и вентиляции.
Рекомендуется провести несколько замеров по всей длине прилегания плиты к шкафу, чтобы выявить минимальный зазор, особенно если мебель не идеально ровная или имеет выступающие детали.
Оптимальное расстояние должно быть не менее 300 мм, согласно нормам пожарной безопасности и рекомендациям производителей, чтобы избежать перегрева мебели и обеспечить свободный доступ для обслуживания плиты.
Влияние вытяжки на минимальные расстояния до навесных элементов

Вытяжка снижает концентрацию тепла и паров, что позволяет уменьшить минимальное расстояние между газовой плитой и навесными шкафами. При наличии мощной вытяжки с производительностью не менее 400 м³/ч и правильной установкой допускается сокращение зазора до 60 см вместо стандартных 75 см. Это возможно при условии, что вытяжной корпус расположен над плитой строго по центру и обеспечивает эффективный отвод продуктов сгорания и тепла.
Для вытяжек с меньшей производительностью (до 250 м³/ч) минимальное расстояние должно оставаться не менее 70 см, чтобы исключить перегрев и повреждение шкафов. Также важно, чтобы корпус вытяжки имел теплоизоляционные элементы или выполнен из жаропрочных материалов.
Расположение воздухозаборника вытяжки влияет на распределение тепла: если он установлен слишком низко, тепло концентрируется в зоне шкафов, увеличивая риск деформации и возгорания. Оптимальная высота монтажа вытяжки – 65–75 см над поверхностью плиты.
При установке навесных шкафов ближе 60 см требуется обязательное использование вытяжек с рекуперацией или системами с дополнительным теплоотводом. Игнорирование этих рекомендаций повышает риск повреждения мебели и снижает безопасность эксплуатации газовой плиты.
Рекомендации производителей кухонной мебели по безопасным расстояниям

Производители мебели указывают, что минимальное расстояние от газовой плиты до навесного шкафа должно составлять не менее 650 мм. Это позволяет предотвратить перегрев корпуса мебели и снизить риск возгорания.
При наличии вытяжки под шкафом минимальное расстояние сокращается до 600 мм, но только если устройство оснащено эффективной системой отвода горячего воздуха.
Для нижних шкафов расстояние от поверхности плиты до верхней кромки мебели не должно быть меньше 850 мм, что обеспечивает безопасное использование и предотвращает контакт с горячими поверхностями.
Материалы кухонной мебели возле газовых приборов должны обладать огнестойкими свойствами и выдерживать температуру до 90–100 °C без деформации.
Производители также рекомендуют оставлять зазор между плитой и боковыми шкафами минимум 150 мм, чтобы обеспечить доступ воздуха и избежать накопления тепла.
Вопрос-ответ:
Какое минимальное расстояние должно быть между газовой плитой и кухонным шкафом?
Минимальное расстояние от газовой плиты до кухонного шкафа обычно устанавливается на уровне 75 сантиметров. Это связано с требованиями безопасности, чтобы избежать нагрева и возможного возгорания материалов шкафа. Однако в зависимости от типа плиты и материалов шкафов этот показатель может немного варьироваться.
Почему важно соблюдать определённое расстояние между газовой плитой и навесным шкафом?
Соблюдение безопасного расстояния предотвращает перегрев поверхности шкафа и снижает риск пожара. Газовая плита выделяет тепло и открытое пламя, которое может повредить мебель или вызвать возгорание, особенно если шкаф изготовлен из легко воспламеняющихся материалов. Кроме того, правильное размещение помогает сохранить функциональность и долговечность кухонного гарнитура.
Можно ли устанавливать шкаф непосредственно над газовой плитой, если использовать специальную вытяжку?
Установка шкафа непосредственно над плитой даже при наличии вытяжки нежелательна. Вытяжка помогает удалять продукты горения и дым, но не снижает температуры, воздействующей на шкаф. Поэтому между плитой и шкафом должно оставаться рекомендованное расстояние, чтобы исключить риск повреждения мебели и обеспечить безопасную эксплуатацию техники.
Как влияет материал шкафа на выбор расстояния до газовой плиты?
Материалы с высокой теплопроводностью или легковоспламеняющиеся поверхности требуют увеличения зазора между плитой и шкафом. Например, деревянные или ламинированные фасады нуждаются в большем расстоянии по сравнению с металлическими конструкциями, которые лучше переносят тепло. При проектировании кухни важно учитывать этот фактор для снижения вероятности повреждений и увеличения безопасности.
Что делать, если площадь кухни не позволяет увеличить расстояние между плитой и шкафом до рекомендуемого уровня?
В таких случаях можно рассмотреть установку защитных экранов из негорючих материалов, улучшить вентиляцию и использовать модели плит с минимальным тепловыделением. Также важно регулярно проверять состояние мебели и следить за отсутствием повреждений от нагрева. При возможности лучше обратиться к специалистам для оценки конкретной ситуации и подбора безопасных решений.
Какое минимальное расстояние должно соблюдаться между газовой плитой и навесным шкафом?
Минимальное расстояние между газовой плитой и шкафом определяется нормами безопасности и составляет обычно не менее 75 сантиметров. Это расстояние необходимо для предотвращения нагрева шкафа и снижения риска возгорания, а также для удобства эксплуатации плиты и вентиляции пространства над ней.
Почему важно соблюдать определённое расстояние между плитой и шкафом на кухне?
Соблюдение установленного расстояния помогает избежать повреждений мебели и снизить опасность возгорания. Газовая плита при работе выделяет тепло, которое может негативно повлиять на материалы шкафов, особенно если они изготовлены из дерева или ДСП. Кроме того, достаточный зазор улучшает циркуляцию воздуха, что способствует безопасности и удобству во время приготовления пищи.
